Prenájom kancelárie • 94 m² bez realitkyU Husova sboru, Pardubice - Pardubice, Pardubický kraj
U Husova sboru, Pardubice - Pardubice, Pardubický krajČiastočne vybavené • Parkovanie • Balkón 2 m² • Pivnica 3 m²Nabídka pronájmu: Pěkné, nově zrekonstruované kancelářské prostory v centru Pardubic.
Hledáte pro své podnikání účelné a klidné zázemí s výbornou dostupností? Nabízíme k pronájmu prostorné a nově zrekonstruované prostory o celkové výměře cca 94 m², situované v bezprostřední blízkosti výstaviště IDEON. Nabízené místnosti jsou umístěny ve 2. patře klasického činžovního prvorepublikového domu v centru Pardubic, ulice U Husova sboru. Lze je pronajmout i jednotlivě.
Klíčové vlastnosti prostor:
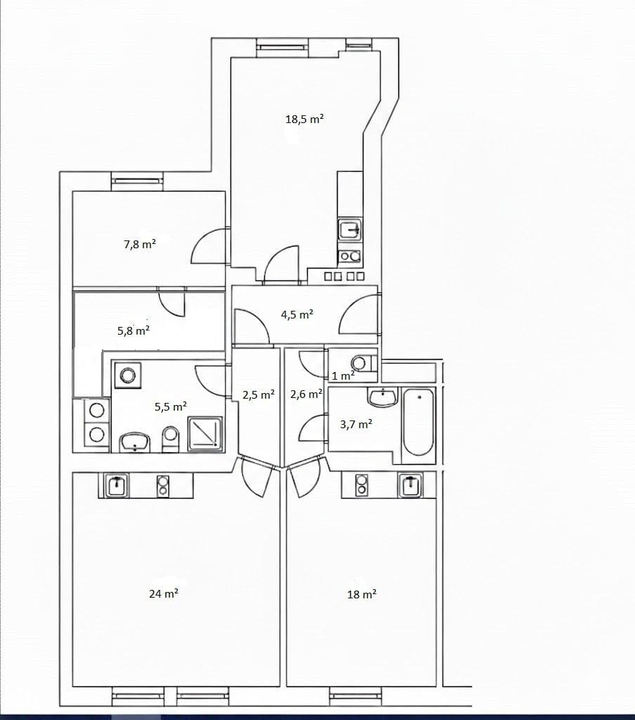
• Dispozice: Celkem 4 samostatné místnosti plus zázemí.
• Variabilita: Díky rozmanitým velikostem místností (od 7,8 m² po velkorysou open-space kancelář 24 m²) jsou prostory ideální pro kombinaci ředitelské kanceláře, zasedací místnosti a pracovních místností pro tým (vhodné např. pro advokátní kancelář, účetní firmu, psychology, pojišťovací makléře apod.)
• Vybavené zázemí: K dispozici jsou praktické kuchyňské kouty, dvě koupelny a toalety, což zajišťuje maximální komfort pro vás, vaše zaměstnance i klienty.
• Stav: Čistý, minimalistický design, nová laminátová podlaha a moderní obklady v neutrálních barvách.
Lokalita a benefity:
• Strategické místo: Klidná lokalita u centra Pardubic s vynikající dopravní obslužností a snadným parkováním v okolí.
• Relaxační zóna: Možnost využití balkonu pro krátkou pauzu na čerstvém vzduchu a přístup do zahradního koutu, který je možný využít pro neformální pracovní schůzky nebo odpočinek.
• Úložné prostory: K prostorám náleží také sklep, ideální pro archivaci dokumentů či skladování materiálu.
________________________________________
Rozpis výměr:
Místnost Plocha Využití (návrh)
Kancelář 1 24,0 m² Hlavní kancelář / Open-space
Kancelář 2 18,5 m² Zasedací místnost s kuchyňkou
Kancelář 3 18,0 m² Kancelář managementu
Kancelář 4 7,8 m² Archiv / Serverovna
Kancelář 5 5,8 m² Příruční sklad / Šatna
Zázemí cca 20 m² Chodby, koupelny, WC
Prostory jsou připraveny k okamžitému nastěhování.
Finanční podmínky:
• Měsíční nájemné: 15 500 Kč za všechny místnosti nebo 180 Kč za m²
• Energie: hradí nájemce
• Kauce: 20 000 Kč
________________________________________
• Realitní kanceláře, prosím, nevolat.
Parametre nehnuteľnosti
| Dostupné od | 2. 3. 2026 |
|---|---|
| Konštrukcia budovy | Tehla |
| Poschodie | 2. poschodie z 4 |
| Umiestnenie | Centrum mesta |
| Cena za jednotku | 165 CZK / m2 |
| Stav | Veľmi dobrý |
|---|---|
| Vybavené | Čiastočne |
| Číslo inzerátu | 995541 |
| Plocha kancelárie | 94 m² |
Čo táto nehnuteľnosť ponúka?
| Balkón 2 m² | |
| Parkovanie |
| Pivnica 3 m² |
V okolí nehnuteľnosti nájdete
Stále hľadáte to pravé?
Nastavte si strážneho psa. Ponuky vybrané na mieru dostanete súhrnne 1× denne e-mailom. S Premium profilom máte po ruke rovno 5 strážcov a keď sa niečo objaví, informujú vás obratom.















