Predaj nebytového priestoru • 16 m² bez realitkyNádražní, Kutná Hora - Kutná Hora, Středočeský kraj
Prémiová investiční příležitost v srdci Kutné Hory
Hotová ubytovací jednotka s výnosovým potenciálem, moderním a efektivním způsobem využitelnosti.
Nabízíme k prodeji nově dokončenou ubytovací jednotku v historickém centru města Kutná Hora, na adrese Nádražní 631/3 – Vnitřní Město.
Jednotka je vedena v katastru nemovitostí jako jiný nebytový prostor a je plně připravena k okamžitému spuštění krátkodobých pronájmů.
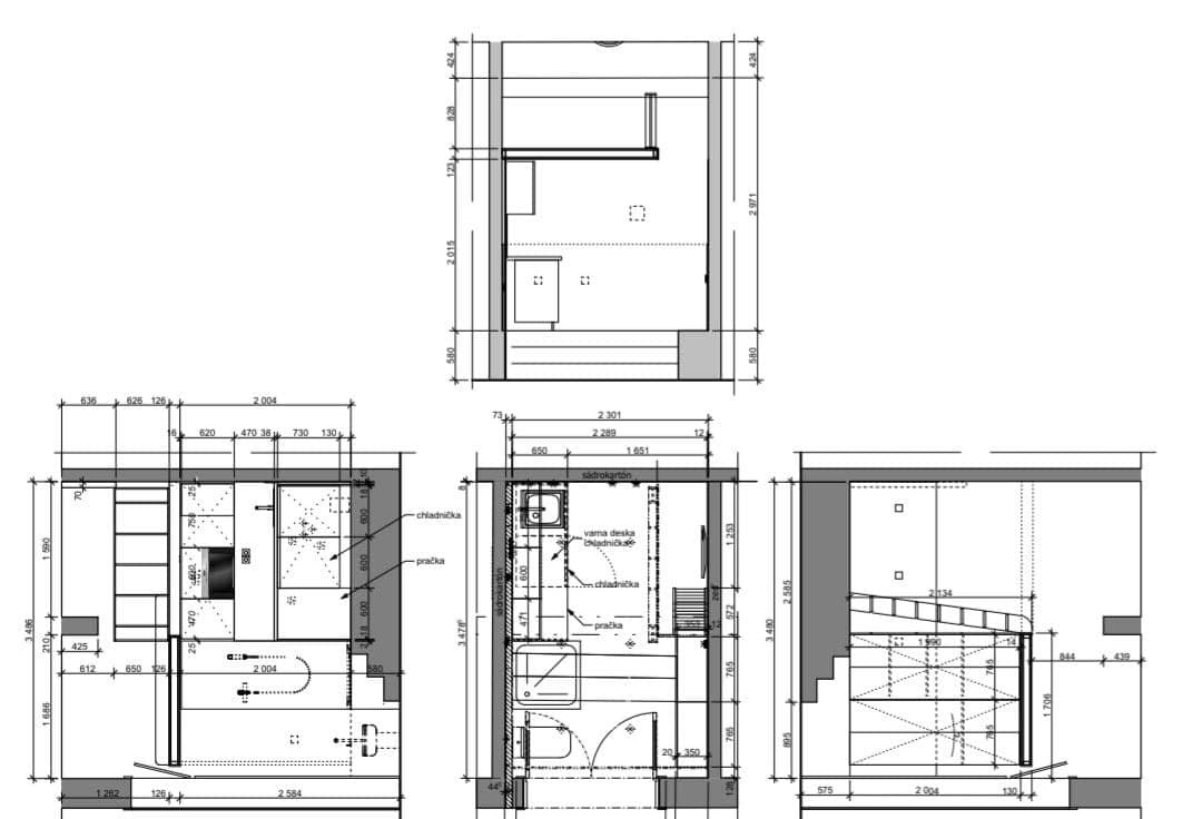
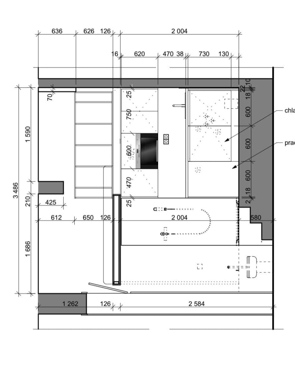
Dispozice a standard
Celková plocha cca
cca 8,5 m² hlavní obytná část,
cca 7,5 m² galerie / spací prostor se sníženým stropem (cca 125 cm)
Kompletně nově dokončeno,
nové elektrické spotřebiče
lednice,vestavěná mikrovlnná trouba Whirlpool.
Připraveno bez dalších investic
ke krátkodobému pronájmu.
Historické centrum Kutné Hory patří mezi turisticky stabilní lokality s celoroční poptávkou.
Proč tato investice dává smysl?
Nízké pořizovací i provozní náklady
malometrážní jednotky mají nejvyšší procentuální výnos
Turisticky silná lokalita (UNESCO)
Možnost osobního využití mezi pronájmy.
Okamžitý start bez rekonstrukce
Tato jednotka představuje efektivní nástroj pro investory hledající vyšší zhodnocení než u tradičních nájmů nebo konzervativních finančních produktů.
Nemovitost je připravena k okamžitému užívání a díky své kvalitní realizaci a současnému designu pro toho kdo hledá praktické a funkční řešení pro podnikatelské účely či kreativní činnost.
Díky dostupnosti parkovacího místa a výbornému umístění, včetně energetického štítku třídy G.
Pro bližší informace a domluvení případné prohlídky mne můžete kontaktovat / komunikační platformu.
Parametre nehnuteľnosti
| Dostupné od | 28. 2. 2026 |
|---|---|
| Konštrukcia budovy | Zmiešaná |
| Číslo inzerátu | 995467 |
| PENB | G - Mimoriadne nehospodárne |
| Umiestnenie | Centrum mesta |
| Cena za jednotku | 109 375 CZK / m2 |
| Stav | Novostavba |
|---|---|
| Vybavené | Vybavené |
| Vlastníctvo | Osobné |
| Poloha nebytového priestoru | Rohový |
| Plocha nebytového priestoru | 16 m² |
Čo táto nehnuteľnosť ponúka?
| Parkovanie |
| MHD 0 minút pešo |
V okolí nehnuteľnosti nájdete
Stále hľadáte to pravé?
Nastavte si strážneho psa. Ponuky vybrané na mieru dostanete súhrnne 1× denne e-mailom. S Premium profilom máte po ruke rovno 5 strážcov a keď sa niečo objaví, informujú vás obratom.









