Predaj domu • 252 m² bez realitkyHeilbronner Str. 9/1, , Bádensko-Wurttembersko
Heilbronner Str. 9/1, , Bádensko-WurttemberskoMHD 2 minúty pešo • Parkovanie • GarážTento 3-rodinný dom je ideálnou investičnou príležitosťou. Pôvodne bola celá nehnuteľnosť stolárska dielňa a v roku 1996 bola rozdelená na podiely vlastníctva bytov. Každý byt má vlastný list vlastníctva.
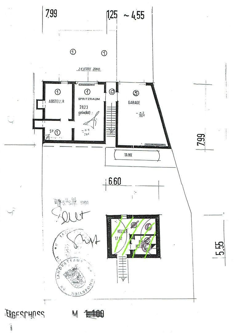
K ponúkanej nehnuteľnosti patrí ešte dvojgaráž a dve parkovacie miesta pred domom, ako aj dielňa či sklad, v ktorom je okrem iného umiestnená vykurovacia jednotka.
UG: Podzemný priestor (Gewölbekeller) (23,58 m²)
EG: 2-izbový byt (42,76 m² podlahovej plochy bez skladu/dielne) s kuchyňou, kúpeľňou a WC, veľkou terasou. Aktuálny studený nájom je 400 €.
Dielňa/sklad (cca 40 m² užitočnej plochy), ktorý je čiastočne využívaný nájomcom bytu v prízemí.
OG: 3-izbový byt (92,79 m² podlahovej plochy) s kuchyňou, kúpeľňou/WC a balkónom. Aktuálny studený nájom je 640 € vrátane garáže a parkovacieho miesta pred ňou.
DG: Maisonette s 5 izbami (116,23 m² podlahovej plochy) s kuchyňou, kúpeľňou a 2 WC. Studený nájom je 850 € vrátane garáže a parkovacieho miesta pred garážou.
Skup/dielňa v prízemí môže byť prípadne využitá aj ako garáž. Ku dvom ďalším bytom patrí každému garáž s parkovacím miestom pred ňou, jedna z nich s plošinou. Rovnako patrí každému polovica priestoru nad garážou (nezapočítaná do užitočnej plochy).
Pozemok za domom patrí čiastočne bytom a čiastočne priamemu susedovi. Za mesačný náhradný poplatok je táto k bytom patriaca plocha odovzdaná nemu, pričom on sa postará o údržbu celej záhrady. Celková rozloha pozemku je 1 684 m².
Dohodnite si jednoducho termín obhliadky so mnou, aby ste sa presvedčili o možnostiach tejto nehnuteľnosti.
Najväčšia z častí Eberstädtu leží približne 1 km východne od hlavného mesta smerom k Öhringen. Táto časť nesie názov Hölzern pre svoju blízkosť k lesnatému územiu. Dnes Hölzern slúži predovšetkým na bývanie v vidieckej atmosfére, no blízkosť k Eberstadu a ďalším mestám v údolí Weinsberger zaisťuje dobré infraštruktúrne vybavenie. Napriek dopravnej záťaži zo štátnej cesty prechádzajúcej obcou hovoria okolo 320 obyvateľov s hrdosťou a spokojnosťou o „ich Hölzern“.
Parametre nehnuteľnosti
| Vek | Nad 50 rokov |
|---|---|
| Číslo inzerátu | 995261 |
| Úžitková plocha | 252 m² |
| Cena za jednotku | 1 528 € / m2 |
| Dostupné od | 9. 3. 2026 |
|---|---|
| PENB | G - Mimoriadne nehospodárne |
| Plocha pozemku | 770 m² |
Čo táto nehnuteľnosť ponúka?
| Pivnica | |
| Parkovanie | |
| Terasa |
| Garáž | |
| MHD 2 minúty pešo |
V okolí nehnuteľnosti nájdete
Stále hľadáte to pravé?
Nastavte si strážneho psa. Ponuky vybrané na mieru dostanete súhrnne 1× denne e-mailom. S Premium profilom máte po ruke rovno 5 strážcov a keď sa niečo objaví, informujú vás obratom.






















