
Prenájom bytu 2+1 • 80 m² bez realitky, Dolné Sasko
, Dolné SaskoMHD 7minút pešoDom bol v roku 2008 tepelne izolovaný podľa požiadaviek KfW a proKlima a je pripojený na diaľkové kúrenie.
Nachádza sa v dopravo pokojnej lokalite v blízkosti mestského lesa Eilenriede, s rôznymi obchodnými možnosťami a zariadeniami. Zastávka električky je dostupná do 5 minút chôdze. Centrum (vlaková stanica) je dostupné na bicykli približne za 15 minút.
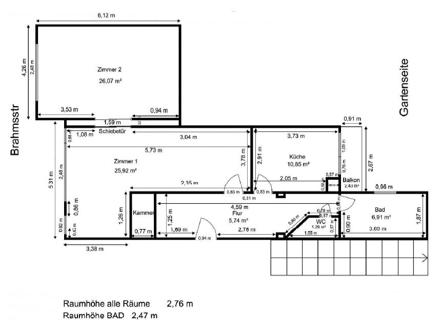
Kúpeľňa so sprchou, hosťovské WC, kuchyňa s juhozápadne orientovaným balkónom.
Uvedené nájomné ceny sa vzťahujú na 1 osobu; za každú ďalšiu osobu sa v súčasnosti k teplému nájmu pripočíta 25,00 € (na zabezpečenie vody a likvidáciu odpadu), pričom teplý nájom obsahuje aj čistenie schodiska, avšak káblové pripojenie na televíziu nie.
Náklady na energiu (iba za elektrinu) a náklady na vykurovanie (v podobe zálohy na kúrenie voči Stadtwerke Hannover) hradí sám nájomca.
V nájomnej zmluve je dohodnutá minimálna doba prenájmu 2 roky.
Parametre nehnuteľnosti
| Vek | Nad 50 rokov |
|---|---|
| Stav | Po rekonštrukcii |
| Číslo inzerátu | 995035 |
| Úžitková plocha | 80 m² |
| Dostupné od | 27. 2. 2026 |
|---|---|
| Dispozícia | 2+1 |
| PENB | C - Hospodárne |
| Cena za jednotku | 13 € / m2 |
Čo táto nehnuteľnosť ponúka?
| Balkón | |
| MHD 7 minút pešo |
| Pivnica |
V okolí nehnuteľnosti nájdete
Stále hľadáte to pravé?
Nastavte si strážneho psa. Ponuky vybrané na mieru dostanete súhrnne 1× denne e-mailom. S Premium profilom máte po ruke rovno 5 strážcov a keď sa niečo objaví, informujú vás obratom.














