
Prenájom bytu 3+1 • 69 m² bez realitkyKantstraße 32, , Sasko
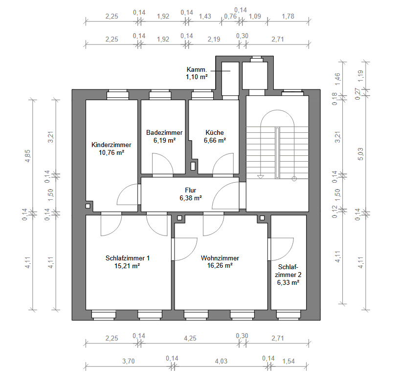
Kantstraße 32, , SaskoMHD 1 minúta pešoTento dobre pôdovaný 3-izbový byt sa nachádza v udržiavanom viacrodinnom dome na adrese Kantstraße 32 vo Wurzene. Na približne 69 m² ponúka byt dostatok priestoru pre páry, malé rodiny alebo aj ako priestranné domáce kancelárske sídlo.
Izby sú svetlé a príjemne zariadené. Praktický pôdorys zabezpečuje, že každý meter štvorcový je využitý optimálne. Z chodby sa pohodlne dostanete do všetkých miestností. Obývačka ponúka dostatočný priestor pre útulnú obývaciu zónu a jedálenský kút.
Hlavné prednosti bytu:
+++ Bez provízie: Prenájom priamo od vlastníka – žiadny poplatok makléra.
+++ Stav: udržiavaný stav
+++ Svetlý: Veľké okná zaisťujú príjemnú atmosféru na bývanie.
Nehnuteľnosť sa nachádza v pokojnej rezidenčnej štvrti vo Wurzene. Poloha je charakteristická krátkymi vzdialenosťami a dobrou infraštruktúrou:
Nakupovanie: Supermarkety, pekárne a obchody s dennou potrebou sú pešo dostupné za pár minút.
Dopravné spojenie: Železničná stanica vo Wurzene je dobre dostupná. Odtiaľ vás S-Bahn za približne 20 minút priamo zavezie do centra Lipska – ideálne pre dochádzajúcich do práce.
Voľný čas: Blízky mestský park a Muldenaue pozývajú na prechádzky a športové aktivity. Školy a materské školy sa taktiež nachádzajú v blízkom okolí.
Adresa: Kantstraße 32, 04808 Wurzen
Bytová plocha: cca 69 m²
Izby: 3
Základný nájom: 517,50 €
Prevádzkové náklady (VZ): 100,00 €
Celkový nájom: 617,50 €
Kaucia: 1.552,50 €
K dispozícii od: 01.03.2026
Poschodie: 1. nadzemné poschodie
Zaujal vás tento inzerát? Pošlite nám správu!
Impresum:
Vasto Capital GmbH
Lilienthalstraße 2
12529 Schönefeld
Parametre nehnuteľnosti
| Dostupné od | 1. 3. 2026 |
|---|---|
| Dispozícia | 3+1 |
| Číslo inzerátu | 995024 |
| Cena za jednotku | 7 € / m2 |
| Stav | Dobrý |
|---|---|
| Poschodie | 2. poschodie z 1 |
| Úžitková plocha | 69 m² |
Čo táto nehnuteľnosť ponúka?
| MHD 1 minúta pešo |
V okolí nehnuteľnosti nájdete
Stále hľadáte to pravé?
Nastavte si strážneho psa. Ponuky vybrané na mieru dostanete súhrnne 1× denne e-mailom. S Premium profilom máte po ruke rovno 5 strážcov a keď sa niečo objaví, informujú vás obratom.














