Prenájom bytu 2+1 • 52 m² bez realitkyAnnaberger Str 165 Chemnitz Altchemnitz Sachsen 09120
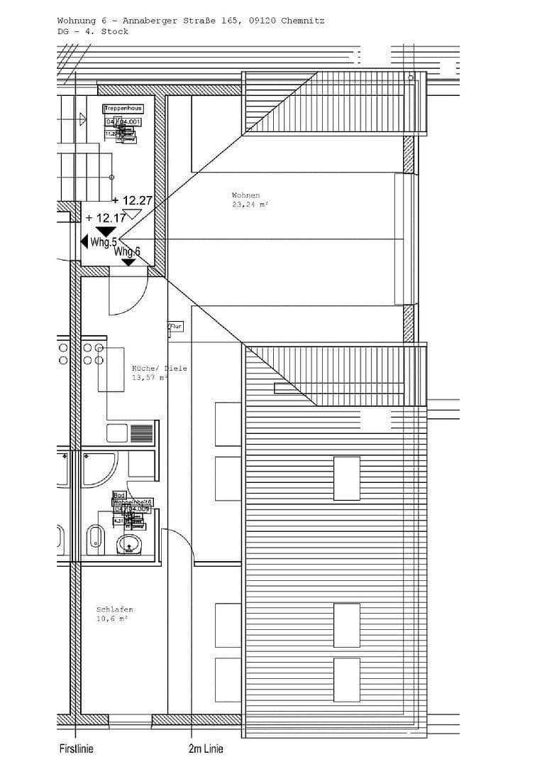
Annaberger Str 165 Chemnitz Altchemnitz Sachsen 09120MHD 2 minúty pešo • ParkovanieNa prenájom je kvalitne zrekonštruovaný 2-izbový penthouse byt v 4. nadzemnom podlaží architektonicky príťažlivo navrhnutého obytného a obchodného domu z roku 1996, postaveného v masívnej konštrukcii. Budova zahŕňa celkovo sedem obytných jednotiek a imponuje solídnou, hodnotnou stavebnou substanciou.
Byt disponuje 51,4 m² obytného priestoru a je okamžite k dispozícii. Ide o prvé nadobudnutie po kompletnej rekonštrukcii.
Obzvlášť je potrebné vyzdvihnúť špičkové a nové vybavenie, klimatizáciu na vykurovanie a chladenie izieb, ako aj výnimočnú svetlosť bytu. Vďaka množstvu okien a orientácii na východ vzniká priateľské, svetlom zaplavené bývanie. Praktické vstavané skrine poskytujú nevyhnutný úložný priestor a napriek centrálnej polohe sa objekt nachádza v pokojnom obytnom prostredí s výhľadom do zadného dvora.
K bytu patrí vlastná, masívna a suchá pivnica. Parkovacie miesto pre auto vo vnútornom uzavretom dvore je už zahrnuté v nájme.
Byt ideálne vyhovuje pre singles alebo mladé páry. Využitie ako spoločný byt (WG) je podmienečne možné. Domáce zvieratá sú povolené po dohode. Ide o nefumársky byt.
Minimálna doba nájmu je 12 mesiacov. Pri dlhšej viazanosti na zmluvu je možné individuálne dohodnúť vylúčenie budúcich zvyšovaní nájmu.
Nájomné podmienky:
• Základný nájom: 520,00 €
• Prevádzkové náklady: 70,00 €
• Náklady na vykurovanie: 100,00 €
• Celkové nájomné (vrátane všetkého): 690,00 €
• Kaucia: 3 mesačné základy nájomného
• Nie je stanovené stupňovité ani indexované nájomné
Objekt sa nachádza v Chemnitzi, Annaberger Straße 165, v dobre dostupnej a zároveň pokojnej obytné lokalite.
Infraštruktúra je výborná: Dopravné spojenie MHD sa nachádza len približne 100 metrov od objektu. Obchodné možnosti, poskytovatelia služieb, gastronomické zariadenia a prevádzky dennodenných potrieb sú ľahko dostupné.
Kombinácia centrálnej polohy a pokojného obytného prostredia ponúka vysokú kvalitu bývania. Vďaka vybudovanému okoliu a skvelej dopravnej dostupnosti je lokalita vhodná pre pracujúcich, študentov či dochádzajúcich.
Internet je dostupný cez optické vlákno aj káblové pripojenie, čo umožňuje súčasný spôsob práce z domu.
Byt bol komplexne zmodernizovaný a vybavený na vysokej úrovni.
Bývací komfort:
• Klimatizácia v obývačke aj spálni (možnosť vykurovania aj chladenia, s pripojením WLAN)
• Podlahové kúrenie vo všetkých miestnostiach s elektronickým individuálnym ovládaním
• Designový PVC podlahový kryt vo všetkých obytných priestoroch
• Vstavané skrine v chodbe a spálni
• Inštalované detektory dymu
Kúpeľňa:
• Svetlá kúpeľňa s oknom (atraktívne strešné okno s elektrickým pohonom)
• Sprchový kút (nový, vybavený prémiovou sprchovou armaturou)
• Sprchový kút obložený designovým PVC, čím vzniká bezspárový a hygienický povrch
• Rúry na sušenie uterákov
• Designer umývadlo s drevenými prvkami a skrytým zavieracím mechanizmom
• Veľké zrkadlo s integrovaným LED osvetlením
Ďalšie vlastnosti:
• Všetky strešné okná sú vybavené originálnymi vnútornými roletami značky VELUX – na zatemnenie alebo ochranu súkromia
• Vstavaná kuchyňa nie je súčasťou bytu (inštalácia je možná na želanie a po dohode)
• Masívna, suchá pivnica
• Parkovacie miesto pre auto vo dvore je zahrnuté
• Žiadny výťah
Údaje o budove:
• Rok výstavby: 1996
• Masívna konštrukcia (architektonický dom)
• 7 obytných jednotiek
Energetický preukaz:
• Typ preukazu: Spotrebný preukaz
• Energetická trieda: B
• Zdroj energie: Plynové ústredné kúrenie
Vybavenie spája moderné technológie s efektívnym využitím energie a zaisťuje celoročný komfort bývania.
Parametre nehnuteľnosti
| Vek | Nad 50 rokov |
|---|---|
| Stav | Po rekonštrukcii |
| Poschodie | 4. poschodie z 4 |
| PENB | B - Veľmi úsporné |
| Cena za jednotku | 10 € / m2 |
| Dostupné od | 14. 3. 2026 |
|---|---|
| Dispozícia | 2+1 |
| Číslo inzerátu | 995007 |
| Úžitková plocha | 52 m² |
Čo táto nehnuteľnosť ponúka?
| Pivnica | |
| MHD 2 minúty pešo |
| Parkovanie |
V okolí nehnuteľnosti nájdete
Stále hľadáte to pravé?
Nastavte si strážneho psa. Ponuky vybrané na mieru dostanete súhrnne 1× denne e-mailom. S Premium profilom máte po ruke rovno 5 strážcov a keď sa niečo objaví, informujú vás obratom.


















