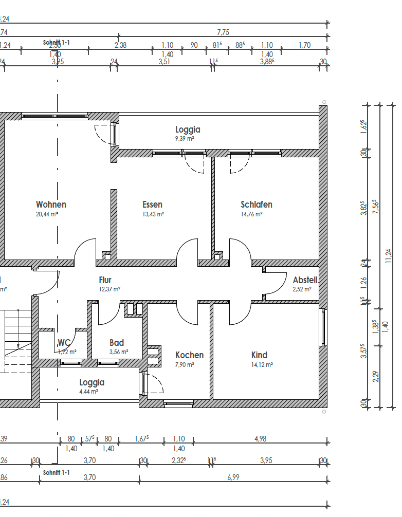
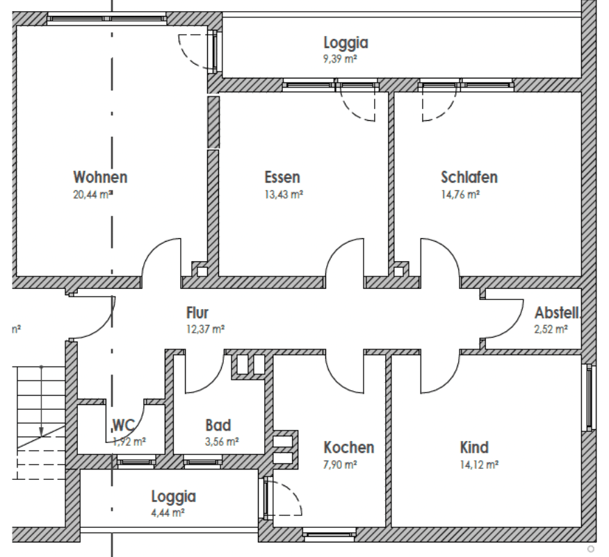
Prenájom bytu 4+1 • 93 m² bez realitkyRingstraße, , Bádensko-Wurttembersko
Ringstraße, , Bádensko-WurttemberskoMHD 3 minúty pešo • GarážPrvý nástup po zásadnej rekonštrukcii: Tento svetlý 4-izbový byt s 2 loggiami (osvetlený zo severu a juhu) v 6-bytoch domě vo Walldürne je momentálne komplexne rekonštruovaný a ponúka moderný komfort bývania na približne 93 m². Vďaka úplnej výmene podlahových krytín, stien, vnútorných dverí, kúpeľňového a kuchynského priestoru sa nehnuteľnosť prezentuje v stave ako nová.
V priebehu prác prebieha aktuálne:
- Všetky steny a stropy sú potiahnuté minerálnou sadrovou omietkou najvyššej kvality a nanesené sviežim bielym náterom.
- Položenie moderného, kvalitného akustického vinylového podlahového krytu.
- Všetky izbové dvere a zárubne boli vymenené a vybavené klikami v nerezovom prevedení.
- Modernizovaná kúpeľňa, vybavená novou vaňou, sklenenou skladacou stenou a dizajnovým umývadlovým priestorom v dizajne divého dubu s nastaviteľnou LED zrkadlovou skriňou, pričom je pripojený aj ohrievač uterákov.
- Samostatné hosťovské WC: Inštalácia nového stenného záchodu bez okraja a dodatočného umývadla.
- Obnovená elektroinštalácia: V priebehu rekonštrukcie budú všetky zásuvky a vypínače v byte vymenené za nové komponenty.
- Všetky vodovodné potrubia boli vymenené.
- Ďalšie detaily: Radiátory a parapety budú čerstvo natreté a obklady stien v kuchyni budú pripravené pre novú kuchynskú linku.
Byt má byť dokončený pravdepodobne v polovici / na konci marca a bude k dispozícii najneskôr od 01.04.2026. Fotografie budú nahrané, akonáhle budú dostupné – zatiaľ nájdete fotografie použitých materiálov.
Náklady na kúrenie a elektrinu platí nájomca priamo dodávateľovi.
Pri záujme o prenájom je potrebné predložiť vyplnené sebavyhlásenie, potvrdenia o príjme a výpis zo Schufy.
Byt zaujme svojou centrálnou polohou v dopravne pokojnej časti Ringstrasse vo Walldürne, ktorá vám umožňuje maximálnu nezávislosť. Všetky dôležité zariadenia máte v pešej vzdialenosti:
- Potraviny dennej potreby v obchode máte len 1 minútu chôdze.
- Železničnú stanicu dosiahnete pohodlne pešo za iba 3 minúty.
- V blízkosti (3 minúty pešo) sa nachádza všeobecný lekár.
Táto kombinácia vysoko kvalitnej rekonštrukcie a prvotriednej polohy robí z bytu ideálny domov pre rodiny alebo páry, ktoré kladú dôraz na kvalitu a krátke vzdialenosti.
Parametre nehnuteľnosti
| Vek | Nad 50 rokov |
|---|---|
| Stav | Po rekonštrukcii |
| Poschodie | 3. poschodie z 3 |
| Úžitková plocha | 93 m² |
| Dostupné od | 1. 4. 2026 |
|---|---|
| Dispozícia | 4+1 |
| Číslo inzerátu | 994996 |
| Cena za jednotku | 9 € / m2 |
Čo táto nehnuteľnosť ponúka?
| Balkón | |
| Garáž |
| Pivnica | |
| MHD 3 minúty pešo |
V okolí nehnuteľnosti nájdete
Stále hľadáte to pravé?
Nastavte si strážneho psa. Ponuky vybrané na mieru dostanete súhrnne 1× denne e-mailom. S Premium profilom máte po ruke rovno 5 strážcov a keď sa niečo objaví, informujú vás obratom.






