
Predaj domu 7+1 • 160 m² bez realitky, Hesensko
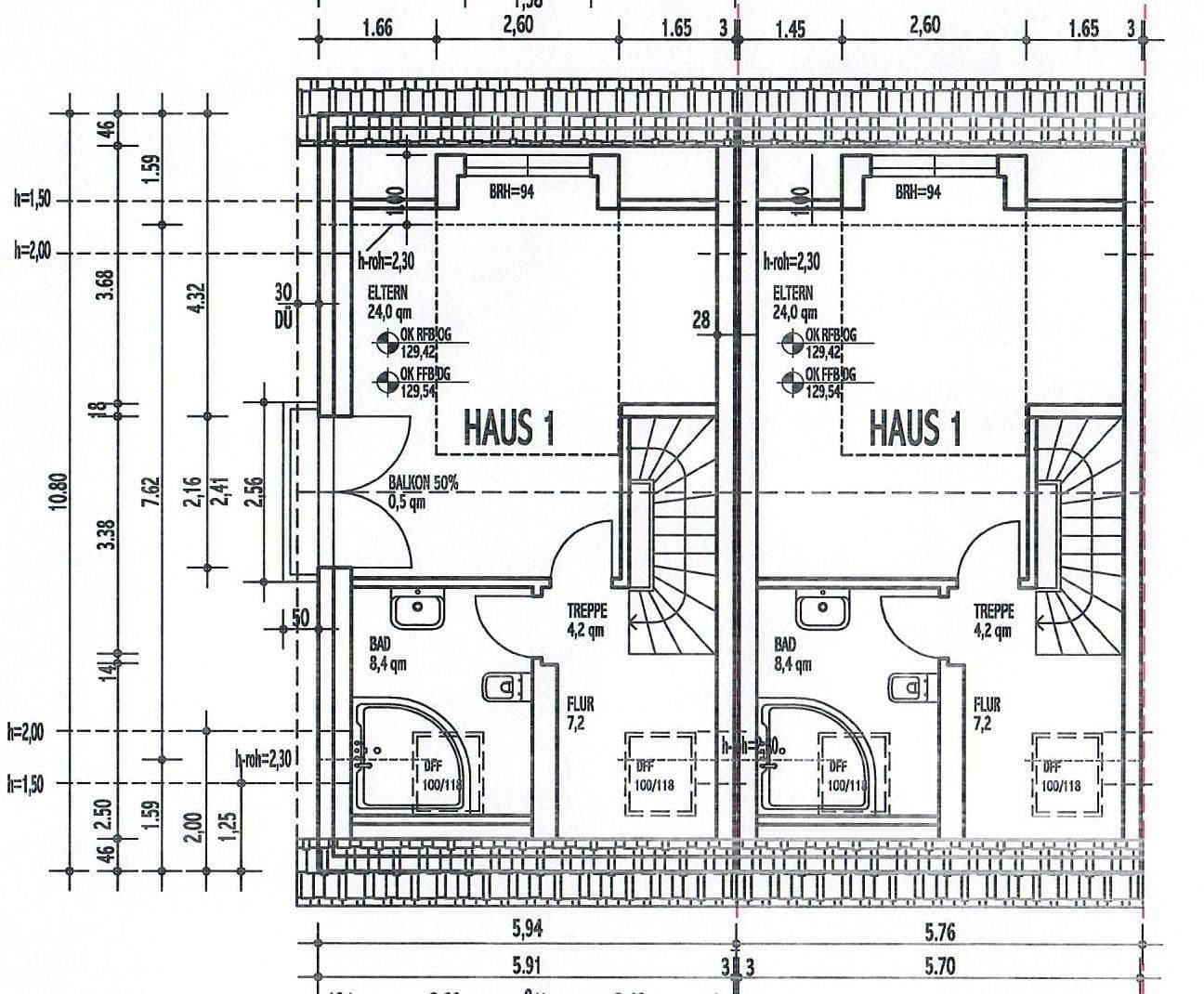
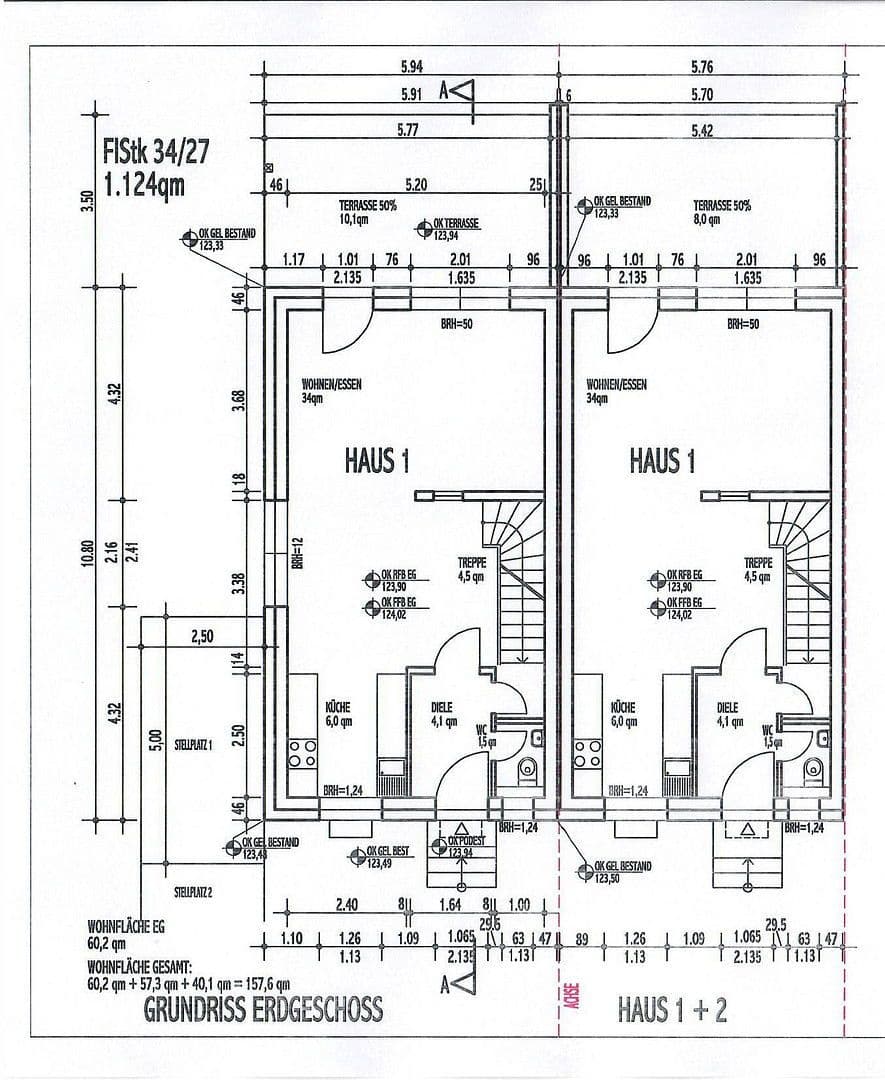
, HesenskoMHD do minúty pešo • ParkovaniePredstavujeme riadový stredový dom v tejto priestrannej radovej zástavbe pozostávajúcej z 5 domov, pričom každý dom disponuje 160 m² obytného priestoru a 48 m² úžitkového priestoru. V suteréne sa nachádza technická miestnosť a taktiež veľká zárobňovňa na koníčky. Prízemie zaujme otvoreným konceptom. Otvorená kuchyňa spojená s jedálňou a veľký obývací priestor vás pozývajú na oddych. Z terasy máte prístup do vlastnej záhrady. V nadzemnom podlaží sa nachádza kúpeľňa a 2 detské izby, ako aj rodičovská spálňa; veľký balkón dopĺňa celkový dojem tohto podlažia. Podkrovie by mohlo slúžiť ako ďalšia spálňa alebo kancelária, pričom je tu aj priestor pre kúpeľňu. Do podkrovia by sa však dali umiestniť aj 2 ďalšie detské izby. Rozdelenie priestorov sa ešte dá prispôsobiť vašim potrebám. Vybavenie: Masívne prevedenie, suterén zo železobetónu, trojsklo, elektrické rolety.
Špecifiká nehnuteľnosti: Rozdelenie priestorov je ešte voľne určiteľné, existuje aj možnosť zahrnúť vlastné práca a podobne – kontaktujte nás, všetko je možné!
V nádhernej lokalite Gründau Rothenbergen, v príjemnej obytnéj štvrti, vznikajú tieto moderné radové domy. Každý dom disponuje 4 priestrannými izbami, kuchyňou, hosťovským WC, kúpeľňou, veľkým štúdiom na podkroví a priestranným tepelnoizolovaným suterénom zo železobetónu. Ide o stavebnú medzeru, ktorá sa nachádza v kľudnej obytnéj oblasti (hracia ulica) – letový alebo dopravný hluk tu nezasahuje. Terasa aj balkón sú orientované na juh. Gründau ponúka všetko, čo na živobytie potrebujete! Obchody a ďalšie nákupné možnosti máte všetky vzdialené len 5 minút pešo. Najbližším väčším mestom je Gelnhausen, kde nájdete školy od základnej školy až po gymnázium. Lekárska starostlivosť je tiež zabezpečená, nájdete tu nemocnicu a ďalšie ambulancie pod.
Ostatné: Nehnuteľnosť sa nachádza vo fáze výstavby, pričom hrubá stavba je dokončená. Preto je možné rozdelenie priestorov ešte prispôsobiť podľa želania zákazníka. Je tiež možné zakúpiť dom ako DOM NA DOPLNENIE – stačí nás kontaktovať. Obrázky pochádzajú z nášho posledného dokončeného domu; tento zhodný dom je k dispozícii na prehliadku.
Ponuka je poskytovaná bez vnútorných stien a podlahových krytín. Vybavenie je ešte voľne určiteľné podľa vášho vkusu.
Rozdelenie priestorov je tiež možné ešte voľne prispôsobiť – postavíme vám osobný dom snov podľa želania, takže napríklad pre väčšiu rodinu sú bez problémov realizovateľné 4 detské izby, rodičovská spálňa a 2 kúpeľne. Kontaktujte nás.
Domus Konzepthaus GmbH
Kirchstr.18
63549 Ronneburg
Parametre nehnuteľnosti
| Vek | Nad 50 rokov |
|---|---|
| Číslo inzerátu | 994940 |
| Úžitková plocha | 160 m² |
| Celkové poschodia | 4 |
| Dispozícia | 7+1 |
|---|---|
| PENB | A - Mimoriadne úsporné |
| Plocha pozemku | 159 m² |
| Cena za jednotku | 3 375 € / m2 |
Čo táto nehnuteľnosť ponúka?
| Balkón | |
| Parkovanie | |
| Terasa |
| Pivnica | |
| MHD 0 minút pešo |
V okolí nehnuteľnosti nájdete
Stále hľadáte to pravé?
Nastavte si strážneho psa. Ponuky vybrané na mieru dostanete súhrnne 1× denne e-mailom. S Premium profilom máte po ruke rovno 5 strážcov a keď sa niečo objaví, informujú vás obratom.














