
Prenájom bytu • 62 m² bez realitkyMainaustraße 38 München Aubing Bayern 81243
Mainaustraße 38 München Aubing Bayern 81243MHD 3 minúty pešo • Vybavené • GarážTento kompletne zariadený 5-izbový byt ponúka moderný komfort bývania v upravenom a príjemnom prostredí – ideálny pre študentov, pracovníkov dochádzajúcich do práce alebo spolubývajúcich.
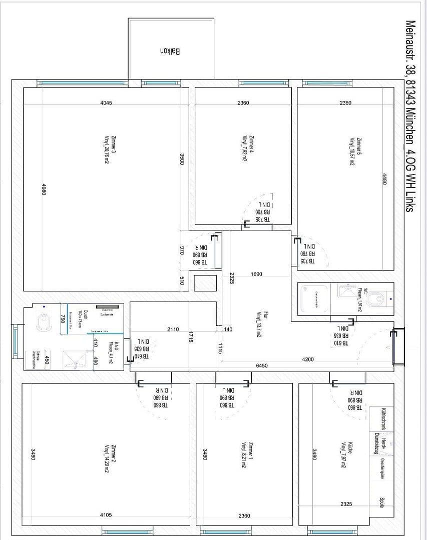
Obývacie a spálňové priestory
Každá z piatich izieb je komfortne vybavená pohodlnou posteľou, praktickým pracovným stolom so stoličkou a priestrannou skriňou. Izba číslo 3 má navyše priamy prístup na balkón, ktorý láka na oddych na čerstvom vzduchu.
Kuchyňa
Vybavená kuchyňa ponúka všetko, čo potrebujete na varenie: vysoko kvalitné domáce spotrebiče, riad a rôzne kuchynské príslušenstvo. Moderný jedálenský stôl so stoličkami vytvára útulný priestor pre spoločné stolovanie a oddych.
Kúpeľne
Byt disponuje dvoma modernými kúpeľňami:
• prístupná sprcha
• práčka
• umývadlo a WC
Komfort bývania
• Svetlé a moderné vybavenie vo všetkých miestnostiach
• Praktické rozdelenie priestoru pre individuálne bývanie
• Balkón s prístupom cez izbu 3
• Prvé bývanie po rekonštrukcii
Rozdelenie izieb a nájomné:
• Izba 1: 8 m² | 665 € vrátane režijných nákladov
• Izba 2: 14 m² | 795 € vrátane režijných nákladov
• Izba 3: 21 m² | 850 € vrátane režijných nákladov
• Izba 4: 8 m² | 645 € vrátane režijných nákladov
• Izba 5: 11 m² | 720 € vrátane režijných nákladov
Okolie a infraštruktúra
Byt sa nachádza na adrese Mainaustraße 38 v mníchovskej časti Pasing-Obermenzing, v pokojnej a ustálenej obytné oblasti s veľmi dobrou infraštruktúrou. Obchody s dennou potrebou, ako sú supermarkety, pekárne, drogerie a lekárne, sú dostupné pešo. Blízke Pasing Arcaden ponúkajú tiež široký výber obchodov, reštaurácií a služieb. V okolí sa nachádzajú aj školy, materské školy a zdravotnícke zariadenia, čo zdôrazňuje vysokú kvalitu bývania danej lokality.
Dopravné spojenie verejnou dopravou
Spojenie s verejnou dopravou je vynikajúce. Stanica München-Pasing je dostupná za krátky čas a ponúka spojenie na niekoľko prímestských liniek (vrátane S3, S4, S6, S8) ako aj regionálne a diaľkové vlaky. Vďaka tomu je centrum Mníchova dostupné za pár minút. Spojenie dopĺňa niekoľko autobusových a električkových liniek v okolí. Vodiči majú výhodu z rýchlej dostupnosti diaľnice A96 a dobrej spojenia s Vnútorným okruhom, čo umožňuje pohodlný prístup k centru mesta aj okolitým oblastiam.
Voľný čas a oddych
Okolie ponúka rôzne možnosti pre oddych a voľnočasové aktivity. Blízky Pasinger mestský park pozdĺž rieky Würm láka na prechádzky, beh a cyklistiku. Aj rekreačná oblasť okolo zámku Blutenburg a ďalšie zelené plochy v Obermenzingu poskytujú vysokú kvalitu pobytu. V okolí sa nachádzajú aj športoviská, fitness centrá a kluby, ktoré ponúkajú širokú škálu voľnočasových aktivít.
Kultúrne atrakcie
Okrem rozmanitých možností voľnočasových aktivít v bezprostrednom okolí je centrum Mníchova s bohatou kultúrnou ponukou z múzeí, divadiel, koncertov a gastronómie rýchlo dostupné vďaka vynikajúcemu dopravnému spojeniu. Zároveň Pasing-Obermenzing so svojimi ustálenými štruktúrami, týždennými trhmi, malými kaviarňami a mestským centrom okolo Pasinger Marienplatz ponúka atraktívnu kombináciu mestského života a pokojného bývania.
• Rekonštruovaný
• Otvorený obývací-jedálenský priestor
• Kompletne zariadený
• Balkón
• Svetlé a moderné vybavenie vo všetkých miestnostiach
• Praktické rozdelenie priestoru pre individuálne bývanie
• Prístup na balkón cez izbu 3
• Verejná doprava v bezprostrednom okolí
• Príjemné parkovacie možnosti v bezprostrednom okolí
Parametre nehnuteľnosti
| Vybavené | Vybavené |
|---|---|
| Číslo inzerátu | 994928 |
| Cena za jednotku | 9 € / m2 |
| Poschodie | 4. poschodie |
|---|---|
| Úžitková plocha | 62 m² |
Čo táto nehnuteľnosť ponúka?
| Balkón | |
| Garáž |
| Pivnica | |
| MHD 3 minúty pešo |
V okolí nehnuteľnosti nájdete
Stále hľadáte to pravé?
Nastavte si strážneho psa. Ponuky vybrané na mieru dostanete súhrnne 1× denne e-mailom. S Premium profilom máte po ruke rovno 5 strážcov a keď sa niečo objaví, informujú vás obratom.
























