Predaj bytu 4+1 • 109 m² bez realitkyBremerhaven Geestemünde-Nord Bremen 27570
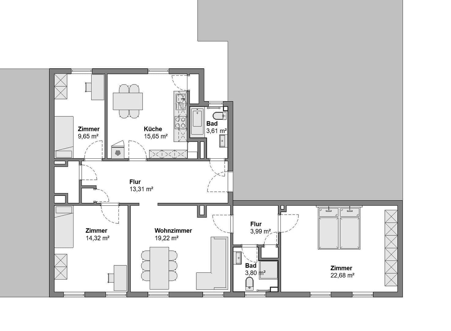
Bremerhaven Geestemünde-Nord Bremen 27570MHD 1 minúta pešoAtraktívny, svetlý byt sa nachádza na druhom poschodí udržiavaného viacrodinného domu a ponúka neprekrytý výhľad na Holzhafen. Odráža sa v ňom priestranné usporiadanie s veľkou obytnou kuchyňou, štyrmi svetlými izbami, dvoma kúpeľňami a množstvom úložného priestoru v niekoľkých skrýňach. Klasický charakter staršej stavby je zdôraznený približne 3,40 m vysokými stropmi a v každej miestnosti položeným parketovým dreveným podlahovým krytinou, ktorá vytvára mimoriadne priestrannú a útulnú atmosféru.
Byt je v dobrom technickom stave. Vykurovanie zabezpečuje plynová kotolňa z roku 2014. Plastové okná boli vymieňané v rokoch 2002 a 2017, čo zaručuje dobrú izoláciu. Pri rekonštrukcii v roku 2021 boli všetky miestnosti čerstvo tapetované a natreté. Navyše, strecha budovy bola v roku 2022 úplne prekrytá novou krytinou a na štvrtom poschodí vznikol aj nový sušiarenský priestor.
Malá, veľmi udržiavaná záhrada je k dispozícii obyvateľom na spoločné využitie a vyzýva na oddych. Ďalšie možnosti uskladnenia pre bicykle, krabice či podobné veci ponúka existujúci sklep aj podkrovný priestor.
Byt je pripravený na nasťahovanie a momentálne nie je prenajímaný.
Nehnuteľnosť sa nachádza v Bremerhavene, v mestskej časti Geestemünde, priamo pri Holzhafen.
Len 10 minút pešo dosiahnete rieku Weser, hlavnú nádražnú stanicu, centrum mesta aj vysokú školu. Najbližšia zastávka autobusu je vzdialená len niekoľko metrov.
Najbližšie predajne sieťaí Netto, Edeka, Aldi a Rossmann nájdete len 600 metrov ďalej na ulici Elbstraße. Okrem toho sa v okolí nachádzajú reštaurácie, pekárne, kaviarne, lekári aj nákupné centrum. Taktiež niekoľko módnych obchodov, zeleň a parky, kníhkupectvá, fitness centrum a bar sú veľmi blízko.
Byt je orientovaný k Holzhafen, čo zabezpečuje neprekrytý výhľad do zelene. Detské ihrisko sa nachádza len pár krokov od domu.
Parametre nehnuteľnosti
| Vek | Nad 50 rokov |
|---|---|
| Stav | Dobrý |
| Poschodie | 2. poschodie |
| PENB | E - Nehospodárne |
| Cena za jednotku | 1 514 € / m2 |
| Dostupné od | 18. 3. 2026 |
|---|---|
| Dispozícia | 4+1 |
| Číslo inzerátu | 994910 |
| Úžitková plocha | 109 m² |
Čo táto nehnuteľnosť ponúka?
| Pivnica |
| MHD 1 minúta pešo |
V okolí nehnuteľnosti nájdete
Stále hľadáte to pravé?
Nastavte si strážneho psa. Ponuky vybrané na mieru dostanete súhrnne 1× denne e-mailom. S Premium profilom máte po ruke rovno 5 strážcov a keď sa niečo objaví, informujú vás obratom.








