Predaj domu 5+1 • 265 m² bez realitky, Dolné Sasko
, Dolné SaskoMHD 1 minúta pešo • Parkovanie • GarážTáto jedinečná mestská vila vo vidieckom štýle sa tyčí na rozsiahlej parcele a spája to najlepšie z oboch svetov: reprezentatívnu veľkorysosť klasickej vily s teplým, rustikálnym kúzlom vidieckeho života.
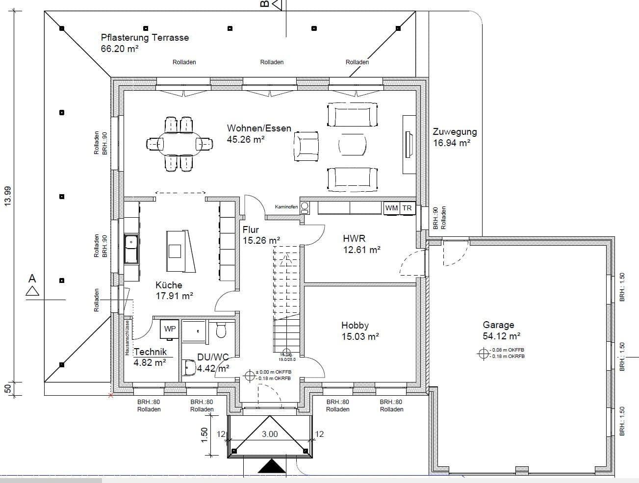
Vo vnútri vás čaká oáza zaplavená svetlom vďaka dvom plnohodnotným poschodiam a vysokým stropom. Srdcom domu je otvorená, priestranná obývacia a jedálenská časť s útulným kachlovým kachľovým sporákom, ktorý počas chladných večerov zabezpečí pohodlie.
Otvretá kuchyňa, kde sa spoločne smejete, varíte a vychutnávate, vytvára priestor, kde hostia sedia pri bare, zatiaľ čo vy pripravujete kulinárske lahôdky a ste stále stredobodom diania – namiesto toho, aby ste stáli osamote pri sporáku. Jedlo sa tak stáva spoločenským zážitkom.
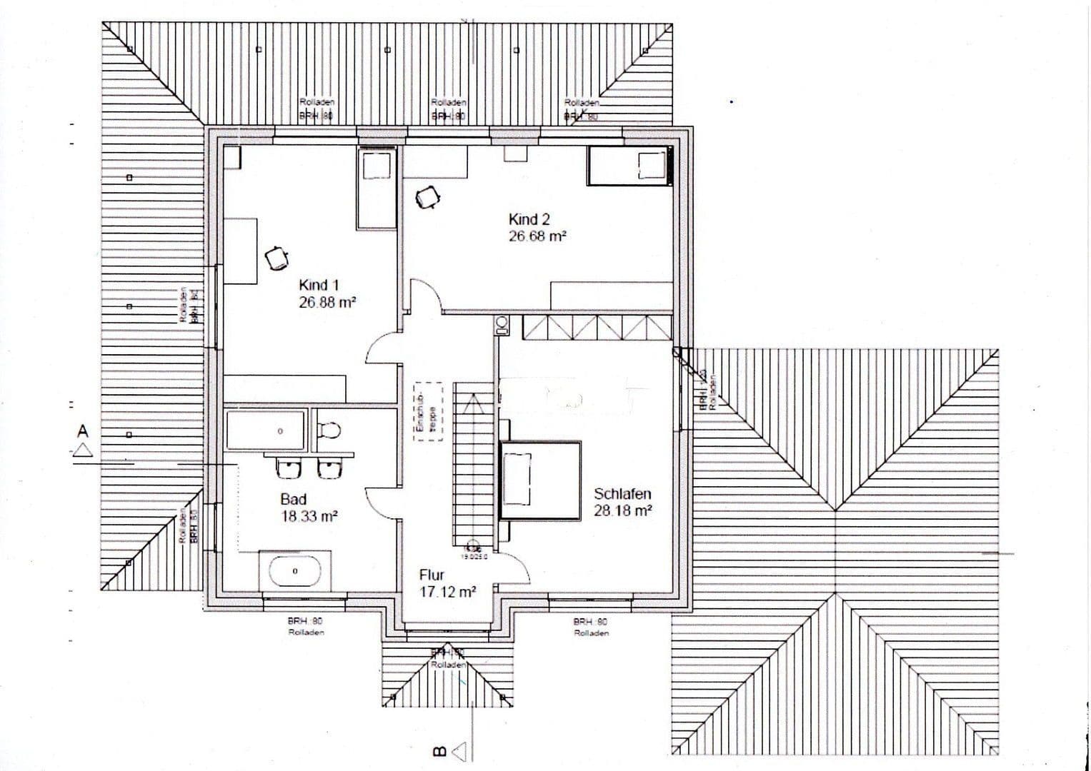
Horné poschodie ponúka priestranné spálne a detské izby, ako aj luxusnú kúpeľňu s voľne stojacou vaňou.
Rozsiahla záhrada so svojimi ovocnými stromami a priestrannou verandou vás pozýva na oddych a vychutnávanie – ideálny úkryt pre únik z každodenného zhonu.
Mestská vila je doplnená harmonicky integrovanou dvojgarážou. Široká, premozkaná príjazdová cesta navyše ponúka tri parkovacie miesta.
Táto vila tak ponúka nielen štýlový domov, ale aj vynikajúcu kvalitu života v žiadanej lokalite.
Unikátna poloha v srdci Riede! Je to miesto pre celú rodinu – vidiecke a pokojné, no zároveň ste rýchlo v meste.
Táto nehnuteľnosť sa nachádza v jednej z najlepších lokalít očarujúceho mesta Riede, zasadeného v pokojnej, rodinne prívetivej štvrti. Hravá ulica končí v dopravne upokojenej slepej uličke, čo zvyšuje bezpečnosť pre deti a pocit súkromia.
Pešo sa dostanete ku všetkým dôležitým zariadeniam každodenného života, medzi ktoré patria: materská škôlka (deti 1-3 roky), škôlka, základná škola, športová hala, niekoľko ihrísk, ako aj supermarket, dve pekárne, pošta a autobusové zastávky.
Lekársku starostlivosť zabezpečuje komunitná ambulancia s troma lekármi, lekáreňou a fyzioterapiou, dostupná pešo.
Voľnočasové aktivity v a okolo Riede ponúkajú miestny športový klub, futbalové ihrisko, strelčiansky klub, pre nadšencov jazdy na koni jazdecké centrum, v Dreye športový prístav so seglařským a vodným športovým klubom, dedičný statok v Thedinghausen s parkovým a ihriskovým vybavením, v Verdene aquapark a vo Weyhe vonkajší bazén.
V okruhu 7 km sa nachádzajú Lidl, Edeka, Netto, lekáreň, lekárske ambulancie, škôlka, základná škola, stredná škola a gymnázium, ako aj verejná doprava.
Riede disponuje výbornou dopravnou infraštruktúrou. Busom a vlakom sa rýchlo dostanete do okolitých obcí a do Bremene. Autom trvá cesta približne 10 minút k miestnej značke Bremen, rovnako aj k diaľničnému príjazdovému výjazdu Bremen-Arsten. Historické centrum Bremene je dostupné za cca 23 minút a letisko Bremen je vzdialené asi 18 minút autom. Výrobný závod Mercedes-Benz je vzdialený približne 16 km.
A+ Mestská vila, 40KfW Dom s obytnou plochou 264,29 m² + garáž 54 m², 10 minút od HB.
Rodinný sen – priestranné bývanie v „Zelenom Riede“
Na 264 m² sa spájajú priestranné dispozície, vysoko kvalitné materiály a vybavenie, ktoré nenecháva nič na želanie.
Táto mestská vila bola postavená v solídnej murovej konštrukcii a ponúka bezpečný a trvácny domov.
Vybavenie:
• Zemné teplo so 6 slučkami umiestnenými na ploche, tepelné čerpadlo s pasívnym chladením, ohrevník teplej vody (180 litrov, značka: Alpha InnoTec, typ: WZ S81H/K)
• Príjemné podlahové kúrenie v celom dome, riadené vetracie zariadenie so spätným získavaním tepla a s dodatočnými vymeniteľnými filtrami – pollenový filter na leto a uhlíkový filter na zimu
• Svetlý obývací a jedálenský priestor s kachlovým sporákom a otvorenou kuchyňou (zabudovaná kuchyňa Nobilia)
• Uzamykatelné okná s viacerými zaseknutými kovovými mrežami a terasové dvere s trojitým zasklením a elektrickými rolietami
• Vstupné dvere a garážové dvere s viacerými zámkami, vybavené moderným bezpečnostným mechanizmom a kvalitnými zámkovými valcami
• Prízemie a kúpeľňa (v hornom poschodí) s kvalitnými dlaždicami
• Horné poschodie s laminátovou podlahou
• Optické pripojenie (vláknové pripojenie), všetky obytné miestnosti vybavené LAN a TV zásuvkami
• Prízemná výška stropu 270 cm, výška stropu na hornom poschodí 250 cm, vnútorné dverové krídla s rozmermi 86 cm x 212 cm
• Kúpeľňa: sprcha s rozmermi 118 cm x 98 cm, voľne stojaca vaňa, 2 umývadlá
• Hosťovská kúpeľňa so sprchou (90 cm x 90 cm)
• Zateplený podkrovný priestor so sadrokartónom
• Horné a dolné poschodie majú železobetónový strop
• Garáž s rozlohou 54,12 m², výškou stropu 260 cm, so 2 elektrickými termoizolačnými garážovými vrátnymi dverami Hörmann, 3 uzamykatelnými oknami s parapetmi, garážovými dverami so zabezpečovacím zámkom, vnútorné steny garáže omietnuté, podlaha s kvalitnými priemyselnými dlaždicami, prístupný podkrovie cez zateplený rad schodov, drevený strop s obložením zo sadrokartónu a 2 zinkovanými H-čelikovými nosníkmi, zateplenými 200 mm sklenskej vlnou. V murive je použitých 8 výstužných prvkov zo železobetónu s obvodovým prstencovým armovaním.
• Vonkajší obvodový múr domu aj garáže je z OLFRY škridiel a pevných bázových škridiel
• Čierne, kvalitné, glazované strešné škridly (s výhodou: nepriťahujú nečistoty, ako zelený povlak), krytina pre terasy a vstupné dvere (drevená konštrukcia so strešnými škridiel)
• Pozemok je komplet oplotený a uzamykatelný (vpredu zinkovaný, práškovou farbou natretý kovaný železný plot, po stranách a vzadu dvojlánový plot s výškou 182 cm)
Ďalšie údaje:
• Obytná plocha: 264,29 m² + garáž 54,12 m²
• Rozloha pozemku: 1040 m²
• Stav objektu: ako nový
• Rok výstavby: 2015
• K dispozícii od: 01.09.2026
Energetika:
• Energetický preukaz: Energetický spotrebný preukaz
• Spotreba energie: 9,0 kWh/(m²*a)
• Energetická trieda: A+
• Typ vykurovania: Podlahové kúrenie
• Hlavný zdroj energie: Zemné teplo
Všetky údaje nie sú považované za garantované vlastnosti.
Nehnuteľnosť sa predáva v stave, v akom sa nachádza.
Táto nehnuteľnosť je bez provízie a bez zaťaženia.
Prehliadka je možná len na základe dokladu o finančnej spôsobilosti.
Parametre nehnuteľnosti
| Vek | Nad 50 rokov |
|---|---|
| Stav | Veľmi dobrý |
| Číslo inzerátu | 994672 |
| Úžitková plocha | 265 m² |
| Celkové poschodia | 2 |
| Dostupné od | 1. 9. 2026 |
|---|---|
| Dispozícia | 5+1 |
| PENB | A - Mimoriadne úsporné |
| Plocha pozemku | 1 040 m² |
| Cena za jednotku | 3 698 € / m2 |
Čo táto nehnuteľnosť ponúka?
| Garáž | |
| MHD 1 minúta pešo |
| Parkovanie | |
| Terasa |
V okolí nehnuteľnosti nájdete
Stále hľadáte to pravé?
Nastavte si strážneho psa. Ponuky vybrané na mieru dostanete súhrnne 1× denne e-mailom. S Premium profilom máte po ruke rovno 5 strážcov a keď sa niečo objaví, informujú vás obratom.





















