
Prenájom bytu 3+kk • 105 m² bez realitkyIm Schießgärtle 17 Stuttgart Möhringen Baden-Württemberg 70567
Im Schießgärtle 17 Stuttgart Möhringen Baden-Württemberg 70567MHD 6minút pešo • GarážVitajte vo vašom atraktívnom 3,5-izbovom byte na 1. nadzemnom poschodí elegantného a novo zrekonštruovaného trojrodinného domu v Stuttgart-Möhringen.
Po základnej rekonštrukcii celého domu je tento byt teraz pripravený na prvé obývanie a ponúka moderný komfort bývania na približne 105 m² obytného priestoru.
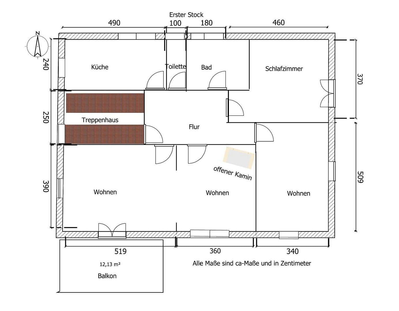
Byt je rozdelený na obývací a jedálenský priestor vrátane priestoru s krbom a balkónom, samostatnú kuchyňu, veľkú pracovňu a spálňu, kúpeľňu, hosťovskú toaletu a otvorený chodbu, ktorý spája všetky miestnosti. Okrem toho je k dispozícii veľká pivnica s prípojkou pre práčku.
Interiérové vybavenie s podlahovým kúrením, ventiláciami s rekuperáciou tepla, bezbariérovým sprchovacím kútom, LAN pripojeniami vo všetkých izbách vrátane mediálneho distribútora a prípravou na optické vlákno a oveľa viac zaisťuje veľmi príjemný pocit z bývania.
Topenie prebieha modernou tepelnou čerpadlom, ktorá okrem iného dostáva energiu z fotovoltaickej elektrárne.
V rámci rekonštrukcie bol dom izolovaný, všetky vodovodné potrubia, elektrické vedenia a domáce techniky boli uvedené do najmodernejšieho stavu, aniž by bol narušený čar domu.
Obrázky boli vytvorené za pomoci umelej inteligencie a slúžia na orientáciu, keďže interiérová úprava ešte nie je ukončená.
Ulica Im Schießgärtle je veľmi tichá a napriek tomu je centrum Möhringenu vzdialené len niekoľko minút.
Byt bol zrekonštruovaný s vysoko kvalitnými a veľmi prémiovými materiálmi.
Parametre nehnuteľnosti
| Vek | Nad 50 rokov |
|---|---|
| Dispozícia | 3+kk |
| Číslo inzerátu | 994571 |
| Úžitková plocha | 105 m² |
| Stav | Po rekonštrukcii |
|---|---|
| Poschodie | 1. poschodie z 3 |
| PENB | A - Mimoriadne úsporné |
| Cena za jednotku | 24 € / m2 |
Čo táto nehnuteľnosť ponúka?
| Balkón | |
| Garáž |
| Pivnica | |
| MHD 6 minút pešo |
V okolí nehnuteľnosti nájdete
Stále hľadáte to pravé?
Nastavte si strážneho psa. Ponuky vybrané na mieru dostanete súhrnne 1× denne e-mailom. S Premium profilom máte po ruke rovno 5 strážcov a keď sa niečo objaví, informujú vás obratom.







