
Prenájom bytu 3+kk • 92 m² bez realitkyHerzog- Georg- Straße 16, , Bavorsko
Herzog- Georg- Straße 16, , BavorskoMHD 2 minúty pešo • VýťahTento krásny podkrovný byt bol bezbariérový prestavaný a prvýkrát obývaný v roku 2021, a preto je objekt v bezchybnom stave. Budova, v ktorej sa byt nachádza, bola taktiež kompletne zrekonštruovaná.
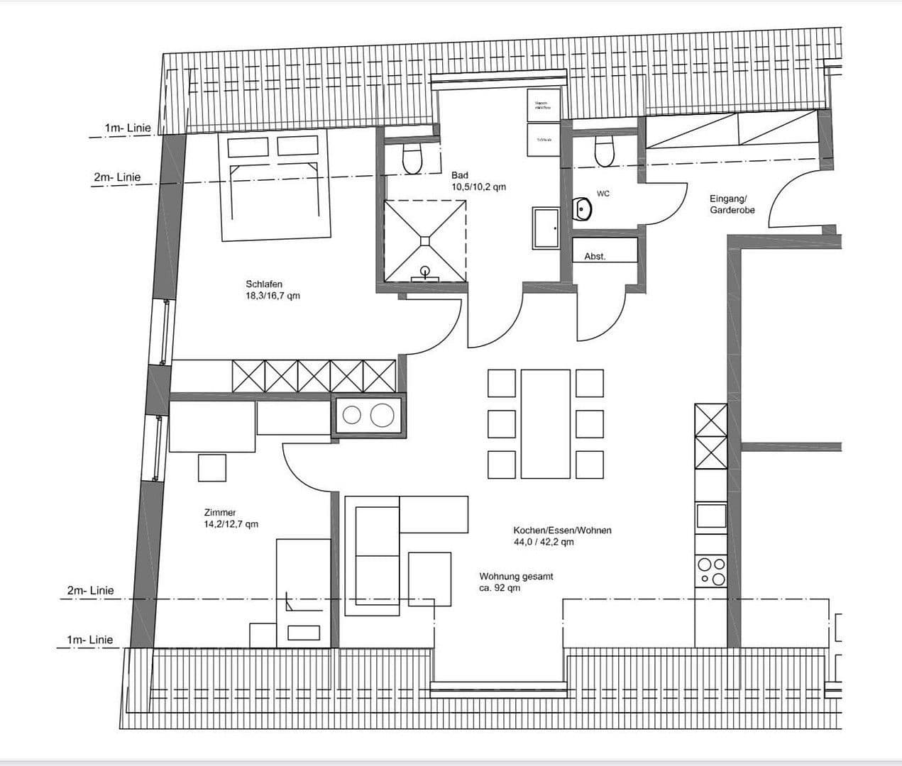
Apartmán zahŕňa priestrannú kuchynskú/jedálenskú/obývaciu časť s novou, kvalitnou kuchyňou, dve priestranné uzavreté izby, kúpeľňu s množstvom denného svetla vrátane stolársky vyrobeného zrkadlového skrine a umývadla, ako aj samostatné hostínske WC a malú pivničku. Všetky miestnosti sú vybavené podlahovým kúrením, k dispozícii je bezbariérová veľká sprcha, možnosť umiestnenia práčky a sušičky v kúpeľni a centrálna ventilácia obytných priestorov.
Byt je pohodlne dostupný moderným výťahom. Navyše, priestranné usporiadanie, ktoré je veľmi vhodné aj pre obyvateľov s poruchou chôdze, vás určite zaujme. K dispozícii je aj veľká pivnica, ktorá poskytuje dodatočný úložný priestor.
Vychutnajte si centrálnu polohu s úžasným a zaujímavým výhľadom. Všetky obchody a služby v centre mesta sú pešo dostupné. Absolútne centrálny a napriek tomu pokojnú, na najlepšom mieste pre zaujímavý výhľad počas celého dňa. Veľká, kvalitná vstavaná kuchyňa a stolársky vyrobený kúpeľňový nábytok sú zahrnuté v základnom nájme.
Vhodné pre starších, prípadne osoby s poruchou chôdze, jednotlivcov alebo páry, ale aj pre mladé páry s maximálne jedným dieťaťom (celkovo maximálne 3 osoby);
– Väčšinou vhodné pre používateľov invalidného vozíka;
– Nájomníci s vlastným príjmom budú uprednostnení (žiadny úrad práce);
– Parkovanie je bez problémov zabezpečené obyvateľským parkovacím miestom priamo pred dverami.
Parametre nehnuteľnosti
| Vek | Nad 50 rokov |
|---|---|
| Stav | Veľmi dobrý |
| Číslo inzerátu | 994547 |
| Cena za jednotku | 11 € / m2 |
| Dostupné od | 11. 3. 2026 |
|---|---|
| Dispozícia | 3+kk |
| Úžitková plocha | 92 m² |
Čo táto nehnuteľnosť ponúka?
| Bezbariérový prístup | |
| Výťah |
| Pivnica | |
| MHD 2 minúty pešo |
V okolí nehnuteľnosti nájdete
Stále hľadáte to pravé?
Nastavte si strážneho psa. Ponuky vybrané na mieru dostanete súhrnne 1× denne e-mailom. S Premium profilom máte po ruke rovno 5 strážcov a keď sa niečo objaví, informujú vás obratom.











