Predaj domu • 470 m² bez realitky, Durínsko
, DurínskoMHD 2 minúty pešoHistorická viacrodinná budova z roku 1900, zapísaná ako pamiatková, má celkovú obytnú plochu približne 470 m². Udržiavaná budova stojí na parcele o veľkosti približne 245 m² a nachádza sa vo vynikajúcom stave.
Praktické dispozície umožňujú flexibilné usporiadanie a využitie priestorov. Všetky poschodia sú vybavené laminátom, čo vytvára jednotnú a príjemnú atmosféru.
Niektoré byty sú čiastočne vybavené útulným balkónom. Dom má podzemie, čo ponúka ďalší úložný priestor a rôzne možnosti využitia.
Ročný čistý nájom (očakávaný) činí približne 29 400 €. V súčasnosti je jeden byt prenajatý. Bude opäť voľný od 01.05.2026.
Tešíme sa na váš dopyt a radi vám poskytneme ďalšie informácie.
Viacrodinná budova sa nachádza v blízkosti centra Altenburgu. Mesto leží uprostred mestského trojuholníka Leipziga, Chemnitzu a Gery. Potravinové obchody, možnosti každodenného nákupu, gastronomické zariadenia, materské školy, školy, lekári, lekárne, banky a mnoho ďalších sú v bezprostrednej blízkosti a dostupné verejnou dopravou. Byt je veľmi vhodne situovaný z hľadiska dopravy, s rýchlym spojením napríklad s diaľnicami A 4 a A 72.
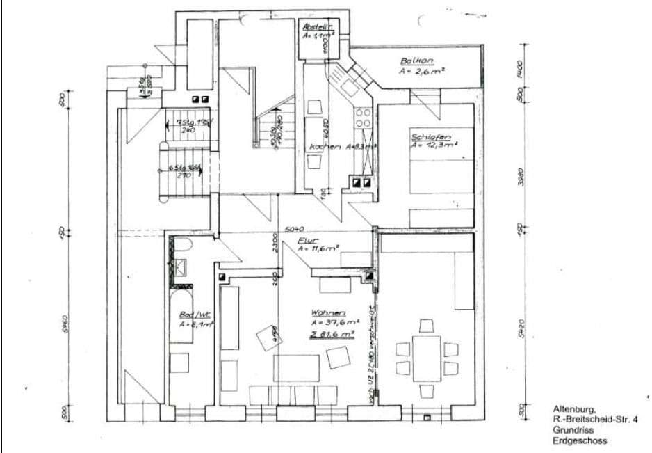
Prízemie:
BYT 1: 3 izby, kuchyňa, kúpeľňa (81,60 m²)
1. nadzemné podlažie:
BYT 2: 2 izby, kuchyňa, kúpeľňa (59,40 m²)
BYT 3: 2 izby, kuchyňa, kúpeľňa (44,30 m²)
2. nadzemné podlažie:
BYT 4: 4 izby, kuchyňa, kúpeľňa (103,00 m²)
3. nadzemné podlažie:
BYT 5: 2 izby, kuchyňa, kúpeľňa (59,40 m²)
BYT 6: 2 izby, kuchyňa, kúpeľňa (44,30 m²)
Poschodie pod strechou:
BYT 7: 2 izby, kuchyňa, kúpeľňa (39,10 m²)
BYT 8: 2 izby, kuchyňa, kúpeľňa (38,90 m²)
Predaj nehnuteľnosti prebieha v súčasnom stave. Predávajúci nezodpovedá za stav objektu, absenciu vád materiálu ani za rozlohu nehnuteľnosti. Predaj prebieha s vylúčením akejkoľvek zodpovednosti za skryté vady, pokiaľ nejde o úmyselný podvod alebo garantované vlastnosti. Realitná ponuka je nedviazaná. Chyby a medzilehlý predaj si vyhradzujú právo.
Zaujali Vás? Potom nám pošlite svoj dopyt.
Parametre nehnuteľnosti
| Vek | Nad 50 rokov |
|---|---|
| Číslo inzerátu | 994188 |
| Úžitková plocha | 470 m² |
| Cena za jednotku | 1 032 € / m2 |
| Stav | Dobrý |
|---|---|
| PENB | D - Menej hospodárne |
| Plocha pozemku | 245 m² |
Čo táto nehnuteľnosť ponúka?
| Pivnica |
| MHD 2 minúty pešo |
V okolí nehnuteľnosti nájdete
Stále hľadáte to pravé?
Nastavte si strážneho psa. Ponuky vybrané na mieru dostanete súhrnne 1× denne e-mailom. S Premium profilom máte po ruke rovno 5 strážcov a keď sa niečo objaví, informujú vás obratom.











