
Predaj bytu 3+1 • 87 m² bez realitkyPestalozzistraße 28 Graz Jakomini Steiermark 8010
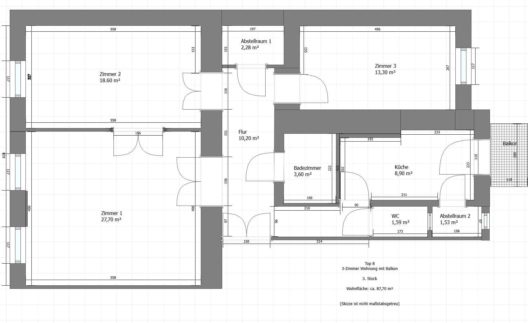
Pestalozzistraße 28 Graz Jakomini Steiermark 8010MHD 2 minúty pešoKaždá zo 3 izieb je prístupná samostatne, pričom dve veľké miestnosti sú navyše spojené dvojdverovým vchodom. K dispozícii sú 2 úložné miestnosti, 1 kúpeľňa a malý balkón s výhľadom na záhradu vo vnútornom dvore.
Byt je veľmi svetlý, nakoľko sa nachádza v 3. poschodí. Podkrovia nad bytom bolo zrekonštruované a novozariadené.
K bytu je pridelená pivnica a existuje možnosť spoluvyužívania spoločnej malej záhrady vo vnútornom dvore.
Byt sa nachádza priamo za obľúbeným Augartenparkom v zrekonštruovanej starej budove, v centrálnej a pokojnej lokalite. Po pár minútach chôdze dosiahnete centrum Grazu, Jakominiplatz, ako aj množstvo obchodov a podnikov.
Byt je čiastočne zariadený a v obytných miestnostiach sa momentálne nachádzajú elektrické ohrievače. V dome je tiež možnosť pripojenia na existujúcu plynovú alebo diaľkovú teplovodnú sieť.
Parametre nehnuteľnosti
| Dostupné od | 10. 3. 2026 |
|---|---|
| Dispozícia | 3+1 |
| Číslo inzerátu | 994138 |
| Cena za jednotku | 4 011 € / m2 |
| Stav | Pred rekonštrukciou |
|---|---|
| Poschodie | 3. poschodie |
| Úžitková plocha | 87 m² |
Čo táto nehnuteľnosť ponúka?
| Balkón | |
| MHD 2 minúty pešo |
| Pivnica |
V okolí nehnuteľnosti nájdete
Stále hľadáte to pravé?
Nastavte si strážneho psa. Ponuky vybrané na mieru dostanete súhrnne 1× denne e-mailom. S Premium profilom máte po ruke rovno 5 strážcov a keď sa niečo objaví, informujú vás obratom.














