
Predaj bytu 2+1 • 53 m² bez realitkyNa Malovance, Praha - Střešovice
Na Malovance, Praha - StřešoviceVybavené • Výťah • Balkón 2 m² • Pivnica 3 m²REZERVOVÁNO Přímý majitel nabízí ke koupi byt v osobním vlastnictví o užitné ploše 53 m², umístěný ve 2. nadzemním patře udržovaného cihlového domu s výtahem v jedné z nejžádanějších lokalit Prahy 6 – Střešovicích, ulice Na Malovance. Byt disponuje balkonem, sklepem a možností užívání společné zahrady ve vnitrobloku.
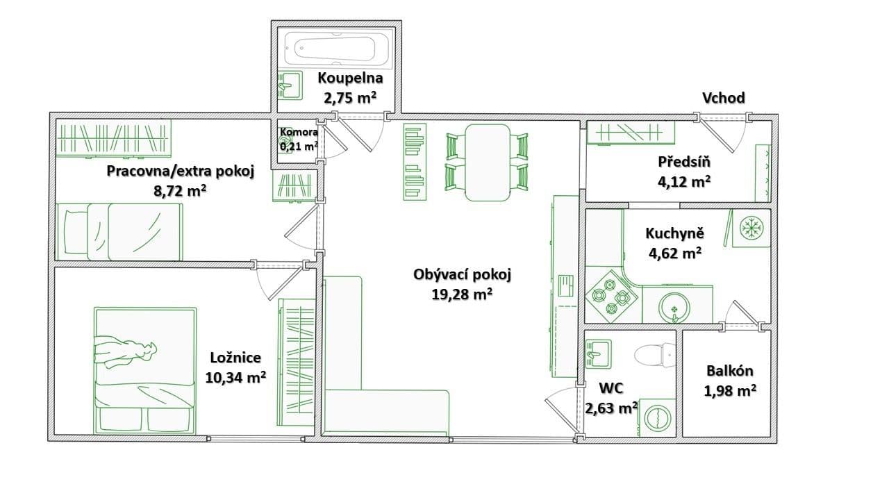
Byt má praktickou a variabilní dispozici 2+1 – najdete zde prostorný obývací pokoj, kuchyň a ložnici, která byla rozdělena lehkou příčkou. Tím vznikl další pokoj, vhodný například jako dětský pokoj, pracovna nebo šatna. Příčku lze však kdykoliv odstranit. Součástí bytu je také koupelna, samostatná toaleta a komora.
Byt je ve velmi dobrém stavu, s plastovými okny s kvalitní zvukovou izolací, plovoucími podlahami a vlastním plynovým kondenzačním kotlem (pravidelně servisovaným), který zajišťuje nízké provozní náklady a komfortní regulaci tepla. Díky orientaci oken a balkonu má byt příjemné klima i během letních měsíců. Vstupní dveře do bytu byly renovovány v roce 2023.
Součástí prodeje je sklepní kóje o velikosti cca 3 m². Dům prošel v roce 2012 kompletní rekonstrukcí včetně zateplení a je ve velmi dobrém technickém stavu. SVJ hospodaří zodpovědně a disponuje dostatečnou finanční rezervou.
________________________________________
Lokalita s geniem loci
Střešovice nabízejí kompletní občanskou vybavenost, výbornou dopravní dostupnost a dostatek zeleně pro sport i odpočinek – to vše činí z tohoto bytu jak skvělou investiční příležitost, tak i ideální místo pro vlastní bydlení. V bezprostředním okolí se nachází:
• Strahovský a Břevnovský klášter, Pražský hrad
• park Ladronka, Obora Hvězda, koupaliště Petynka, bazén Strahov
• FN Motol, ÚVN, poliklinika
• restaurace, kavárny, obchody
• mateřské a základní školy
Tramvajová zastávka je vzdálena cca 3 minuty chůze, autobusová cca 1 minutu. Na stanice metra Hradčanská, Dejvická či Malostranská se pohodlně dostanete do 5–10 minut.
Prohlídky jsou možné po předchozí domluvě. V případě jakýchkoliv dotazů mne prosím neváhejte kontaktovat. Prodej je realizován bez realitního zprostředkování.
RESERVED The direct owner is offering for sale a privately owned apartment with a usable area of 53 m², located on the 2nd floor of a well-maintained brick building with an elevator in one of the most sought-after locations in Prague 6 – Střešovice, on Na Malovance Street. The apartment has a balcony, a cellar, and the possibility of using a shared garden in the courtyard.
The apartment has a practical and variable 2+1 layout – you will find a spacious living room, kitchen, and bedroom, which has been divided by a light partition. This has created another room, suitable for example as a children's room, working room or dressing room. However, the partition can be removed at any time. The apartment also includes a bathroom, separate toilet, and storage room.
The apartment is in very good condition, with plastic windows with high-quality sound insulation, floating floors, and its own gas condensing boiler (regularly serviced), which ensures low operating costs and comfortable heat regulation. Thanks to the orientation of the windows and balcony, the apartment has a pleasant climate even during the summer months. The entrance door to the apartment was renovated in 2023.
The sale includes a cellar storage unit of approximately 3 m². The building underwent a complete renovation in 2012, including insulation, and is in very good technical condition. The owners' association manages the building responsibly and has sufficient financial reserves.
________________________________________
Location with the Genius Loci
Střešovice offers complete civic amenities, excellent transport accessibility, and plenty of green space for sports and relaxation—all of which make this apartment both a great investment opportunity and an ideal place to live. In the immediate vicinity you will find:
• Strahov and Břevnov monasteries, Prague Castle
• Ladronka Park, Obora Hvězda, Petynka swimming pool, Strahov swimming pool
• Motol University Hospital, Military University Hospital, health centre
• restaurants, cafes, shops
• kindergartens and elementary schools
The tram stop is about a 3-minute walk away, and the bus stop is about 1 minute away. The Hradčanská, Dejvická, and Malostranská metro stations are easily accessible within 5-10 minutes.
Viewings are possible by prior arrangement. If you have any questions, please do not hesitate to contact me. The sale is being conducted without a real estate agent.
Parametre nehnuteľnosti
| Stav | Veľmi dobrý |
|---|---|
| Dispozícia | 2+1 |
| Poschodie | 2. poschodie z 5 |
| Číslo inzerátu | 993680 |
| PENB | D - Menej hospodárne |
| Úžitková plocha | 53 m² |
| Konštrukcia budovy | Tehla |
|---|---|
| Vybavené | Vybavené |
| Vykurovanie | Plynové |
| Vlastníctvo | Osobné |
| Umiestnenie | Centrum mesta |
| Cena za jednotku | 165 849,06 CZK / m2 |
Vyberáte byt?
Majte istotu, že máte všetky dôležité informácie!
Čo táto nehnuteľnosť ponúka?
| Balkón 2 m² | |
| Výťah |
| Pivnica 3 m² |
V okolí nehnuteľnosti nájdete
Stále hľadáte to pravé?
Nastavte si strážneho psa. Ponuky vybrané na mieru dostanete súhrnne 1× denne e-mailom. S Premium profilom máte po ruke rovno 5 strážcov a keď sa niečo objaví, informujú vás obratom.





















