Prenájom bytu 4+1 • 131 m² bez realitkyKunibertusplatz 7, , Severné Porýnie - Westfálsko
Kunibertusplatz 7, , Severné Porýnie - WestfálskoMHD do minúty pešo • GarážTento 4-izbový mezonetový byt sa nachádza vo veľmi udržiavanom obytnom dome priamo v centre Erftstadt-Gymnich. Obytná plocha približne 130,74 m² je rozdelená na 4 izby, kvalitnú funkčnú zabudovanú kuchyňu, predsieň, kúpeľňu s veľkou vaňou, samostatnou sprchou a WC, ako aj samostatnú sprchák (kúpeľňu so sprchou a WC). Jedna kúpeľňa sa nachádza v 2. poschodí, druhá na hornej úrovni bytu.
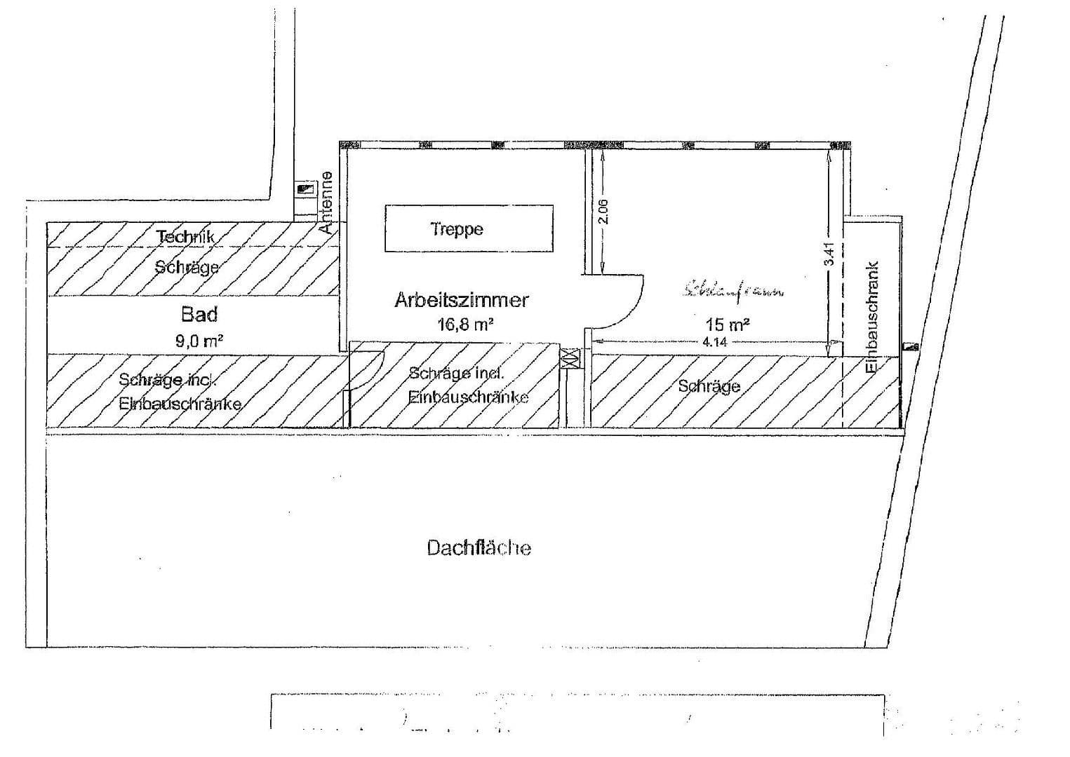
Rozloženie:
V 2. poschodí nájdete obývaciu izbu, dve spálne, kuchyňu (zabudovaná kuchyňa je prítomná) a sprcháreň s hosťovským WC. Cez schodisko integrované v chodbe sa dostanete na galériu v podkroví, ďalšiu izbu a pohodlnú kúpeľňu s veľkou vaňou a samostatnou sprchou.
V nižšej kúpeľni je umiestnené prípojka pre práčku a možnosť inštalácie sušičky. V horej kúpeľni je taktiež možnosť umiestnenia sušičky. Vo vnútornom dvore nájdete samostatnú miestnosť na sušenie a miestnosť pre bicykle.
K bytu patrí aj pivnica.
Starostlivo upravený dvor môže byť využívaný ako voľný priestor.
Garáž v predĺženom variante sa nachádza v prízemí vedľa vstupu (elektricky ovládané garážové dvere s diaľkovým ovládaním).
Presvedčte sa sami o tejto príjemnej ponuke a dohodnite si individuálny termín prehliadky!
Prechod vykurovacích telies na diaľkový odber dátumu merania nastane v júli 2026.
Výpočet vedľajších a vykurovacích nákladov pre 4 osoby za účtovné obdobie od 01.07.2026 do 30.06.2027.
Byt na adrese Kunibertusplatz 7 sa nachádza v pokojnej a zároveň dobre dostupnej lokalite v meste Erftstadt. Okolie je charakterizované udržiavanými obytnými domami, množstvom zelene a príjemnou susedskou atmosférou – ideálne pre tých, ktorí si želajú bývať v prírode a zároveň blízko centra.
Obchody pre bežné denné potreby, pekárne, lekárne i ordinácie sú dostupné v priebehu niekoľkých minút. Tiež materské školy, školy a možnosti voľnočasových aktivít sa nachádzajú v tesnej blízkosti. V blízkosti sa nachádza aj nákupné centrum a ďalší poskytovatelia služieb, čo zabezpečuje dodatočný komfort v každodennom živote.
Dopravná dostupnosť je výborná: cez diaľnicu A1 sa rýchlo dostanete smerom do Kolína nad Rýnom a Bonnu. Verejná doprava je dobre rozvinutá – autobusové a železničné spoje umožňujú pohodlné spojenie s okolitými mestami a obcami. Autobusová zastávka sa nachádza menej ako 1 minútu pešo.
Vybavenie:
– Kúpeľne so žiaľovými a spodnými skrinkami
– Zariadená L-kuchyňa s kvalitnými spotrebičmi a teleskopickými zásuvkami
– Okná s dvojitým zasklením
– Čiastočne elektrické žalúzie
– Strešné okná, ktoré sa čiastočne otvárajú elektricky pomocou diaľkového ovládača (časť z nich je vybavená senzorom dažďa)
Podlahové krytiny:
– Vysokokvalitná parketa z masívneho dreva v obývacej izbe
– Obklady v kúpeľniach, kuchyni a predsieni
– Ostatné miestnosti sú vybavené laminátovou podlahou
– Priestranný dvor je vybavený záhradným stolom, stoličkami a slnečníkom, ktoré sú k dispozícii nájomcom
– Miestnosť pre bicykle
– Miestnosť na sušenie
– Pivnica pre byt o rozlohe 9,30 m²
Parametre nehnuteľnosti
| Vek | Nad 50 rokov |
|---|---|
| Stav | Dobrý |
| Poschodie | 2. poschodie z 3 |
| PENB | E - Nehospodárne |
| Cena za jednotku | 9 € / m2 |
| Dostupné od | 1. 5. 2026 |
|---|---|
| Dispozícia | 4+1 |
| Číslo inzerátu | 993661 |
| Úžitková plocha | 131 m² |
Čo táto nehnuteľnosť ponúka?
| Pivnica | |
| MHD 0 minút pešo |
| Garáž | |
| Terasa |
V okolí nehnuteľnosti nájdete
Stále hľadáte to pravé?
Nastavte si strážneho psa. Ponuky vybrané na mieru dostanete súhrnne 1× denne e-mailom. S Premium profilom máte po ruke rovno 5 strážcov a keď sa niečo objaví, informujú vás obratom.


















