
Prenájom bytu 4+kk • 155 m² bez realitkyHintere Dorfstraße 27, , Bavorsko
Hintere Dorfstraße 27, , BavorskoMHD 1 minúta pešo • ParkovaniePopis nehnuteľnosti – 4,5-izbový byt so záhradným podielom, balkónom a dvoma parkovacími miestami
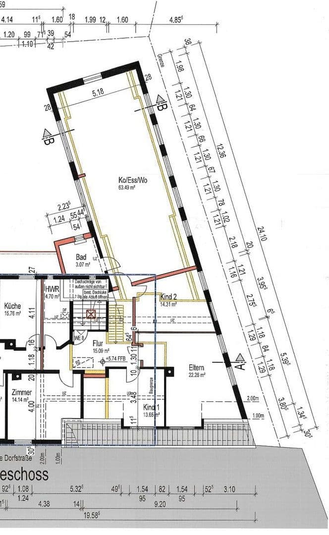
Tento zrekonštruovaný 4,5-izbový byt na podkroví viacrodinového domu zaujme priestranným usporiadaním, vysoko kvalitným vybavením a prirodzenou polohou. S približne 155 m² obytného priestoru ponúka výnimočné možnosti bývania pre náročných nájomcov, rodiny aj pre prácu z domu.
Prehľad vybavenia:
• Takmer nový kuchynský set vrátane moderných elektrospotrebičov (rúra, varič, umývačka riadu, chladnička, odsávač par)
• Priestranný balkón s výhľadom do zelene – ideálny pre slnečné chvíle a uvoľnené večery
• Nádherný záhradný podiel s veľa priestoru na oddych, vhodný aj pre rodiny s deťmi alebo záhradkárov
• 4,5 dobre usporiadaných izieb – ideálne ako obývacia jedáleň, dve spálne a pracovňa/detská izba
• Suterén pre dodatočné úložné priestory
• Dve parkovacie miesta priamo pri dome pre komfortné parkovanie
• Plánovaná rekonštrukcia fasády vrátane nového náteru – vizuálne zlepšenie v blízkej budúcnosti
• Pokojná poloha hneď vedľa Sulzbach parku
Detaily nájomného:
• Základný nájom: 1290 €
• Prevádzkové náklady (vrátane vykurovania, vody atď.): 300 €
• Celkový nájom (vrátane tepla): 1590 €
Tento byt nielenže ponúka priestranný pocit z bývania, ale aj kvalitné vybavenie s perspektívou vzhľadom na pripravovanú energetickú rekonštrukciu.
Popis lokality – bývanie v Sulzbach am Main, priamo pri parku
Byt sa nachádza v pokojnej a žiadanej oblasti Sulzbach am Main, bezprostredne vedľa Sulzbach parku. Táto adresa kombinuje bývanie v prírode s vynikajúcou infraštruktúrou.
Prehľad výhod lokality:
• Priama poloha pri parku – ideálna pre prechádzky, športové aktivity alebo oddych v prírode
• Centrálna, no tichá obytná ulica bez priejazdového provozu
• Občianska vybavenosť (supermarkety, pekárne, lekárne) dosiahnuteľná v priebehu niekoľkých minút
• Vzdelávacie zariadenia ako školy a materské školy v tesnej blízkosti
• Výborné spojenie s verejnou dopravou (autobusové zastávky dostupné pešo)
• Rýchly prístup k ceste B469 – výborné spojenie do Aschaffenburgu a celého okresu Miltenberg
Záver:
Tento atraktívny byt zaujme svojou veľkosťou, vybavením aj polohou. Je ideálny pre tých, ktorí túžia po priestrannom a pokojnom bývaní bez kompromisov v oblasti infraštruktúry a mobility. Sťahujte sa a cíťte sa ako doma!
V prípade záujmu o byt nás, prosím, kontaktujte spolu s vyplneným formulárom o nájomcu z portálov Immoscout alebo Immowelt.
Parametre nehnuteľnosti
| Vek | Nad 50 rokov |
|---|---|
| Stav | Po rekonštrukcii |
| Poschodie | 2. poschodie z 3 |
| PENB | C - Hospodárne |
| Cena za jednotku | 8 € / m2 |
| Dostupné od | 1. 2. 2026 |
|---|---|
| Dispozícia | 4+kk |
| Číslo inzerátu | 993624 |
| Úžitková plocha | 155 m² |
Čo táto nehnuteľnosť ponúka?
| Balkón | |
| Parkovanie |
| Pivnica | |
| MHD 1 minúta pešo |
V okolí nehnuteľnosti nájdete
Stále hľadáte to pravé?
Nastavte si strážneho psa. Ponuky vybrané na mieru dostanete súhrnne 1× denne e-mailom. S Premium profilom máte po ruke rovno 5 strážcov a keď sa niečo objaví, informujú vás obratom.














