Predaj domu 4+1 • 182 m² bez realitky, Porýnie-Falcko
, Porýnie-FalckoMHD 2 minúty pešo • Parkovanie • GarážRodinný dom postavený v roku 2017 masívnou stavbou bol navrhnutý ako úplne prízemný koncept bývania a ponúka približne 182 m² obytných priestorov s prehľadnou, funkčnou dispozíciou.
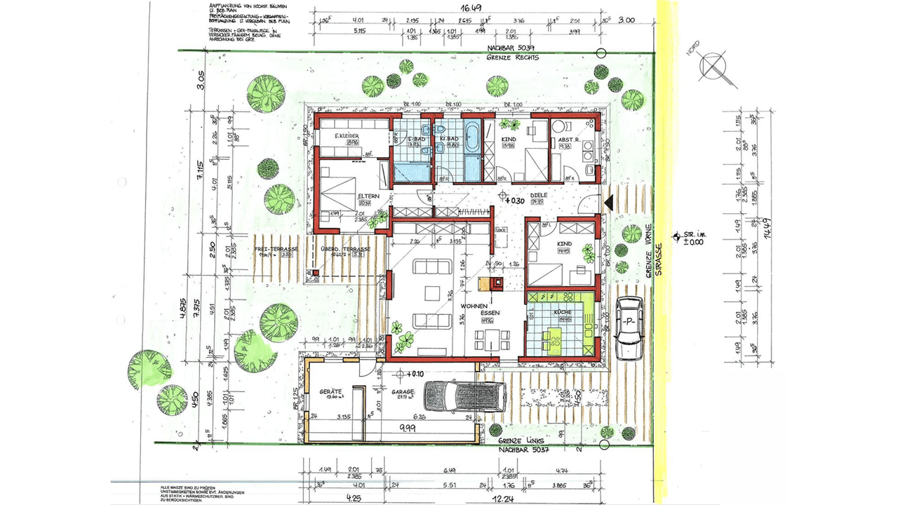
Dispozícia pôdorysu kladie osobitný dôraz na každodennú použiteľnosť. Priestranné chodby nie sú realizované len ako priestory na prechod, ale disponujú zámerne integrovanými výklenkami s dostatočnou hĺbkou pre plnohodnotné skrine. Jeden výklenok sa nachádza v priestore kúpeľne pre hostí oproti detskej izbe, ďalší v prechode do rodičovskej časti. Tým vznikajú dodatočné úložné zóny, bez toho aby sa narušil otvorený a moderný dojem priestoru.
Izby sú takmer štvorcové, čo umožňuje flexibilné zariadenie bez straty miesta. Posteľ, skriňa a ďalší nábytok je možné usporiadať zmysluplne bez kompromisov na priestore.
Priestranná obývacia a jedálenská časť tvorí stred domu. V architektonickom vrchole je už inštalovaný komín, takže je možné doplniť kachľový kachľový sporák bez väčších stavebných zásahov.
Viaceré oknové prvky sú dvojkrídlové a je možné ich otvoriť naplno. Široké okná v detských izbách ako aj v kuchyni zabezpečujú dostatok denného svetla.
Pôvodne mierne šikmé pozemky boli odborne vyrovnané a pozdĺž celej dĺžky ohradené L-kameňovými prvkami. Tým vznikol takmer úplne rovný a dobre využiteľný záhradný priestor.
Nehnuteľnosť sa nachádza v obytnom areáli v obci Konken, PSČ 66871, v okrese Kusel.
Konken ponúka tiché, rodinne prívetivé prostredie s dobrou dostupnosťou do okolitých miest. Nákupné možnosti, materské školy aj zariadenia každodenných potrieb sú v regióne dostupné.
Okresné mesto Kusel je vzdialené len niekoľko minút jazdy. Nachádzajú sa tam stredné školy, špecializovaní lekári a aj Westpfalz-Klinikum Kusel, čím je zabezpečené komplexné školské a lekárske pokrytie.
Dom sa nachádza v novšej zástavbe. Prípojné práce sú z veľkej časti dokončené. Finálna úprava povrchovej úpravy ulice (vrchná vrstva aj chodníky) ešte zostáva. Dátum dokončenia stanovuje obec; konkrétne ponuky na výstavbu zatiaľ nie sú k dispozícii.
Lokalita spája pokojné bývanie s blízkosťou okresného centra a spoľahlivou infraštruktúrou.
• Masívna stavba s izolovanou murivou konštrukciou
• Sústava diaľkového kúrenia
• Podlahové kúrenie vo všetkých miestnostiach
• Elektrické rolietové žalúzie na všetkých oknách
• Dvojkrídlové oknové prvky bez pevného stredového priečku
• Integrované, rolovacie vétruodolné rolety
• Prechádzkymi šatník so zásuvnými oknom
• Pripojenie komína v obývacej časti (možnosť kachľového kachľového sporáka)
• Premyslené úložné výklenky v chodbe
• Kvalitné natiahnuté stropy v kuchyni, rodičovskej kúpeľni aj kúpeľni pre hostí
• Integrované zabudované svietidlá s osvetlením podobným dennému svetlu
• Zabudovaná kuchyňa značky Nobilia zahrnutá v kúpnej cene
• Pripojenie vody pre side-by-side chladničku
• LAN a SAT pripojenia vo všetkých obytných miestnostiach
• Strešná konštrukcia z konštrukčného masívneho dreva
• Pozemok kompletne oplotený
• Pozemok odborne zabezpečený L-kameňovými prvkami
• Strešné plochy vhodné pre fotovoltaiku
Nehnuteľnosť sa nachádza v udržiavanom stave zodpovedajúcom roku 2017. Bežné optické známky používania sú prítomné.
Dom je momentálne prenajímaný americkým štátnym príslušníkom.
Prehliadky prebiehajú výlučne po predchádzajúcej dohode. V zmysle rešpektovania existujúceho nájomného vzťahu Vás žiadame o pochopenie, že budú zohľadnení iba vážni záujemcovia o kúpu.
Všetky údaje vychádzajú z dostupných podkladov a informácií. Zmeny a predčasný predaj si vyhradzujeme právo.
Parametre nehnuteľnosti
| Vek | Nad 50 rokov |
|---|---|
| Dispozícia | 4+1 |
| PENB | C - Hospodárne |
| Plocha pozemku | 802 m² |
| Cena za jednotku | 3 709 € / m2 |
| Stav | Veľmi dobrý |
|---|---|
| Číslo inzerátu | 993572 |
| Úžitková plocha | 182 m² |
| Celkové poschodia | 1 |
Čo táto nehnuteľnosť ponúka?
| Bezbariérový prístup | |
| Parkovanie | |
| Terasa |
| Garáž | |
| MHD 2 minúty pešo |
V okolí nehnuteľnosti nájdete
Stále hľadáte to pravé?
Nastavte si strážneho psa. Ponuky vybrané na mieru dostanete súhrnne 1× denne e-mailom. S Premium profilom máte po ruke rovno 5 strážcov a keď sa niečo objaví, informujú vás obratom.


















