
Prenájom bytu 3+1 • 83 m² bez realitkySt.-Moritz-Str. 2, , Bavorsko
St.-Moritz-Str. 2, , BavorskoMHD 3 minúty pešo • ParkovanieNasťahujte sa a užívajte si pohodlie! Vitajte doma!
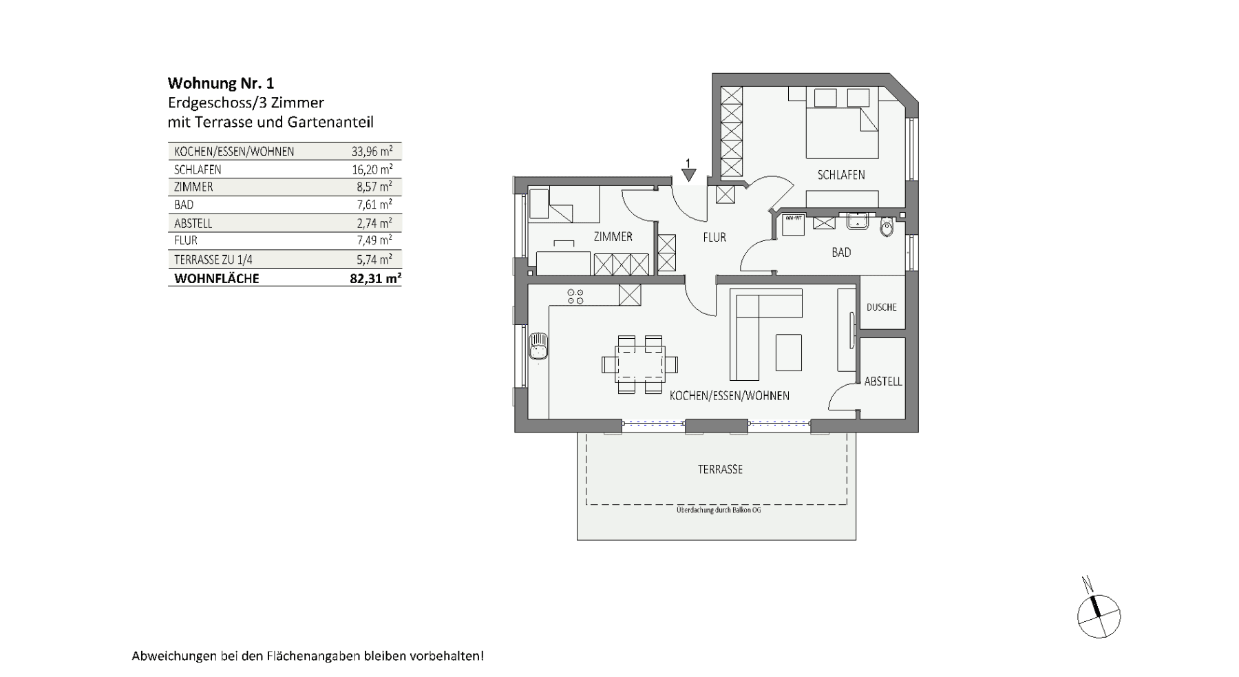
Byt v prízemí sa vyznačuje vysoko nadštandardným interiérovým vybavením. Do apartmánu patria tri pekné izby a prestrešená južná terasa so záhradnou časťou. Otvorený obývací, kuchynský a jedálenský priestor vás pozýva na spoločné varenie a oddych. Na krásnej južnej terase môžete nechávať deň pomaly odplávať. V záhradnej časti nechýbajú žiadne detaily – či už ide o pieskovisko alebo vyvýšený záhon, tu si všetko nájde svoje miesto.
V úložnej miestnosti si môžete pohodlne uskladniť svoje zásoby.
Rovnako praktická je aj pivnica, ktorá ponúka priestor na uskladnenie vašich vecí.
Pohodlne zaparkovať sa môžete v carporte (nájom: 40 €) ako aj na vonkajšom parkovacom mieste (nájom: 20 €).
Byt je ideálny pre jednotlivcov alebo páry, ktoré si cenia moderné bývanie v pokojnej lokalite s dobrou dopravnou dostupnosťou.
Nehnuteľnosť sa nachádza v peknej časti Buchloe-Honsolgen. Máte všetky výhody bývania medzi zeleňou, ale zároveň ste dobre prepojení s centrom Buchloe a s diaľnicou A96. Nájazd na diaľnicu A96/Buchloe Ost je dostupný približne za 5 minút. Ideálne pre dochádzajúcich do Mníchova alebo Augsburgu.
Prepojenie:
- Mníchov: cca 45 minút
- Augsburg: cca 40 minút
- Füssen: cca 1 hodina
- Landsberg am Lech: cca 10 minút
- Türkheim: cca 14 minút
Miestna stanica v centre Buchloe zohráva kľúčovú úlohu v regionálnej i nadregionálnej železničnej doprave, s priamymi spojeniami do Mníchova, Augsburgu, Lindau a do Allgäu. Letisko Memmingen je dostupné približne 30 minút autom.
V Buchloe nájdete:
Reštaurácie, kaviarne, zmrzlináre, supermarkety, obchody s oblečením, čerpacie stanice, autoservis, pekáreň, lekárne, ihrisko, materské školy, základnú školu, gymnázium, reálnu školu, strednú školu, vonkajší bazén, krytý bazén, lekárov, fyzioterapiu, zdravotnícky obchod, nemocnicu, športové kluby, hasičov a oveľa viac.
Prehľad vybavenia:
- Masívna stavba
- Podlahové kúrenie
- Kúrenie: vzduch-voda tepelné čerpadlo
- Zmäkčovňa vody
- Interkom so systémom kamerového dohľadu
- Ventilačný systém so spätnou tepelnou rekuperáciou (decentrálny)
- Drevené izolačné okná z larixového dreva s trojsklom
- Veľká prestrešená terasa (južná strana)
- Vnútorné okenné parapety z prírodného kameňa
- Elektrické žalúzie a rolety
- Dizajnová vinylová podlaha
- Krásne biele vnútorné dvere
- Dverové prvky s priehľadným skleným oknom až k stropu (obývacia izba a kúpeľňa)
- Vchodové dvere do bytu: zvuková ochrana triedy 3
- SAT anténa
- Kúpeľňa s oknom a prípojkou na práčku
- Úložná miestnosť priamo v byte
- K bytu patrí aj pivnica
- Miestnosť pre bicykle pre všetkých obyvateľov domu
Máte záujem?
Prosím, pošlite nám písomnú správu s vašimi kontaktnými údajmi a niekoľkými krátkymi informáciami o sebe.
Pri podávaní žiadosti o prenájom bytu vás prosíme, aby ste mali pripravené nasledujúce dokumenty (v kópii):
Vyplnený prenájomný dotazník
Kópia občianskeho preukazu (predná a zadná strana)
Aktuálna výpis zo schránky (Schufa) – nie staršia ako 3 mesiace
Mzdové doklady za posledné 3 mesiace alebo iný preukaz príjmu
Poznámky:
- Chov domácich zvierat v tejto nehnuteľnosti bohužiaľ nie je povolený.
- Nájomná zmluva bude v podobe stupňovacej nájomnej zmluvy.
- Obrázky zodpovedajú predstavám ilustrátora. Skutočné prevedenie sa môže líšiť od zobrazenia. Nábytok slúži len na vizualizáciu a nie je zahrnutý v nájomnom.
Dörfler Bauengineering GmbH
Projektový manažment – Plánovanie – Stavebníctvo
Senderstraße 15
86854 Amberg
08241/9600236
Parametre nehnuteľnosti
| Vek | Nad 50 rokov |
|---|---|
| Stav | Veľmi dobrý |
| Číslo inzerátu | 993245 |
| Úžitková plocha | 83 m² |
| Dostupné od | 1. 4. 2026 |
|---|---|
| Dispozícia | 3+1 |
| PENB | A - Mimoriadne úsporné |
| Cena za jednotku | 14 € / m2 |
Čo táto nehnuteľnosť ponúka?
| Parkovanie |
| MHD 3 minúty pešo |
V okolí nehnuteľnosti nájdete
Stále hľadáte to pravé?
Nastavte si strážneho psa. Ponuky vybrané na mieru dostanete súhrnne 1× denne e-mailom. S Premium profilom máte po ruke rovno 5 strážcov a keď sa niečo objaví, informujú vás obratom.














