Prenájom nebytového priestoru • 450 m² bez realitkyMeißener Dorfstraße 35, , Severné Porýnie - Westfálsko
Meißener Dorfstraße 35, , Severné Porýnie - WestfálskoMHD 1 minúta pešoNa prenájom je k dispozícii viacúčelový komerčný objekt v atraktívnej lokalite Minden.
Nehnuteľnosť je ideálna pre výrobný priemysel, skladovanie, remeselné podniky alebo ako logistické centrum.
Nehnuteľnosť sa nachádza na adrese Meißener Dorfstraße 35 v dobre dostupnej obchodnej zóne na okraji Minden. Objekt leží priamo na križovatke ciest B 65 a B 482, čo zaručuje vynikajúcu dostupnosť do Minden (3 minúty), Porta Westfalica (8 minút), Bad Oeynhausen (18 minút) a Bückeburg (10 minút). Vďaka blízkosti diaľnic A2 (10 minút) a A30 (14 minút) máte tu taktiež rýchle napojenie na regionálnu dopravnú sieť.
Zabezpečený je aj prístup k verejnej doprave, čo umožňuje pohodlné cestovanie zamestnancom aj zákazníkom.
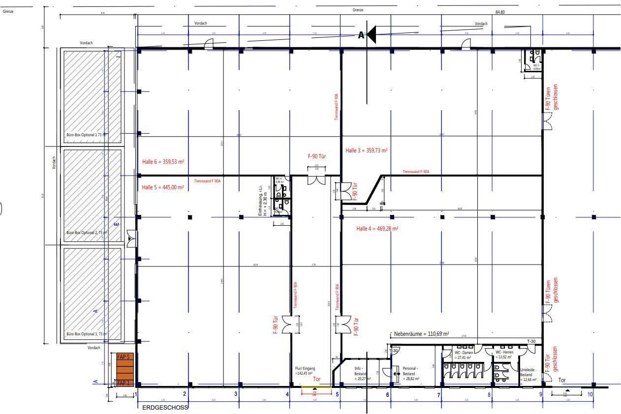
Momentálne sú k prenájmu k dispozícii štyri halové priestory s nasledujúcim vybavením:
- 370–500 m²
- sanitárne zariadenia
- kancelárske priestory
- sekčné vrata
- dostatočné parkovacie miesta
Pri ďalších otázkach a záujme o termín obhliadky nás neváhajte kontaktovať na telefónnom čísle: 015735440988
Parametre nehnuteľnosti
| Stav | Dobrý |
|---|---|
| Plocha nebytového priestoru | 450 m² |
| Číslo inzerátu | 993017 |
|---|---|
| Cena za jednotku | 0 € / m2 |
Čo táto nehnuteľnosť ponúka?
| MHD 1 minúta pešo |
V okolí nehnuteľnosti nájdete
Stále hľadáte to pravé?
Nastavte si strážneho psa. Ponuky vybrané na mieru dostanete súhrnne 1× denne e-mailom. S Premium profilom máte po ruke rovno 5 strážcov a keď sa niečo objaví, informujú vás obratom.





