
Prenájom bytu • 16 m² bez realitkyAchtungstraße 9 Heilbronn Heilbronn Baden-Württemberg 74072
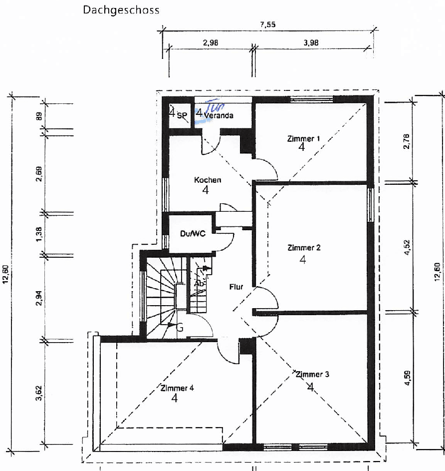
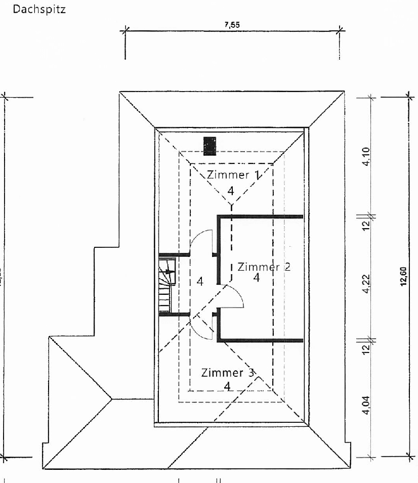
Achtungstraße 9 Heilbronn Heilbronn Baden-Württemberg 74072MHD 6minút pešo • VybavenéV upratovanom viacrodinnom dome sa ponúka celkovo 5 atraktívnych izieb do spoločného prenájmu. Keďže je obytná jednotka momentálne prázdna, je tu ideálna príležitosť pre založenie novej spoločnej domácnosti. Či už ako jednotlivec alebo priamo ako skupina priateľov – tu si môžete od začiatku spoločne vytvoriť svoj životný štýl. Byt na najvyššom poschodí bol čerstvo zrekonštruovaný a rozprestiera sa úsporne na dvoch podlažiach (štýl menzónety).
- Izby: 5 izieb s plochou približne 15 až 18 m².
- Rozloženie:
Spodné podlažie: 3 izby, vstavaná kuchyňa, spoločenská miestnosť, balkón a kúpeľňa.
Horné podlažie: 2 izby a samostatná, druhá kúpeľňa.
- Špeciálna výbava: Obe izby na hornom poschodí sú vybavené vlastnou klimatizáciou – ideálne pre horúce letné dni.
Náklady a podmienky:
Izba 2: 470 € bez zahrnutých nákladov
Izba 3: 470 € bez zahrnutých nákladov
Izba 4: 450 € bez zahrnutých nákladov
Izba 1 (horné podlažie): 450 € bez zahrnutých nákladov
Izba 2 (horné podlažie): 450 € bez zahrnutých nákladov
Paušál na poplatky: 100,00 €
V paušále sú zahrnuté: elektrina, kúrenie, voda/kanalizácia, poplatky za odvoz odpadu, WLAN (internet) a domovnícky servis. Ďalšie mesačné náklady na základné služby nevznikajú.
Zaujala vás ponuka? Neváhajte nás kontaktovať pre dohodnutie termínu na mieste.
WG sa nachádza vo mimoriadne praktickej a centrálnej lokalite v Heilbronne (PSČ 74072). Okolie spája výhody mestského života s optimálnym napojením na vzdelávacie inštitúcie a verejnú dopravu.
1. Prvotriedne spojenie a mobilita:
Hlavná stanica: Hlavná stanica v Heilbronne je dostupná pešo za menej ako 10 minút. Odtiaľ máte spojenie s regionálnou a diaľkovou dopravou, ako aj so všetkými linkami S-Bahn v rámci KVV/HNV.
Verejná doprava: Niekoľko autobusových zastávok sa nachádza v bezprostrednej blízkosti, takže aj bez auta ste v meste veľmi mobilní.
2. Vzdelávanie a blízkosť kampusu:
Univerzita Heilbronn a vzdelávací kampus: Kampus Sontheim aj moderný vzdelávací kampus (Europaplatz) sú pohodlne dostupné na bicykli (cca 10 minút) alebo verejnou dopravou. Táto lokalita tak predstavuje ideálne miesto pre študentov HHN, DHBW alebo TU Mníchov.
3. Obchody a každodenný život:
Všetko potrebné pre každodenné potreby je v pešej vzdialenosti: supermarkety (ako Lidl, Kaufland alebo REWE), pekárne, lekárne a drogerie sa nachádzajú v priamom okolí. Samotné centrum Heilbronnu s nákupným centrom a pešou zónou je vzdialené len krátku prechádzku.
4. Voľný čas a kvalita života:
Neckarmeile: Oblúbená ulica podél rieky Neckar, s množstvom kaviarní, barov a reštaurácií, je ľahko dostupná a láka na príjemné večery.
Zeleň: V blízkosti sa nachádza park Wertwiesen alebo breh rieky Neckar, ktoré ponúkajú ideálne možnosti na beh, prechádzky alebo letné pikniky v prírode.
Náklady a podmienky:
Izba 2: 470 € bez zahrnutých nákladov
Izba 3: už prenajatá
Izba 4: 450 € bez zahrnutých nákladov
Izba 1 (horné podlažie): 450 € bez zahrnutých nákladov
Izba 2 (horné podlažie): 450 € bez zahrnutých nákladov
Paušál na poplatky: 100,00 €
V paušále sú zahrnuté: elektrina, kúrenie, voda/kanalizácia, poplatky za odvoz odpadu, WLAN (internet) a domovnícky servis. Ďalšie mesačné náklady na základné služby nevznikajú.
Parametre nehnuteľnosti
| Dostupné od | 5. 3. 2026 |
|---|---|
| Poschodie | 3. poschodie |
| Úžitková plocha | 16 m² |
| Vybavené | Vybavené |
|---|---|
| Číslo inzerátu | 992854 |
| Cena za jednotku | 28 € / m2 |
Čo táto nehnuteľnosť ponúka?
| Balkón |
| MHD 6 minút pešo |
V okolí nehnuteľnosti nájdete
Stále hľadáte to pravé?
Nastavte si strážneho psa. Ponuky vybrané na mieru dostanete súhrnne 1× denne e-mailom. S Premium profilom máte po ruke rovno 5 strážcov a keď sa niečo objaví, informujú vás obratom.












