Predaj domu • 330 m² bez realitkyHusitská, Šumperk - Šumperk, Olomoucký kraj
Husitská, Šumperk - Šumperk, Olomoucký krajParkovanie • Garáž • Pivnica 142 m² • Terasa 18 m²Prvorepubliková vila s duší a výnosem v srdci Šumperka – Bráně Jeseníků
Hledáte investiční příležitost, která se sama zaplatí, nebo rodinné sídlo, kde se historie potkává s moderním životem? Tato vila z konce 30. let v centru Šumperka nabízí obojí.
Dům byl postaven těsně před válkou s německou precizností. Na první pohled vás zaujme svou architekturou s typickým arkýřem a prostornou terasou orientovanou do klidu. Je to místo, kde se generace naší rodiny cítily doma, a nyní čeká na novou kapitolu.
Dispozice pro život i podnikání
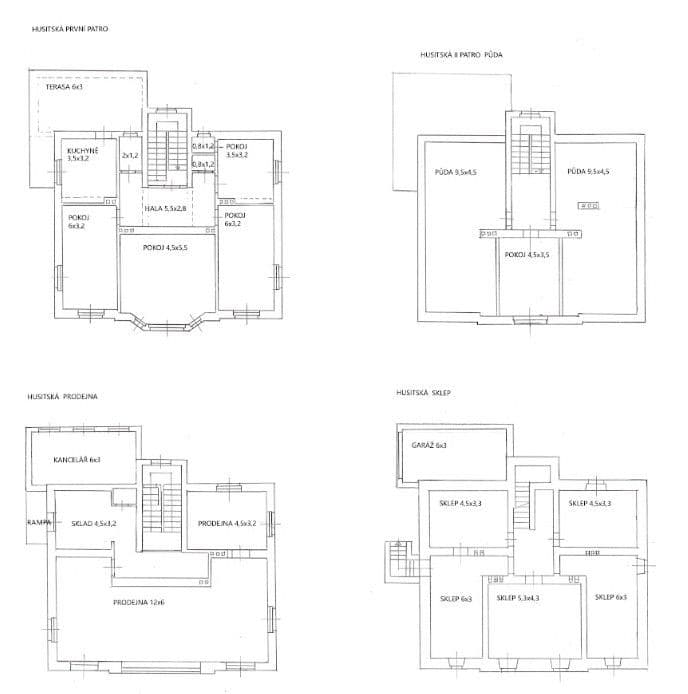
Objekt je rozdělen tak, aby poskytoval maximální variabilitu:
Suterén & Zázemí: Celkem cca 142 m². Dům je celopodsklepený (5 velkých sklepních místností). K dispozici jsou dvě garáže – jedna v domě (25 m²) a druhá externí na pozemku (35 m²).
Přízemí (Komerční prostor): Zavedená prodejna se zázemím, skladem i nákladovou rampou (celkem cca 119 m²). Aktuálně má spolehlivého nájemce, což vám zajistí okamžitý výnos od prvního dne.
1. patro (Bydlení): Velkorysý byt 4+1 o rozloze cca 109 m² plus terasa (18m²). Pokoje jsou světlé, prostorné a díky dispozici lze patro rozdělit i na dvě menší bytové jednotky.
2. patro & Půda: Zde se nachází jeden obytný pokoj a dva rozsáhlé půdní prostory. Celkem cca 102 m². Ideální prostor pro vybudování podkrovního bytu.
Dům je napojen na všechny inženýrské sítě - elektřinu, plyn, obecní vodovod i kanalizaci. Vytápění zajišťuje nový plynový (kondenzační) kotel.
K dispozici jsou 2 garáže (jedna na kraji pozemku s přístupem z ulice - možné pronajímat.
Lokalita: Město na dlani, hory za zády
Šumperk, přezdívaný "Malá Vídeň", nabízí špičkovou kvalitu života.
Dům stojí na strategickém místě:
Příroda: Jiráskovy sady jsou doslova přes ulici.
Centrum: Hlavní třída s kavárnami a obchody je vzdálena pouhé 3 minuty chůze (230 m).
Dostupnost: Vlakové nádraží je 11 minut chůze, přičemž v Olomouci jste vlakem za 53 minut.
Proč investovat právě zde?
1. Variabilita: Můžete zde kombinovat vlastní bydlení s podnikáním nebo dům přebudovat na bytový dům se 3–4 jednotkami.
2. Pozemek: Zahrada o celkové výměře 574 m² v centru města je vzácností.
3. Potenciál: Půdní vestavba výrazně zvýší užitnou plochu a hodnotu
nemovitosti.
Přijďte se nadechnout atmosféry domu, který v sobě spojuje solidnost první republiky a možnosti 21. století.
Parametre nehnuteľnosti
| Dostupné od | 19. 2. 2026 |
|---|---|
| Konštrukcia budovy | Tehla |
| Vybavené | Nevybavené |
| Vlastníctvo | Osobné |
| Poloha domu | Samostatný |
| Plocha pozemku | 574 m² |
| Stav | Dobrý |
|---|---|
| Dispozícia | Ostatné |
| Číslo inzerátu | 992787 |
| PENB | E - Nehospodárne |
| Úžitková plocha | 330 m² |
| Cena za jednotku | 37 787,88 CZK / m2 |
Čo táto nehnuteľnosť ponúka?
| Pivnica 142 m² | |
| Parkovanie |
| Garáž | |
| Terasa 18 m² |
V okolí nehnuteľnosti nájdete
Stále hľadáte to pravé?
Nastavte si strážneho psa. Ponuky vybrané na mieru dostanete súhrnne 1× denne e-mailom. S Premium profilom máte po ruke rovno 5 strážcov a keď sa niečo objaví, informujú vás obratom.











