Predaj domu 6+1 • 175 m² bez realitkyIm Wiesengrund 17, , Šlezvicko-Holštajnsko
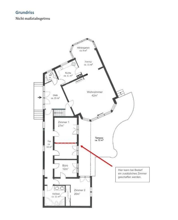
Im Wiesengrund 17, , Šlezvicko-HolštajnskoMHD 5minút pešo • GarážTento bungalov, postavený v roku 1973 masívnou konštrukciou, sa nachádza na približne 880 m² veľkom juhozápadnom pozemku v pokojnej vedľajšej ulici a zaujme svojím veľmi udržiavaným a neustále modernizovaným stavom. Celková využiteľná plocha budovy je 303 m². Na obývateľnej ploche približne 175 m² máte k dispozícii päť (rozšíriteľných na šesť) priestranných izieb, ktoré sú ideálne pre rodinu.
Oddelením prvej spálne vzniká možnosť vytvoriť ďalší priestor v spálňovom bloku. Z príťažlivého vstupného priestoru, ktorý je spojený s návštevným WC, vstúpite do obývacej izby s prístupom na čiastočne prekrytú juhozápadnú terasu. Tmavé drevené trámy, vstavané svietidlá (downlights) a kachlový kachľový krb s elegantnými ozdobami dodávajú tomuto priestoru jeho osobitý šarm. Radiátory v obývacejsko-jedálenskom priestore sú zapustené do podlahy. Prelomenie spája obývačku s jedálňou, ku ktorej sa pripája masívne postavená zimná záhrada – obe miestnosti sa vďaka podlahovým oknám s bočnými lamelami vyznačujú mimoriadnou svetlosťou. Kvalitná zabudovaná kuchyňa SieMatic vo vidieckom štýle je vybavená všetkými technickými zariadeniami od spoločností Siemens a Neff a ponúka dostatok priestoru na spoločné varenie celej rodiny.
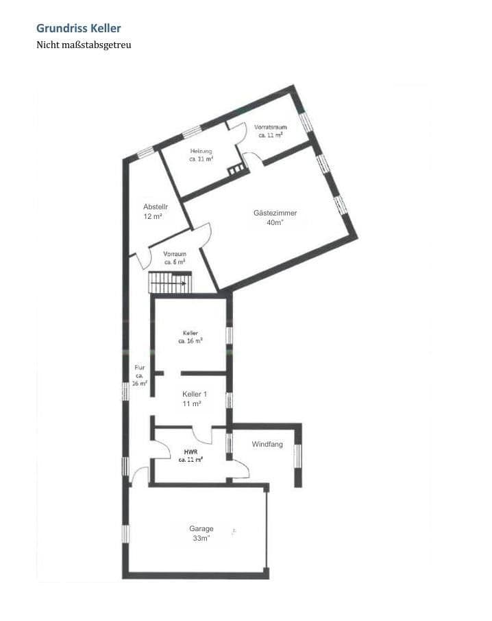
Spálňový blok je oddelený samostatným priechodom, čo zabezpečuje príjemné súkromie. Všetky izby – jedna z nich so súkromnou kúpeľňou en suite – majú priamy prístup na veľkú terasu. Dostatočné úložné priestory sa nachádzajú v obloženom pivničnom podlaží; jedna z miestností, obložená laminátom, môže byť využitá ako obytný priestor, kancelária alebo izba pre hostí. Celkovú ponuku dopĺňa jedno priestranné garážové miesto.
Posledné modernizačné práce boli vykonané v rokoch 2017 až 2021. Patrí sem čistenie strechy vrátane povlaku, mediata strešná žľabal, izolácia podkrovia, maliarske práce na murovaní a prízemných priestoroch a pod. Staré olejové kúrenie bolo v roku 2017 vymenené za novú vykurovaciu inštaláciu, pričom dom je odvtedy napájaný cez miestnu tepláreň Energetickej družiny Steinburg eG.
Informácie o dodávateľovi energií nájdete na tomto odkaze: energiegenossenschaft-steinburg.de
Mollhagen patrí k obci Steinburg, ktorá pozostáva z troch osád, pričom Mollhagen tvorí jadro obce. Dobře dostupná dedina sa nachádza severovýchodne od Hamburgu a južne od Bad Oldesloe. Táto pokojná obec je najmä známa svojou krásnou krajinou. Potoky, lúky a polia, ako aj „dlažbená ulica so letnou cestou“ a „dánsky most“ pozývajú na prechádzky a cyklistické výlety.
Na športové aktivity ponúka TSV Mollhagen širokú škálu možností, ako sú badminton, tenis, volejbal, stolný tenis, judo, joga, zumba a gymnastika. Navyše, v blízkej dedine sa nachádza SV Eichede, ktorý je známy najmä svojím úspešným futbalovým oddelením a ponúka aj ďalšie športy, ako sú hádzaná a stolný tenis. Pre jazdeckých nadšencov poskytuje Jazdecký klub Mollhagen e. V. širokú ponuku.
Mollhagen disponuje vynikajúcou infraštruktúrou pre rodiny: v pár minútach chôdze dosiahnete rôzne lekárske ordinácie, základnú školu a materskú školu (vzdialenosť cca 800 m). Do konca roku 2026 by mal vzniknúť nový supermarket (EDEKA je v rokovaniach). Stredné školy sú pohodlne dostupné školským autobusom. Čítne jazerá a lesy v okolí – medzi nimi Lütjensee, Beimoorwald a Trittauer Wald – ponúkajú množstvo možností na oddych a rekreáciu.
Autobusová linka spája Mollhagen s Ahrensburgom a Bargteheide. Zo Ahrensburgu sa do centra Hamburgu dostanete približne za 20 minút. Blízke diaľnice A1 a A21 poskytujú výborné spojenie, pričom letisko Hamburg je vzdialené približne 45 minút.
Nehnuteľnosť je ponúkaná vrátane podielov družstva a zariadení (kuchyňa, nábytok, mraznička, lampy, Bang & Olufsen TV, orientálne koberce, skrine, záhradný nábytok, markíza, záhradné náradie).
Celková cena môže byť rozdelená nasledovne:
• Kúpna cena nehnuteľnosti (podlieha dane z nehnuteľností)
• Hodnota hnuteľných vecí (nepodlieha dani z nehnuteľností)
Presný zoznam nábytku, záhradného náradia a ich aktuálnej hodnoty môže byť v prípade záujmu o kúpu dohodnutý spoločne a uvedený samostatne. Hodnota podielov družstva a zariadení predstavuje približne 40 000 €, na ktoré sa nevzťahuje daň z nehnuteľností.
Dopyty od maklérov nie sú vítané. Podľa § 7 UWG sú nevyžiadané kontakty od maklérov bez výslovného súhlasu príjemcu zakázané!
Parametre nehnuteľnosti
| Vek | Nad 50 rokov |
|---|---|
| Dispozícia | 6+1 |
| PENB | G - Mimoriadne nehospodárne |
| Plocha pozemku | 878 m² |
| Cena za jednotku | 2 846 € / m2 |
| Stav | Po rekonštrukcii |
|---|---|
| Číslo inzerátu | 992618 |
| Úžitková plocha | 175 m² |
| Celkové poschodia | 2 |
Čo táto nehnuteľnosť ponúka?
| Balkón | |
| Garáž | |
| Terasa |
| Pivnica | |
| MHD 5 minút pešo |
V okolí nehnuteľnosti nájdete
Stále hľadáte to pravé?
Nastavte si strážneho psa. Ponuky vybrané na mieru dostanete súhrnne 1× denne e-mailom. S Premium profilom máte po ruke rovno 5 strážcov a keď sa niečo objaví, informujú vás obratom.






































