Predaj pozemku • 20000 m² bez realitkyWellerstrasse 18, , Sasko
Wellerstrasse 18, , SaskoMHD 7minút pešoDirekt od vlastníka sa ponúka komerčný pozemok s rozlohou cca 20 000 m², so schváleným územným plánom (B-Plan) a veľmi dobrou dopravnou dostupnosťou v blízkosti letiska Leipzig/Halle a diaľničného uzla.
Pozemok sa nachádza v prostredí s výrazným priemyselným charakterom a je vhodný pre rôzne využitia súvisiace s logistikou, službami alebo ubytovaním.
Platí právoplatný územný plán, ktorý umožňuje rýchlu stavebnú realizáciu. Podľa jeho ustanovení je povolená výstavba s hrubou zastavanou plochou (BGF) až do cca 20 000 m². Koeficient zastavanosti (GRZ) je 0,8. Povolená výška budovy je – v závislosti od konkrétneho návrhu – medzi 13 a 15 metrami.
Podľa § 8 ods. 1 stavebného predpisu využitia pôdy (BauNVO) sú okrem iného povolené nasledujúce využitia:
• Všetky druhy obchodných podnikov, napríklad:
– Sklady a skladovacie priestory
– Obchodné, kancelárske a administratívne budovy
– Verejné prevádzky
– Čerpacie stanice ako aj športové zariadenia
– Hotel a penzión, prípadne iné porovnateľné koncepty ubytovania
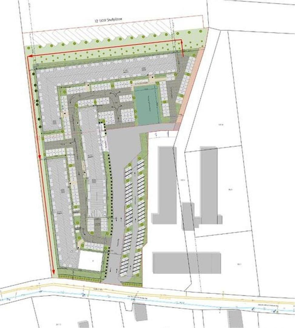
Priložené vizualizácie slúžia výlučne na zobrazenie možných variantov výstavby a nepredstavujú záväzný plán.
Predaj prebieha formou Share Deal. Kúpna cena je 65 €/m².
Pre ďalšie informácie alebo dohodnutie termínu prehliadky sme vám k dispozícii.
Lokalita sa nachádza v zavedenom priemyselnom prostredí s bezprostrednou blízkosťou k medzinárodnému dopravnému letisku (cca 2 km). Dve nadregionálne diaľničné osi sú dostupné už do cca 300 m, pričom je zabezpečené aj spojenie so štátnou cestou. Výborné železničné prepojenie je zabezpečené prostredníctvom blízkeho uzla diaľkovej dopravy s ICE a IC spojmi. Poloha ponúka vysokú možnosť ďalšieho využitia a dlhodobý dopytový potenciál pre hotelové, penziónové, logistické a komerčné využitie.
Pre všetky otázky alebo ďalšie informácie som vám k dispozícii. Môžete ma kontaktovať telefonicky od pondelka do piatku medzi 9:00 a 18:00 hodinou. Ak vám to viac vyhovuje, môžete mi tiež poslať správu cez WhatsApp na číslo 0163-5152057.
Prípadne mi môžete napísať e-mail na adresu hildebrand@gpm.immobilien.
Ak si želáte priamo komunikovať s vlastníkom, napríklad ohľadom rokovaní o kúpnej cene, môžete priamo kontaktovať vlastníka, pána Petra Jugla, na telefónnom čísle 01709848571 alebo prostredníctvom WhatsApp.
Impresum
GPM GmbH
Hafenstraße 12
04416 Markkleeberg
Zastupuje:
Peter Jugl
Zápis v registri:
Zaradené v obchodnom registri.
Registrový súd: Okresný súd v Lipsku (Amtsgericht Leipzig)
Registračné číslo: HRB 21518
Zodpovedný za obsah (podľa § 55 ods. 2 RStV):
Peter Jugl
Parametre nehnuteľnosti
| Číslo inzerátu | 992171 |
|---|---|
| Cena za jednotku | 65 € / m2 |
| Plocha pozemku | 20 000 m² |
|---|
Čo táto nehnuteľnosť ponúka?
| MHD 7 minút pešo |
V okolí nehnuteľnosti nájdete
Stále hľadáte to pravé?
Nastavte si strážneho psa. Ponuky vybrané na mieru dostanete súhrnne 1× denne e-mailom. S Premium profilom máte po ruke rovno 5 strážcov a keď sa niečo objaví, informujú vás obratom.



