Predaj domu 6+1 • 172 m² bez realitky, Bádensko-Wurttembersko
, Bádensko-WurttemberskoMHD 2 minúty pešo • ParkovanieTu predávame novo zrenovovanú polovicu dvojdomu s 2 nádhernými svetlými 3-izbovými bytmi. Tieto byty je možné využívať samostatne aj spojené do jedného veľkého bytu. Sú preto ideálne vhodné pre freelancerov alebo viacgeneračné bývanie.
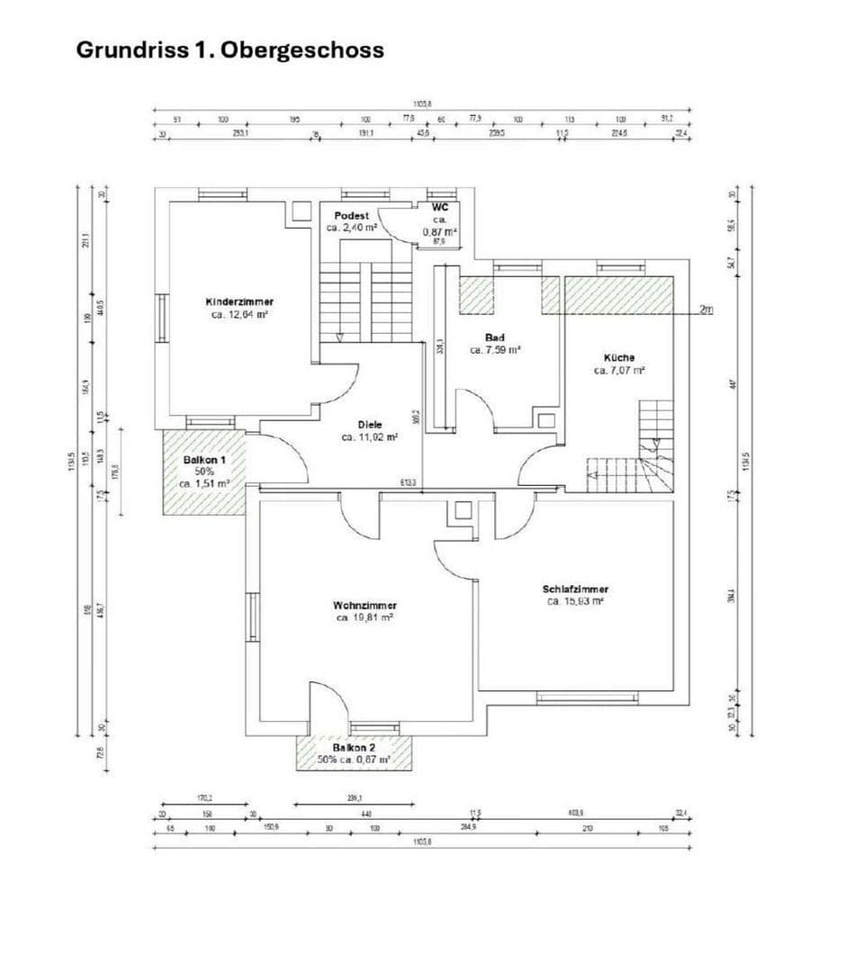
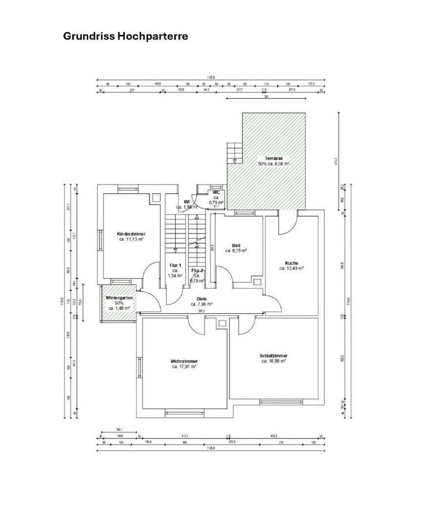
Obidva byty boli nedávno zrenovované a ponúkajú výšku izieb 2,93 metra. Kúpeľne sú vybavené sprchou aj vaňou a novými zrkadlami s W-LAN pripojením. Navyše, na polposchodí sa nachádza aj samostatné návštevné WC. Z horného bytu sa dostanete na podkrovie, ktoré bolo kompletne izolované a zrenovované. Táto úroveň vám ponúka nádherný výhľad do zelene a je deklarovaná ako užitočná plocha.
Všetko bolo novo obrousene a nanesené bielou saténovo matnou farbou až v 8 ťahoch. Do každej izby a na podkrovie bol položený nový laminátový podlahový kryt. Elektrina, voda, radiátory a inštalácie boli medzi rokmi 2007 a 2009 už vymenené a podkrovie bolo v tomto období tiež kompletné prestavané.
Schody z vyvýšeného prízemia do prvého poschodia, ako aj zo 1. poschodia na podkrovie, sú vybavené LED pásikmi.
V suteréne sa nachádza fitness miestnosť, práčovňa, kotolňa a 2 sklepné miestnosti. Celý suterén je obložený dlažbou a disponuje množstvom regálov a skriniek na uskladnenie.
Pozemok má rozlohu 404 m² a je veľmi dobre usporiadaný, takže si tu každý nájde svoje miesto a dokáže načerpať pokoj.
V dvojpodlažnej šopke sa nachádzajú nasledovné priestory:
– Záhradná miestnosť
– Dielňa
– Zakrytá terasa
– Miestnosť pre odpadkové koše
Okrem toho je celý prvý poschodný priestor možné využiť ako sklad.
Krásne udržiavaná záhrada s množstvom nádherných ruží je skutočným klenotom. Všetky odkvapy boli minulý rok vyčistené. Všetko je v poriadnom stave, takže si môžete užívať príjemné chvíle vonku bez toho, aby ste museli pracovať.
Kto hľadá niečo špeciálne, ihneď dostupný dom v Müllheim, určite tu nájde ten správny objekt. Predávame priamo od súkromnej osoby, bez sprostredkovateľa.
Výpočet obytných plôch a energetický preukaz sú k dispozícii.
Byt vo vyvýšenom prízemí má rozlohu 91,57 m².
Byt v hornom poschodí (bez podkrovia) má rozlohu 79,66 m².
Suterén má rozlohu 72,84 m².
Podkrovie má rozlohu 57,19 m².
Celkovo máme približne 172 m² obytných priestorov a viac ako 160 m² užitočných plôch.
Dom sa nachádza v Hebelstrasse v Müllheim. Školy, obchod Aldi, autobusové zastávky a pešia zóna sú dostupné pešo za pár minút.
Dom bol na predaj čerstvo zrenovovaný. Nehnuteľnosť je vysoko kvalitne zariadená a určite v Müllheime ďalšia takáto príležitosť nebude.
Parametre nehnuteľnosti
| Vek | Nad 50 rokov |
|---|---|
| Stav | Po rekonštrukcii |
| Číslo inzerátu | 992159 |
| Úžitková plocha | 172 m² |
| Celkové poschodia | 3 |
| Dostupné od | 20. 2. 2026 |
|---|---|
| Dispozícia | 6+1 |
| PENB | G - Mimoriadne nehospodárne |
| Plocha pozemku | 404 m² |
| Cena za jednotku | 5 785 € / m2 |
Čo táto nehnuteľnosť ponúka?
| Balkón | |
| Parkovanie | |
| Terasa |
| Pivnica | |
| MHD 2 minúty pešo |
V okolí nehnuteľnosti nájdete
Stále hľadáte to pravé?
Nastavte si strážneho psa. Ponuky vybrané na mieru dostanete súhrnne 1× denne e-mailom. S Premium profilom máte po ruke rovno 5 strážcov a keď sa niečo objaví, informujú vás obratom.









































