Predaj domu 5+1 • 133 m² bez realitky, Šlezvicko-Holštajnsko
, Šlezvicko-HolštajnskoMHD 1 minúta pešo • ParkovanieTento moderný rodinný dom sa nachádza v rodinne prívetivom novostavbovom sídle vo Fahrdorfe, obklopený mnohými mladými rodinami s deťmi. Poloha je ideálna pre rodiny – materská škola a základná škola sú pohodlne dostupné pešo.
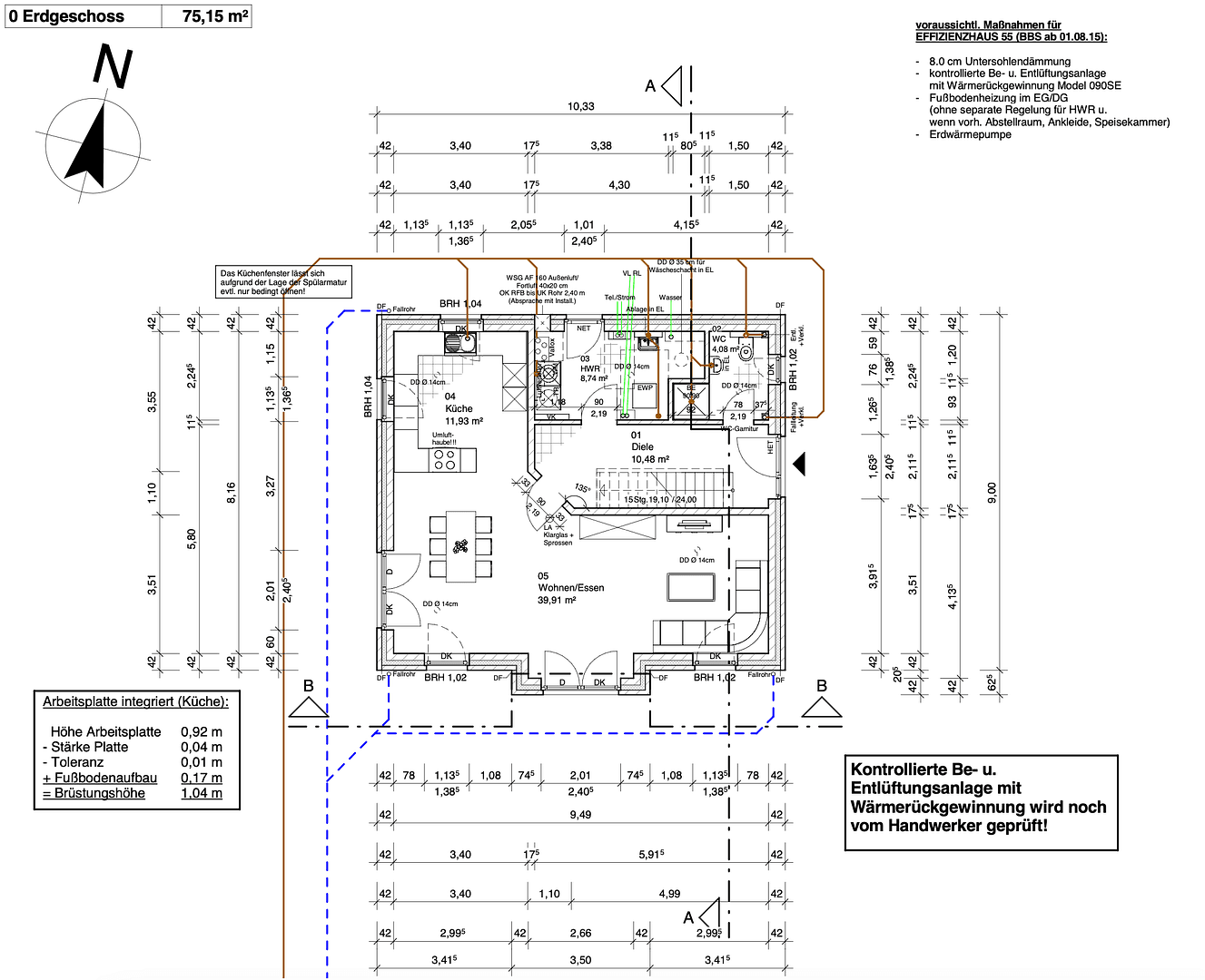
Dom zaujme premysleným usporiadaním priestorov a energeticky efektívnym vybavením: Zemné tepelné čerpadlo zabezpečuje úsporné a udržateľné vykurovanie, zatiaľ čo centrálna ventilácia s rekuperáciou tepla prispieva k príjemnému vnútornému prostrediu a nízkym nákladom na energiu.
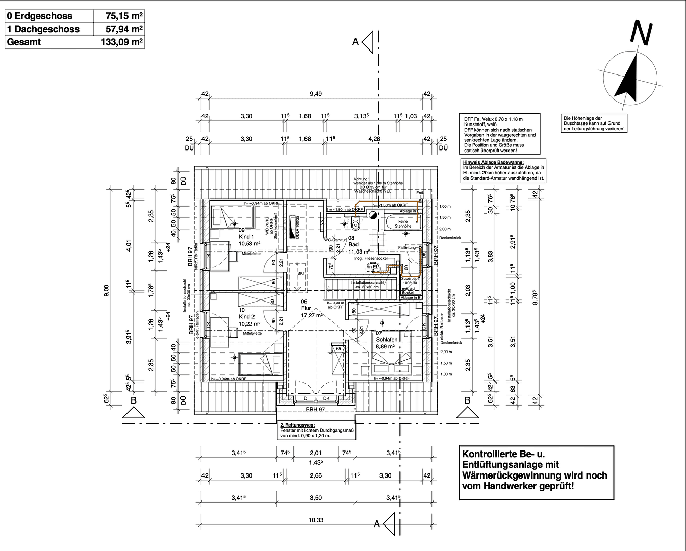
Priestranná kuchyňa ponúka veľa miesta na spoločné varenie a stolovanie. Podkrovie, upravené na úroveň obytného priestoru a prístupné po schodoch, poskytuje dodatočný úložný priestor.
Aj pozemok ponúka veľa objavov: Veľká záhrada láka k oddychu, skleník umožňuje záhradkárčenie alebo slúži v chladných dňoch ako chránená „kaviarnička“ a domáca sauna sľubuje relax. Dvojitý carport s pripojeným domčekom poskytuje dostatok miesta pre vozidlá a ďalší úložný priestor.
Tu vás čaká láskavo udržiavaný a energeticky efektívny domov v pokojnej a rodinne prívetivej lokalite!
Rodinný dom sa nachádza v idylickej obci Fahrdorf, priamo na brehu rieky Schlei a len niekoľko minút od Schleswigu. Fahrdorf sa vyznačuje vysoko kvalitatívnym životom a ponúka dokonalú kombináciu pokojnej obytné lokality a dobrej infraštruktúry.
Okolie láka na prechádzky pozdĺž Schlei, cyklotúry a vodné športové aktivity. Obchody, školy, materské školy a lekári sa nachádzajú v bezprostrednej blízkosti, pričom prístup k ceste B76 umožňuje rýchly dojazd do Schleswigu, Eckernförde a Kielu.
Vďaka prírode blízko domu a vynikajúcej infraštruktúre je tento dom ideálny pre rodiny, milovníkov prírody a každého, kto ocení pokojné bývanie v lokalite s dobrou dopravnou dostupnosťou.
Rodinný dom zaujme vysoko kvalitným a premysleným vybavením. Moderná vybavená kuchyňa s prémiovými spotrebičmi tvorí funkčné centrum domu.
V prízemí zabezpečuje súvislé dlažby elegantnú a nenáročnú starostlivosť o interiér, zatiaľ čo v nadstavaní vybrané dizajnové podlahy dodávajú moderný a útulný pocit. Nástenné dlaždice v kuchynskom priestore a vo WC pre hostí boli precízne a štýlovo položené, čím podčiarkujú vysoké nároky na kvalitu.
Pre moderné bývanie je tiež postarané: V každej miestnosti je k dispozícii sieťové pripojenie – ideálne pre prácu z domu, multimediálne využitie a moderné domáce technológie.
Parametre nehnuteľnosti
| Vek | Nad 50 rokov |
|---|---|
| Stav | Veľmi dobrý |
| Číslo inzerátu | 991989 |
| Úžitková plocha | 133 m² |
| Celkové poschodia | 2 |
| Dostupné od | 23. 2. 2026 |
|---|---|
| Dispozícia | 5+1 |
| PENB | A - Mimoriadne úsporné |
| Plocha pozemku | 820 m² |
| Cena za jednotku | 4 286 € / m2 |
Čo táto nehnuteľnosť ponúka?
| Parkovanie | |
| Terasa |
| MHD 1 minúta pešo |
V okolí nehnuteľnosti nájdete
Stále hľadáte to pravé?
Nastavte si strážneho psa. Ponuky vybrané na mieru dostanete súhrnne 1× denne e-mailom. S Premium profilom máte po ruke rovno 5 strážcov a keď sa niečo objaví, informujú vás obratom.






















