
Predaj domu 5+1 • 122 m² bez realitky, Sársko
, SárskoMHD 3 minúty pešo • Parkovanie • GarážSúkromný predaj – Bez provízie!
Tento bungalow, postavený a udržiavaný v typickom štýle 70. rokov, sa nachádza na konci slepej uličky v žiadanej rezidenčnej lokalite Ormesheim. Celá budova je masívne postavená a okrem garáže je celá podzemná. Všetky obytné priestory sú na jednej úrovni, čo je ideálne pre mladých aj starších.
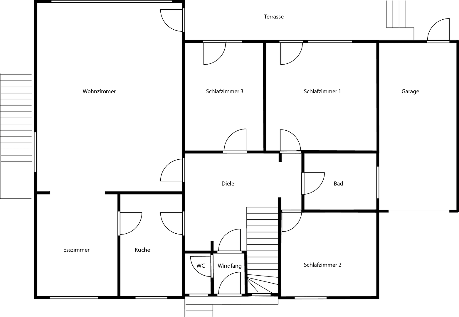
Niekoľko schodov vedie ku vstupným dverám. V predsieni sa nachádza ochranný priestor s prístupom na hostinskú toaletu. Priamo pred vami sa otvára priestranná hala, z ktorej sú dostupné všetky izby.
Doľava, okolo šatníkovej skrinky, vedie cesta do kuchyne a ďalej do približne 50 m² veľkej obývačkovo-jedálenskej miestnosti, kde veľké kvetinové okno poskytuje nádherný výhľad do záhrady.
V prízemí sa nachádzajú 3 spálne a kúpeľňa s oknom a bezbariérovou sprchou.
Obývacia izba a dve zo spální majú prístup na terasu a do záhrady.
V podzemí ponúkajú dve izby a kúpeľňa so sprchou (približne 45-60 m²) ďalšie možnosti, ako dodať domu život. Zvyšná časť podzemnej plochy tvorí práčovňa, kotolňa s priestorom na olej a 3 ďalšie pivnice.
Záhrada je pekne upravená a s trávnikom, ochrannými rastlinami a stromovým porastom je takmer úplne súkromná.
Pripojená garáž je vybavená elektrickými garážovými dverami a má východ na terasu. Na pozemku sa nachádzajú ešte 2 parkovacie miesta pre vozidlá.
Poloha:
V srdci biosférického rezervátu Bliesgau sa nachádza obec Mandelbachtal. Najmä časť Ormesheim ponúka tichú a rodinne orientovanú obytnú oblasť v Saarlande a má dobrú infraštruktúru s nákupnými možnosťami, lekármi a školami.
Doprava do Saarbrückenu je pohodlná autom aj verejnou dopravou. Diaľkové spoje sú v každom smere rýchlo dostupné.
Mnoho možností na voľnočasové aktivity v prírode, ako sú turistické a cyklistické trasy, láka na oddych.
Dom sa nachádza v žiadanej rezidenčnej oblasti nad stredom dediny Ormesheim, na konci slepej uličky. Je vzdialený iba niekoľko minút od centra a zároveň je obklopený rozľahlou prírodou.
Na prvý pohľad:
Obytná plocha: cca 122 m² + cca 45-60 m² v podzemí
Pozemok: 714 m²
Rozloženie priestorov:
Prízemie – obývačkovo-jedálenská miestnosť s východom na terasu a záhradu, kuchyňa s vybavením, hala so šatníkovou skrinkou, 3 spálne, z toho dve s prístupom na terasu a záhradu, kúpeľňa s oknom a bezbariérovou sprchou, predsieň a hostinská toaleta
Podzemie – spálňa/kancelária, spoločenská miestnosť, hala, kúpeľňa so sprchou, 3 pivnice, práčovňa, kotolňa a priestor na olej
Okná: Kvalitné dreveno-hliníkové okná s dvojsklom, vybavené uzamykateľnými parapetmi a elektrickými žalúziami
Vykurovanie: Nízkotemperatúrna olejová kotolňa (r. 1998) – spaľovač (r. 2011)
Priemerná spotreba oleja za 10 rokov cca 2 700 litrov/rok
Garáž/parkovacie miesto: 1 garáž, 2 parkovacie miesta
Špeciálne vybavenie: SAT anténa, pripojenie na optické vlákno aj plyn v dome
Energetický preukaz je v príprave. Predpokladaná energetická efektívnosť F (?)
Táto ponuka je určená výlučne pre vážnych záujemcov o kúpu. Realitným maklérom žiadame, aby sa zdržali dopytov.
Radi poskytneme ďalšie informácie a dohodneme termíny obhliadok.
Parametre nehnuteľnosti
| Vek | Nad 50 rokov |
|---|---|
| Dispozícia | 5+1 |
| Úžitková plocha | 122 m² |
| Celkové poschodia | 1 |
| Stav | Dobrý |
|---|---|
| Číslo inzerátu | 991956 |
| Plocha pozemku | 714 m² |
| Cena za jednotku | 3 131 € / m2 |
Čo táto nehnuteľnosť ponúka?
| Pivnica | |
| Parkovanie | |
| Terasa |
| Garáž | |
| MHD 3 minúty pešo |
V okolí nehnuteľnosti nájdete
Stále hľadáte to pravé?
Nastavte si strážneho psa. Ponuky vybrané na mieru dostanete súhrnne 1× denne e-mailom. S Premium profilom máte po ruke rovno 5 strážcov a keď sa niečo objaví, informujú vás obratom.





























