
Predaj domu 5+kk • 225 m² bez realitkyMünchen Am Hart Bayern 80937
Nehnuteľnosť bola postavená v roku 2008 v masívnej konštrukcii a zaujme vysoko kvalitným, svetlým dizajnom. V prízemí a na prvom poschodí boli položené olejované podlahy z masívneho dreva, zatiaľ čo kúpeľne, kuchyňa a chodby sú vybavené elegantnými bridlicovými podlahami.
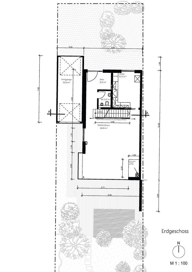
Priestranná obývacia/jedálenská izba (cca 45 m²) ohromuje 9 m širokým skleneným frontom, výškou stropu 2,50 m a juhozápadnou orientáciou – ideálna pre slnečné hodiny. Podlaha z merbau parketu a moderný, otvorený krb vytvárajú príjemnú a štýlovú atmosféru bývania. 3 m široké sklenené posuvné dvere vedú na 30 m² veľkú drevenú terasu s integrovaným rybníkom a prilehlou južnou záhradou. Elektricky poháňaná Markilux markíza zabezpečuje v prípade potreby príjemné tieňovanie.
V prízemí sa zároveň nachádza hosťovské WC s pisuarom a šatník. Svetlá, vysoko kvalitná Plana kuchyňa ponúka cez okenné otvory od podlahy až po strop priamy prístup do predzáhrady – praktické pre každodenný život, napríklad pri vykladávaní nákupov.
Ďalšie poschodia sú dostupné pohodlnými, priamo viditeľnými betónovými schodiskami. Zasklené schodiská poskytujú množstvo denného svetla a otvorený pocit priestoru.
V suteréne sa nachádza približne 35 m² veľká hobby miestnosť s denným svetlom, parketovou podlahou, podlahovým kúrením a opäť s výškou 2,50 m – plnohodnotný obytný priestor. Suterén je doplnený priestrannou práčovňou s podlahovým kúrením a zdvíhacou pumpou, ako aj dvoma ďalšími sklepmi s hojným úložným priestorom.
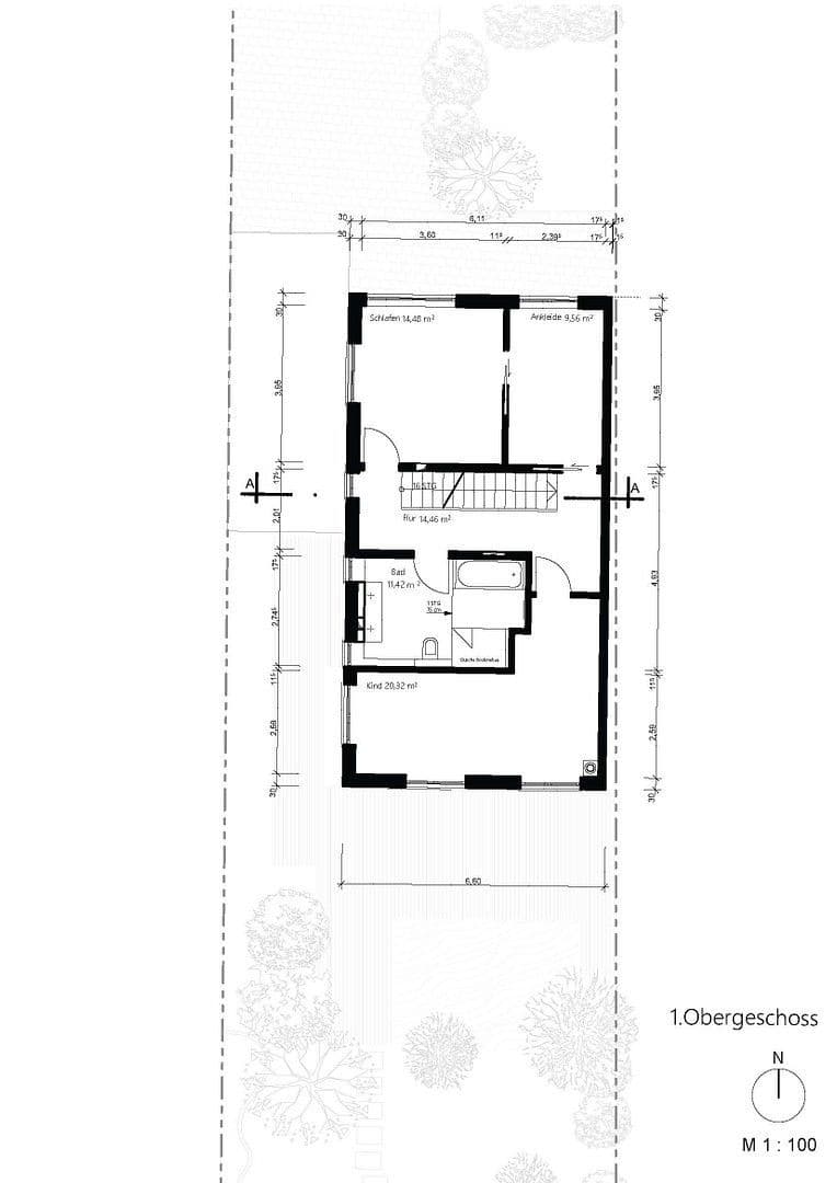
Na prvom nadzemnom podlaží sa nachádza priestranná hlavná spálňa, ktorú dopĺňa samostatná šatníková komora.
Na južnej strane leží rozľahlá detská izba, ktorá vďaka svojej orientácii nielenže naplnená svetlom, ale ponúka aj nádherný výhľad na nižšie umiestnenú terasu a prilehlú záhradu. Okná od podlahy až po strop vo všetkých miestnostiach zabezpečujú svetlú, prívetivú atmosféru a vytvárajú priamu väzbu s prírodou.
Štýlovo zariadená kúpeľňa dopĺňa toto poschodie a disponuje sprchou priamo u podlahy aj priestrannou vaňou – ideálne pre relaxačné chvíle. Moderný sklenený umývadlový pult s veľkým zrkadlom a šikovne integrovaným úložným priestorom, navrhnutý pre dve osoby, spája dizajn s vysokou funkčnosťou.
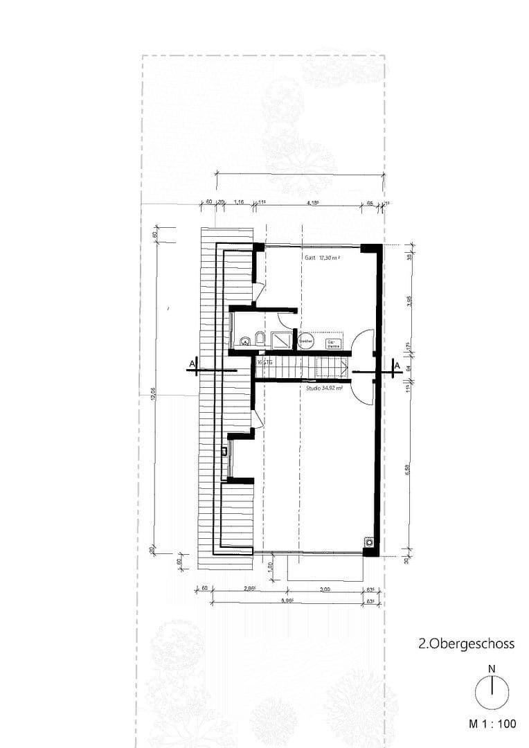
Ďalej pokračujeme do 2. poschodia, do podkrovných štúdií. Tu na návštevníkov čakajú 4,5 m vysoké okná a naspäť orientovaný na juh veľký balkón. Výhľad cez susedné záhrady vedie do zelene a je vidieť aj Olympiaturm. Južné štúdio obsahuje aj uzamykateľný úložný priestor v šikmej časti podkrovia.
Severné štúdio okrem iného obsahuje plynové kúrenie so solárnou termikou. Okrem toho sa tu dostanete do druhej kúpeľne, ktorá taktiež disponuje sprchou. Obe štúdiá majú veľké strešné okná.
Nehnuteľnosť sa nachádza v príjemne pokojnej obytné oblasti na severe Mníchova, len pár minút chôdze od BMW FIZ, resp. výskumného a inovačného centra. Doprava verejnou dopravou je vynikajúca: autobusové linky aj stanica metra Am Hart (U2) sú pešo dostupné za približne 7 minút.
V bezprostrednom okolí sa nachádza základná škola a stredná škola, lekárske centrum Nord, ako aj Euro-Industriepark s množstvom nákupných možností. Vďaka blízkosti diaľnice A99 existuje aj priamy prístup k nadregiónnej dopravnej sieti.
Mníchovské centrum je autom dosiahnuteľné zhruba za 10 minút, čo robí lokalitu obzvlášť atraktívnou pre dojížďajúcich a rodiny.
Samostatná kúpna cena za garáž 40.000 €
Parametre nehnuteľnosti
| Vek | Nad 50 rokov |
|---|---|
| Dispozícia | 5+kk |
| Úžitková plocha | 225 m² |
| Celkové poschodia | 2 |
| Stav | Dobrý |
|---|---|
| Číslo inzerátu | 991830 |
| Plocha pozemku | 408 m² |
| Cena za jednotku | 8 200 € / m2 |
Čo táto nehnuteľnosť ponúka?
| Balkón | |
| Garáž | |
| MHD 1 minúta pešo |
| Pivnica | |
| Parkovanie | |
| Terasa |
V okolí nehnuteľnosti nájdete
Stále hľadáte to pravé?
Nastavte si strážneho psa. Ponuky vybrané na mieru dostanete súhrnne 1× denne e-mailom. S Premium profilom máte po ruke rovno 5 strážcov a keď sa niečo objaví, informujú vás obratom.

























