
Predaj bytu 5+1 • 108 m² bez realitkyMähdachstraße 8 Stuttgart Weilimdorf Baden-Württemberg 70499
Mähdachstraße 8 Stuttgart Weilimdorf Baden-Württemberg 70499MHD 4 minúty pešo • GarážViacrodinný dom postavený v roku 1966 sa prezentuje v mimoriadne udržiavanom celkovom stave. Nehnuteľnosť bola počas rokov priebežne udržiavaná, takže v súčasnosti nedochádza k akumulácii opravárenských prác. Olejové centrálné kúrenie bolo už proaktívne doplnené solárnou termológiou.
Výnimočne treba vyzdvihnúť priestranný pozemok o rozlohe cca 1.102 m². Rozľahlá vonkajšia plocha dodáva objektu príjemnú veľkorysosť, zabezpečuje odstup od susednej výstavby a významne prispieva k pokojnej a otvorenej bydliskovej atmosfére.
Byt je svetlá maisonette s výnimočným šarmom. Veľkorysé okná na oboch úrovniach zaisťujú jasnú a prívetivú atmosféru. Ďalším plusom je výhľad zo strešnej lúky až na zámok Solitude.
V roku 2016 bol byt komplexne zrekonštruovaný. V rámci tejto rekonštrukcie bola elektroinštalácia úplne obnovená, kúpeľne boli moderné a nadčasovo navrhnuté a všetky miestnosti boli vybavené kvalitnými podlahovými krytinami.
V roku 2026 boli vykonané menšie opravy, vďaka čomu je byt v udržiavanom a nasťahovateľnom stave.
Do bytu sa dostanete cez 2. poschodie alebo podkrovie. Obe vstupné dvere bytu boli v rámci rekonštrukcie v roku 2016 vymenené za kvalitné zvukotesné dvere.
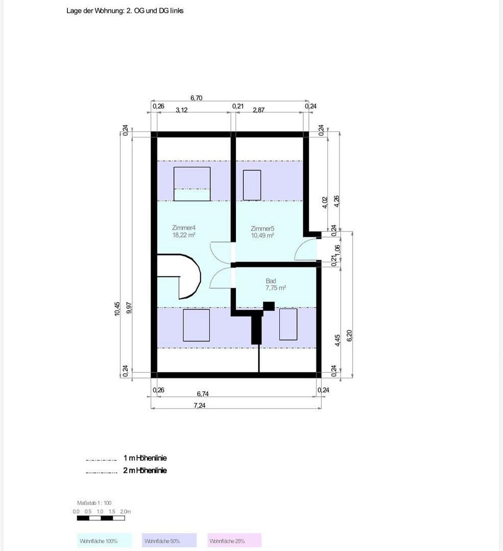
Príjemná chodba na 2. poschodí ponúka praktickú niku pre šatník a na mieru vyrobenú vstavanú skriňu, ktorá, okrem integrovaného elektroinštalačného systému, poskytuje dodatočný úložný priestor.
Samostatná kuchyňa disponuje vlastným malým severným balkónom – ten Vás pozýva na rannú kávu uprostred zelene, ale aj ako osviežujúce útočisko počas horúcich letných dní. Kvalitná vstavaná kuchyňa, vrátane elektrospotrebičov, je zahrnutá v kúpnej cene a dá sa podľa želania prispôsobiť (my sme na jednej strane integrovali bar, prípadne je možné namiesto toho inštalovať 2-metrú kuchynskú skriňu s veľkou pracovnou plochou).
Na tejto úrovni sa nachádza tiež priestranná obývacia izba a jedno z možných spální s prístupom na veľký južný balkón. Na severe je orientovaná tretia miestnosť 2. poschodia, ktorá je ideálna ako kancelária alebo detská izba. Hostinská toaleta s nepriamym denným svetlom a kúpeľňa denného svetla s veľkou sprchou dopĺňajú miestnosti tejto úrovne.
Elegantnou zákrutovou schodiskom sa dostanete na podkrovie, kde sa otvára ďalšia priestranná izba, vhodná flexibilne ako home office, herňa alebo útočisko. Túto úroveň dopĺňa ďalšia možnosť spálne a veľká kúpeľňa s denným svetlom a bezprahovou sprchou. V tejto kúpeľni sú už pripravené prípojky pre práčku a sušičku. Voliteľne je možné kúpeľňu doplniť o rohovú vaňu a vytvoriť tak malú wellness oázu.
V suteréne je možnosť umiestniť práčku a sušičku. Okrem toho sa nachádza aj samostatná sušiareň.
Okrem bytu patrí aj priestranný pivničný priestor.
Byt sa nachádza v žiadanej a príjemne pokojnej lokalite v mestskom obvode Stuttgart-Weilimdorf. Ulica Mähdachstraße predstavuje udržiavané, vyžiarené obytné prostredie s množstvom zelene, príjemnými susedmi a uvoľnenou atmosférou – ideálne pre tých, ktorí chcú bývať blízko centra mesta a zároveň si užívať pokoj.
Weilimdorf patrí k najžiadanejším obytným lokalitám v severozápadnej časti Stuttgartu. Tu sa spája mestský komfort s vysokou kvalitou života. Šarmantné miestne centrum ponúka rozmanité možnosti nákupov, týždenné trhy, pekárne, kaviarne a reštaurácie. Lekári, lekárne, banky a všetky zariadenia každodenných potrieb sú v pohodlnej dostupnosti.
Dopravná dostupnosť je výborná: cez linku metra U6 zo stanice Weilimdorf Löwen-Markt sa rýchlo a pohodlne dostanete do stuttgartskej centra. Okrem toho je zo zastávky Korntal k dispozícii vynikajúce spojenie na S-Bahn. Tým profitujú ako dojížďajúci, tak aj ľudia využívajúci voľný čas, pričom majú maximálnu flexibilitu. Aj diaľnice A81 a A8 sú dosiahnuteľné za krátku jazdu.
Výnimočným lákadlom tejto lokality je bezprostredná blízkosť k rozľahlým poliam, lúkam a lesným oblastiam. Či už ide o ranný jogging, pokojnú prechádzku alebo cyklistický výlet – príroda sa začína prakticky hneď za dverami a tvorí ideálnu rovnováhu k každodennému životu.
Rodiny ocenia vynikajúcu infraštruktúru s materskými škôlkami, školami a množstvom športových a voľnočasových aktivít. Okolie je zároveň charakterizované cennostne stabilnou a udržiavanou výstavbou, ktorá predstavuje trvalo udržateľnú kvalitu bývania.
Kvalitná vstavaná kuchyňa vrátane elektrospotrebičov je zahrnutá v kúpnej cene.
V spoločných nákladoch domu sú zahrnuté mesačné fondy a komplexný balík služieb, ktorý zahŕňa čistenie schodiska, zimnú údržbu a starostlivosť o zeleň.
Dve uzamykateľné samostatné garáže je možné zakúpiť za každú 20.000€.
Parametre nehnuteľnosti
| Vek | Nad 50 rokov |
|---|---|
| Stav | Po rekonštrukcii |
| Poschodie | 2. poschodie z 2 |
| PENB | C - Hospodárne |
| Cena za jednotku | 4 852 € / m2 |
| Dostupné od | 25. 2. 2026 |
|---|---|
| Dispozícia | 5+1 |
| Číslo inzerátu | 991814 |
| Úžitková plocha | 108 m² |
Čo táto nehnuteľnosť ponúka?
| Balkón | |
| Garáž |
| Pivnica | |
| MHD 4 minúty pešo |
V okolí nehnuteľnosti nájdete
Stále hľadáte to pravé?
Nastavte si strážneho psa. Ponuky vybrané na mieru dostanete súhrnne 1× denne e-mailom. S Premium profilom máte po ruke rovno 5 strážcov a keď sa niečo objaví, informujú vás obratom.



