Predaj bytu 3+1 • 74 m² bez realitkyHugo-Bröcker-Str. 34 Hamm Hamm Nordrhein-Westfalen 59067
Hugo-Bröcker-Str. 34 Hamm Hamm Nordrhein-Westfalen 59067MHD 1 minúta pešo** Žiadna dodatočná provízia sprostredkovateľa **
Popis:
Tento očarujúci viacfamilijný dom bol pôvodne postavený v roku 1923, po obnoviteľnej rekonštrukcii v roku 1953 je teraz, v rokoch 2024/2025, kvalitne zrekonštruovaný do jadra a prispôsobený aktuálnym technickým štandardom. Skutočným lákadlom sú určite trojnásobne zasklené okná vrátane termicky odpojených žalúziových skríň, ktoré sú elektricky ovládateľné. Masívna stavebná konštrukcia s pevnými vonkajšími stenami a stabilnou sklepnou podlahou zaručuje vynikajúcu budovu, pričom medzipodlažné stropy v drevenej konštrukcii boli zachované.
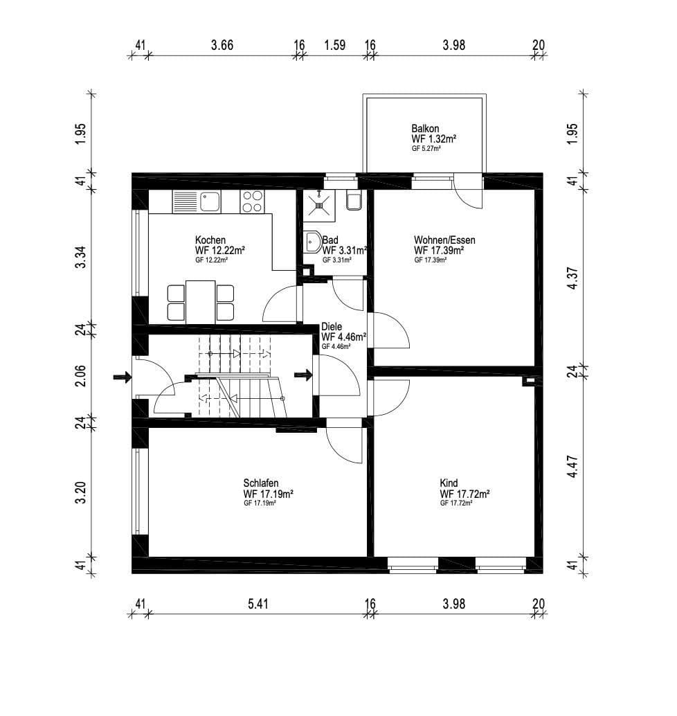
Na predaj sú štyri rekonštruované byty vo vlastníctve s obytnou plochou medzi 59 m² a 79 m²:
Prízemie (175 900 €): 78 m², 3-izbový, s vlastným malým dvorom/záhradou, balkónom a sklepom
1. poschodie (180 000 €): Rezervované
2. poschodie (167 900 €): 73 m², 3-izbový, stavebne zhodný s 1. poschodím, avšak bez balkóna, so sklepom
Poschodie pod strechou (148 000 €): 59 m², 3-izbový, s dodatočným sklepom
Všetky byty ide o prvé osídlenie po komplexnej rekonštrukcii do jadra!
Nehnuteľnosť sa nachádza v pokojnej rezidenčnej štvrti Hamm. Dlhoročná susedská komunita a málo frekventovaná ulica vytvárajú príjemné a uvoľnené obytné prostredie. Obzvlášť atraktívna je blízkosť k Friedrich-Ebert parku, ktorý je dostupný len za pár minút a vyzýva na prechádzky, športové aktivity alebo odpočinok v zelene. Zároveň sú obchodné priestory, školy, materské školy a všetky zariadenia každodennej potreby rýchlo dostupné. Centrum Hamm je vzdialené len pár minút a ponúka množstvo obchodných a voľnočasových možností. Dobrá dostupnosť k verejnej doprave aj diaľničnej sieti zabezpečuje krátke vzdialenosti v každodennom živote.
Popis vybavenia:
Steny:
- Tapetované s drsnou textúrou vo všetkých miestnostiach, okrem kúpeľne
- Biely náter vo všetkých miestnostiach, šedá akcentná stena v kúpeľni
Kúpeľňa:
- Biely obklad na stenu vo formáte 30x60 cm
- Výška do stropu v sprchovom kútiku, polovičná výška v WC-zóne
- Hladký textilný obklad s bielym náterom a šedou akcentnou stenou
Podlahy:
- Vysoko kvalitný dizajnový PVC s integrovaným tlmivým efektom kročej hlučnosti v prírodnej drevenej farbe
- Položený súvislo vo všetkých miestnostiach
Stropy:
- Zavesené stropy v chodbe a kúpeľni s integrovanými stropnými svietidlami
- Hladko omietnuté a natreté
- Náter: biely
Okná:
- Trojnásobne zasklené okná s otáčateľnou a naklopiteľnou prevodnou funkciou a tepelným ochranným sklom (UG-hodnota 0,6)
- Materiál: plast, farba: biela
- Okná obloženie je izolované
Žalúzie:
- Plastové žalúzie, farba: biela
- Termicky oddelená skrinka pre žalúzie
- Elektricky ovládateľné
Elektrika:
- Hlavná rozvodná skrinka v suteréne
- Podružná rozvodná skrinka v každom byte
- 3-vodičové káble
Vstupné dvere bytu:
- Masívne drevené dvere, farba: biela
- Klimatická trieda II
- Optimalizované pre zvukovú izoláciu
Hlavné dvere:
- Hliníkové dvere, farba: sivá s tromi svetelnými výrezmi
- Kovanie: zvonka – tyčová rukoväť z nehrdzavejúcej ocele, zvnútra – U-tvarový tlačidlo z nehrdzavejúcej ocele
- U(D)-hodnota 1,3 W/m²K
Kúrenie a radiátory:
- Centralizované plynové kúrenie
- Radiátory vo všetkých miestnostiach, farba: biela
- Otepľovací držiak na uteráky v kúpeľni
Sanitárna inštalácia:
Kuchyňa s jedálenským kútom:
- 1 pripojenie studenej aj teplej vody, 1 odpadové pripojenie
- Nové vodovodné potrubia
Sprcha:
- Pre sprchu a umývadlo: každé 1 pripojenie studenej a teplej vody, pre toaletu 1 pripojenie studenej vody
- Chromovaná sprchová tyč
- Sprchový paraván zo skla
- Nové vodovodné potrubia
WC:
- 1 stenu montovaná toaleta s hlbokým splachovaním, biela
- Zabudnutý splachovací systém od Geberit
Horný podlažný strop a sklepná strop:
- Izolované s polystyrénovou tvrdou penou
Požiarna ochrana:
- Optimalizovaná požiarna ochrana podľa aktuálnych predpisov o požiarnych opatreniach v spolkovej oblasti NRW
- Požiarne odolné T-30 dvere do suterénu vrátane protipožiarneho obloženia T-90 stien
- Systém na odvod dymu a tepla (RWA)
Parametre nehnuteľnosti
| Vek | Nad 50 rokov |
|---|---|
| Stav | Po rekonštrukcii |
| Poschodie | 1. poschodie z 3 |
| PENB | G - Mimoriadne nehospodárne |
| Cena za jednotku | 2 377 € / m2 |
| Dostupné od | 14. 3. 2026 |
|---|---|
| Dispozícia | 3+1 |
| Číslo inzerátu | 991798 |
| Úžitková plocha | 74 m² |
Čo táto nehnuteľnosť ponúka?
| Balkón | |
| MHD 1 minúta pešo |
| Pivnica |
V okolí nehnuteľnosti nájdete
Stále hľadáte to pravé?
Nastavte si strážneho psa. Ponuky vybrané na mieru dostanete súhrnne 1× denne e-mailom. S Premium profilom máte po ruke rovno 5 strážcov a keď sa niečo objaví, informujú vás obratom.










