Prenájom kancelárie • 58 m² bez realitkyTratmoos 22 Niederneuching / Wolfsleben Wolfsleben Bayern 85467
Tratmoos 22 Niederneuching / Wolfsleben Wolfsleben Bayern 85467MHD 9minút pešo • ParkovanieObchodná jednotka s rozlohou 58 m² sa nachádza v 1. poschodí (bez výťahu) v obchodnej budove, ktorá zahŕňa celkovo päť obchodných jednotiek vo Wolfsleben/obchodnej zóne Tratmoos. Každej obchodnej jednotke je na pozemku pridelené parkovacie miesto pre osobné vozidlo, ktoré je zahrnuté v nájomnom. Ďalšie parkovacie miesta je možné využiť na verejnej ceste.
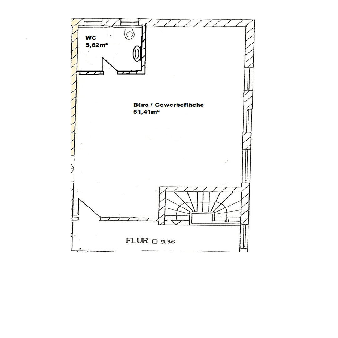
Jednotka disponuje optimálnym osvetlením denným svetlom vďaka početným oknám.
Priestor je vybavený WC a umývadlom. K dispozícii je aj malá kuchynka, ktorú môžete bezplatne prevziať, alebo využiť existujúce pripojenia pre vlastný kuchynský nábytok.
Tichá a malá obchodná zóna Tratmoos patrí do správcovskej zoskupenia Oberneuching, ktoré pozostáva z obcí Neuching a Ottenhofen. Místna časť Wolfsleben je prístupná po ceste ST 2082, ktorá vedie z Kirchheim do Erdingu.
Wolfsleben sa nachádza na južnej časti Erdinger Moos, severne od Speichersees a približne 24 km severovýchodne od bavarského hlavného mesta Mníchov.
Dobré dopravné spojenie obce umožňuje rýchly prístup nielen do Mníchova (cca 25 minút autom, 24 km), ale aj do okresného mesta Erding (cca 10 minút autom, 7,5 km) a na letisko (cca 21 minút autom, 18 km).
Prístup ku S-Bahn je možný v stanici Sankt Koloman S2 (cca 7 minút autom, 5 km) alebo Ottenhofen S2 (cca 7 minút autom, 6 km).
Cez východnú časť obce prechádza letisková tangenta Ost, cez ktorú sa dostanete k zjazdovej ploche diaľnice A94 v Markt Schwaben (cca 13 minút autom, 14,5 km), na letisko (cca 21 minút autom, 18 km) a k zjazdovej ploche diaľnice A92 v Erdingu (cca 21 minút autom, 21 km).
Diaľnica A99 so zjazdovou plochou Kirchheim je pohodlne dostupná cez cestu ST 2082 (cca 14 minút autom, 13 km).
Cez cestu B388 sa dostanete na diaľnicu A9 so zjazdovou plochou Garching Süd (cca 19 minút autom, cca 17 km).
V obchodnej jednotke je nainštalované optické pripojenie pre telefón a internet a tiež domofón.
Prevádzkovateľ Deutsche Glasfaser vám ponúka možnosť objednať si pripojenia s rýchlosťou od 300 Mbit/s sťahovanie / 150 Mbit/s odosielanie až po 1000 Mbit/s sťahovanie / 500 Mbit/s odosielanie za sekundu.
Snísenie pre každého profesionálneho používateľa internetu!!!!
Kancelárske priestory 58 m²: 640,00 € + prevádzkové náklady 150,00 € plus zákonná DPH.
Kauce: 3 mesačné nájmy.
Prenajíma sa iba obchodným subjektom alebo živnostníkom.
Sadzba obchodnej dane obce Neuching: 370.
Prenájom najskôr od 01.04.2026.
Prenájom priamo od vlastníka.
Parametre nehnuteľnosti
| Vek | Nad 50 rokov |
|---|---|
| Stav | Dobrý |
| Číslo inzerátu | 991646 |
| Cena za jednotku | 11 € / m2 |
| Dostupné od | 1. 4. 2026 |
|---|---|
| Poschodie | 1. poschodie |
| Plocha kancelárie | 58 m² |
Čo táto nehnuteľnosť ponúka?
| Parkovanie |
| MHD 9 minút pešo |
V okolí nehnuteľnosti nájdete
Stále hľadáte to pravé?
Nastavte si strážneho psa. Ponuky vybrané na mieru dostanete súhrnne 1× denne e-mailom. S Premium profilom máte po ruke rovno 5 strážcov a keď sa niečo objaví, informujú vás obratom.











