Predaj bytu 3+1 • 99 m² bez realitkyAlte Plantage 2, , Dolné Sasko
Na predaj je mimoriadne kvalitný vlastný byt s južným balkónom v súčasnej novostavbe „Auf der Meine“ v 38458 Velpke, časť Meinkot. Predaj prebieha bez maklérskych provízií – neuplatňuje sa žiadna maklérska provízia.
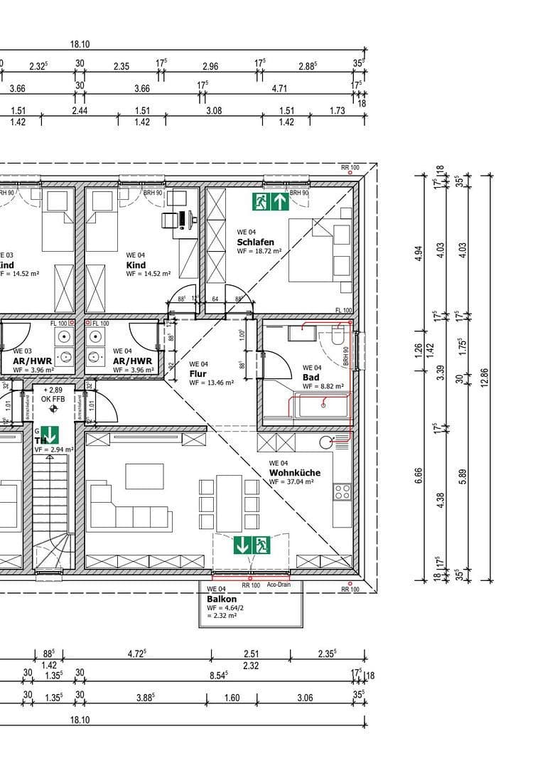
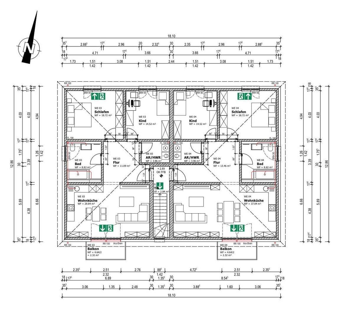
Byt je súčasťou viacfamilijného domu, ktorý celkovo obsahuje štyri obytné jednotky. Rozloženie priestorov je premyslené. Všetky byty ponúkajú vysokú mieru súkromia, pretože balkóny bytov v hornom poschodí sú oproti záhrade orientované na juh.
Údaje o nehnuteľnosti na prvý pohľad:
• Masívna stavba
• Kvalitné, prémiové vybavenie
• 99 m² obytných priestorov
• Južný balkón
• Veľká a súkromná podkrovná časť
(prístupná cez podkrovný vstup v chodbe bytu)
• 3 izby, z toho 2 spálne
• 1 kúpeľňa s bezbariérovou sprchou s dažďovým efektom
• Novostavba / prvý nástup
• Kúpeľňa obložená dlažbou
• Vinylová podlaha vo všetkých ostatných miestnostiach
• Kúrenie: Tepelné čerpadlo
• Podlahové kúrenie vo všetkých miestnostiach
• Trojitok zasklených okien od firmy BRÖMSE
• Elektrické žaluzie na všetkých oknách
• Ohrevník uterákov v kúpeľni
• Glasfiber pripojenie
• Vyvolávací systém s kamerou, ovládaný cez aplikáciu
• Pokojná a rodinne prívetivá lokalita s množstvom zelene
Exteriér:
• Južný balkón
• Dve parkovacie miesta zahrnuté v kúpnej cene
(vrátane pripojenia pre wallbox)
Meinkot patrí do samosprávy Velpke. Len 2 km vzdialený Velpke ponúka veľmi dobrú infraštruktúru s možnosťami nakupovania (ALDI, EDEKA, PENNY), s lekármi, lekárňami, materskými dvorcami, ako aj so základnými a strednými školami.
Wolfsburg je vzdialený približne 15–20 minút a Braunschweig okoli 40 minút.
Byt zaujme priestranným, otvoreným obývacím, jedálenským a kuchynským priestorom, ktorý je plný denného svetla vďaka vysokým oknám. Okrem toho máte k dispozícii dve spálne, modernú kúpeľňu s bezbariérovou sprchou s dažďovým efektom a praktickú úložnú miestnosť s prípojkou pre práčku.
Nehnuteľnosť sa odovzdáva pripravená na nastťahovanie. Steny sú už natreté na bielo, kúpeľne, technická miestnosť aj schodisko sú obložené dlažbou, vo všetkých ostatných miestnostiach je položená kvalitná vinylová podlaha s klikovým systémom.
• Predaj bez makléra
• Bez provízií
• Dokončenie: 05/2026
• Energeticky moderná a pripravená do budúcnosti (tepelné čerpadlo)
• Pripravené pre fotovoltaickú inštaláciu: potrebné vedenia už vedú z podkrovia do technickej miestnosti
• Možnosť inštalácie kvalitnej vstavanéj kuchyne podľa potrieb
• V závislosti od pokroku výstavby sú aktuálne možné aj individuálne úpravy (napr. podlahové krytiny, farebné ladenie stien)
Okrem toho je ešte k dispozícii byt v prízemí s vlastnou záhradnou časťou a ďalší byt v hornom poschodí.
Parametre nehnuteľnosti
| Vek | Nad 50 rokov |
|---|---|
| Stav | Veľmi dobrý |
| Poschodie | 1. poschodie |
| PENB | A - Mimoriadne úsporné |
| Cena za jednotku | 2 313 € / m2 |
| Dostupné od | 1. 5. 2026 |
|---|---|
| Dispozícia | 3+1 |
| Číslo inzerátu | 991533 |
| Úžitková plocha | 99 m² |
Čo táto nehnuteľnosť ponúka?
| Balkón | |
| MHD 4 minúty pešo |
| Parkovanie |
V okolí nehnuteľnosti nájdete
Stále hľadáte to pravé?
Nastavte si strážneho psa. Ponuky vybrané na mieru dostanete súhrnne 1× denne e-mailom. S Premium profilom máte po ruke rovno 5 strážcov a keď sa niečo objaví, informujú vás obratom.
























