Prenájom nebytového priestoru 3+1 • 103 m² bez realitkyUellendahler Straße 332 Wuppertal Uellendahl-Katernberg Nordrhein-Westfalen 42109
Uellendahler Straße 332 Wuppertal Uellendahl-Katernberg Nordrhein-Westfalen 42109MHD 2 minúty pešo • ParkovanieNa prenájom je ponúknutá atraktívna a funkčne navrhnutá obchodná jednotka s približne 103 m² užitkovej plochy, situovaná na veľmi dobre viditeľnom mieste na Uellendahler Straße (v blízkosti McDonald’s). Objekt je ideálny pre systémovú gastronómiu, občerstvenie, take-away, donáškový servis alebo porovnateľné koncepty. Jednotka zaujme veľkou sklenenou fasádou smerom k ulici, ktorá poskytuje vynikajúcu viditeľnosť, reklamné možnosti a prítomnosť.
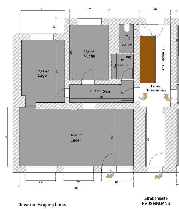
Plochy & dispozícia
Užitková plocha je rozdelená nasledovne:
• približne 74 m² pre kuchyňu, obslužnú miestnosť, dodatočný prídavný priestor (napr. kanceláriu alebo prípravu) a WC
• približne 29 m² samostatná užitková plocha/sklad
• priestranná chladiarenská miestnosť pre skladovanie tovaru
Toto rozdelenie poskytuje ideálne podmienky pre čistú donáškovú prevádzku aj pre take-away s priamym kontaktom so zákazníkmi.
Vybavenie & špecifiká
• Moderný, výkonný odsávač vzduchu
• Veľká chladiarenská miestnosť
• Rozsiahla sklenená fasáda s vysokým vonkajším pôsobením
• Praktická a flexibilne využiteľná dispozícia
• Dobré predpoklady pre rôzne gastronomické koncepty
Parkovacie možnosti
K objektu patrí jedna parkovacia miestnosť a je možnosť si prenajať až maximálne 3 ďalšie miesta pre osobné automobily – ideálne pre zamestnancov, donáškovú dopravu a pod. Parkovacie miesta sa nachádzajú v dvore.
Jednotka sa nachádza na Uellendahler Straße, dobre frekventovanej hlavnej komunikácii so stabilným prítokom zákazníkov. Je zabezpečená dobrá dostupnosť ako pre individuálnu dopravu, tak aj pre verejnú dopravu. Okolitá obytná a obchodná zóna ponúka solídnu klientelu pre koncepty donášky a vyzdvihnutia.
V súčasnosti je udelené povolenie pre využitie ako systémová gastronómia, občerstvenie, take-away alebo donáškový servis. Prenajímateľ je otvorený možnosti zmeny využitia, pričom podmienkou je férové a ekonomicky zmysluplné riešenie ohľadom nájomného alebo páči, ktoré je možné dohodnúť spoločne.
Parametre nehnuteľnosti
| Vek | Nad 50 rokov |
|---|---|
| Dispozícia | 3+1 |
| Plocha nebytového priestoru | 103 m² |
| Stav | Dobrý |
|---|---|
| Číslo inzerátu | 991267 |
| Cena za jednotku | 12 € / m2 |
Čo táto nehnuteľnosť ponúka?
| Pivnica | |
| MHD 2 minúty pešo |
| Parkovanie |
V okolí nehnuteľnosti nájdete
Stále hľadáte to pravé?
Nastavte si strážneho psa. Ponuky vybrané na mieru dostanete súhrnne 1× denne e-mailom. S Premium profilom máte po ruke rovno 5 strážcov a keď sa niečo objaví, informujú vás obratom.






