Predaj domu 5+1 • 217 m² bez realitkyGRUNDSTÜCK EXKLUSIV NUR FÜR DANWOOD-HAUSBAU Markt Hartmannsdorf Steiermark 8311
GRUNDSTÜCK EXKLUSIV NUR FÜR DANWOOD-HAUSBAU Markt Hartmannsdorf Steiermark 8311MHD do minúty pešoPOINT 217 S architektonickým vyhlásením
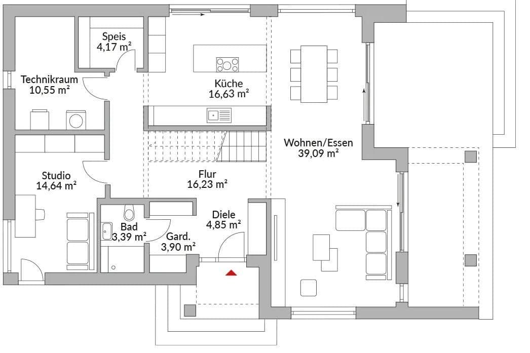
Ako scénografická kulisa Vás tento dom privíta vyvýšeným vstupom a dverami, ktoré vytvárajú priestor pre očakávania. Strešné okná – výrazný detail, sľub.
Okná, ktoré siahajú až k podlahe, nechávajú prúdiť svetlo a dodávajú miestnostiam dych. Kuchyňa – otvorená, prívetivá – sa spája s obývacou časťou, pričom posuvné dvere otvárajú cestu na terasu.
Štúdio v prízemí – miesto ústrania, ateliér, izba pre hostí. Miestnosti, ktoré uľahčujú každodenný život, bez jeho nadmerného zatienenia.
A hore? Spálňa ako útočisko. S prepojenou šatňou, exkluzívnou kúpeľňou, dvojitým umývadlom – a s možnosťou voľene postavenej vane. Miesto, ktoré inšpiruje.
Na Vašom pozemku alebo v…
Güssing: Približne 2 600 m², lokalita úplne rovná, pričom rozmery a polohu pozemku si môžete zvoliť podľa vlastného uváženia. Rozmery od 500 m² do 1500 m².
Tu sú stavebné pozemky najvyššej triedy! V najlepšej lokalite a s ohromujúcim výhľadom na nádherný hrad Güssing!
Güssing ponúka budúcnosť, dostupný a energeticky nezávislý život v prírode, čo robí investíciu do nehnuteľnosti tam strategickou hodnotovou investíciou.
Prečo Güssing
Energetický priekopník a udržateľnosť:
• Mesto je energeticky nezávislé a medzinárodne uznávané.
• Vysoké pokrytie (nad 85 %) regionálnym biomassem využívaným na diaľkové kúrenie zaručuje stabilné, nízke náklady na vykurovanie.
Dostupné ceny nehnuteľností:
• Ceny sú stále výrazne nižšie ako rakúsky priemer, čo umožňuje splniť sen o vlastnom dome s priestranným pozemkom.
Silná infraštruktúra a kvalita života:
• Ako okresné predmestie zaručuje Güssing krátke vzdialenosti a najlepší prístup k službám.
Plánované veľké investície:
• Nový vzdelávací kampus a moderné centrum lekárov (od roku 2026).
• Kultúrne centrum (hrad Güssing) a blízkosť kúpeľov.
Kompletné otvorenie S7 prináša značné výhody pre Güssing a jeho obyvateľov:
• Rýchlejšie spojenie s metropolitnými oblasťami: Diaľnica výrazne skracuje cestovný čas k diaľnici A2 juh, čím sa výrazne znižuje doba cesty do Grazu a Viedne.
• Odľahčenie regiónu: Nová trasa odvádza tranzitný ruch, ktorý predtým zaťažoval obce ako Fürstenfeld a Rudersdorf.
• Ekonomické impulzy: Nové spojenie, mimo iného cez prípojku pri Rudersdorf/Dobersdorf a vďaka blízkosti uzla Königsdorf, posilňuje Güssing ako okresné predmestie a obchodnú lokalitu prostredníctvom lepšej dostupnosti a podpory nových priemyselných parkov.
Hodnotová stabilita a rozvojový potenciál:
• Cielené obecné investície do infraštruktúry, revitalizácie mestského jadra a technologického centra zaručujú dlhodobú stabilitu hodnoty nehnuteľností.
• Obecná stratégia je zameraná na zvládnutie demografických výziev a etablovanie Güssingu ako atraktívnej lokality pre bývanie a podnikanie.
Cieľová skupina
Rodiny, ktoré hľadajú budúcnosť, bezpečie a prírodu, ako aj všetci, ktorí si cenia nízke náklady na energiu a ekologickú zodpovednosť.
Ďalšie pozemky v:
Pozemok, 8323 Kohldorf: Stavebný pozemok so slnečným expozíciou v strednom štajerskom kopcovitom teréne, 15 km od Grazu!
Rozloha 758 m², kúpna cena € 66 000, --
Pozemok, 8323 Kohldorf: Slnečný stavebný pozemok v Kohldorfe, 15 km východne od Grazu!
Rozloha 787 m², kúpna cena € 69 000, --
Pozemok, 8311 Markt Hartmannsdorf: Plne sprístupnený, slnečný stavebný pozemok v Markt Hartmannsdorf
Rozloha 920 m², kúpna cena € 53 000, --
Pozemok, 9335 Lölling Graben: Stavebný pozemok s úchvatným diaľkovým výhľadom v malebnej korutánskej horskej krajine
Rozloha 1001 m², kúpna cena € 50 000, --
Pozemok, 8075 Hart bei Graz: Slnečný pozemok pri vstupe do Grazu
Rozloha 1980 m², kúpna cena € 475 000, --
Pozemok na predaj v Stainz: Slnečný pozemok na okraji mesta Stainz
Rozloha 825 m², kúpna cena € 149 000,
Medzi vlastníkom pozemku a staviteľom domu nevzniká žiadne hospodárske spojenie.
VISION – Kompletná odovzdanie kľúčového domu spolu s technickou dokumentáciou – domy postavené na základovej doske!
Rozsah prác
VÝŠKA MIESTNOSTÍ:
• Prízemie: 3,05 m
• Podkrovie: 2,67 m
Technika
Technika, ktorá uľahčuje bývanie: Technický balík Today 3BL kombinuje modernú technológiu tepelného čerpadla s priestranným zásobníkom teplej vody a inteligentným ventilačným systémom. Výsledok: domov, ktorý sa automaticky postará o príjemnú vnútornú klímu – teplo počas zimy, sviežo počas leta, efektívne počas celého roka. Podlahové kúrenie zabezpečuje príjemné teplo v každej miestnosti, pričom centrálny ventilačný systém s rekuperáciou tepla šetrí energiu a zároveň zabezpečuje stálu čistotu vzduchu. Technický balík, ktorý dokonale spája komfort, efektívnosť a budúcu udržateľnosť.
Elektrické rolietové okná
Rolietové okná od DANWOOD sú dokonalým doplnkom k energeticky efektívnej technológii stavby DANWOOD. Chránia pred horúčavami v lete, udržiavajú teplo v zime a zároveň poskytujú súkromie a bezpečnosť. S elektrickým ovládaním alebo inteligentným riadením ich možno pohodlne a intuitívne používať – komfort, ktorý pocítite každý deň. Jednoducho povedané, pri DANWOOD sú rolietové okná voliteľné, ale technicky dokonale integrovateľné – elektrické, odolné a ideálne pre modernú architektúru.
Sanitárne zariadenia:
• Sprcha – bezpečná, pohodlná a ideálna pre deti aj dospelých
• Zavesená toaleta – ľahko čistiteľná, hygienická, rodinne prívetivá
• Umývadlo
• Kvalitné batérie – odolné, ľahko použiteľné, teplotne stabilné
• Voliteľné podľa modelu:
– Vaňa – ideálna pre deti, oddych alebo spoločné večerné rituály
– Dvojité umývadlo – bez ranného zhonu
– Zasadené batérie – bezpečné, elegantné, ľahko sa čistí
Všetko je navrhnuté tak, aby uľahčilo každodenný život a zároveň zostalo dlho krásne.
Maľovacie práce
Steny a stropy – pripravené na nastahovanie. Všetky vnútorné steny a stropy budú realizované v štandardnej kľúčovej realizácii. To znamená:
• Hladké, zbrúsené a omietnuté povrchy
• Biela konečná úprava kvalitnou disperznou farbou
• Čistý, rovnomerný vzhľad vo všetkých obytných miestnostiach. DANWOOD dodáva už hotový povrch
• Žiadne viditeľné spáry alebo prechody vďaka priemyselnej precíznosti
Takto je dom okamžite obývateľný, bez potreby ďalších malírovatelských prác.
Podlahy
Obývacie a spálňové miestnosti – teplé, odolné, príjemné!
Všetky obývacie a spálňové miestnosti budú vybavené kvalitnými, nenáročnými podlahovými krytinami, ktoré spájajú teplo, komfort a praktickosť každodenného života. Štandardná výbava (v závislosti od modelu):
• Kvalitná dizajnová vinylová podlaha s dreveným vzhľadom
• Odolná, tichá a príjemne teplá na nohách
• Ideálna pre rodiny, domácich miláčikov a každodenné používanie
• Harmonické farebné odtiene (svetlý dub, prírodný dub, sivý dub – podľa výberu v Design Centre Pinkafeld)
Voliteľne:
• Laminát v prémiovej kvalite
• Masívny parket (za príplatok)
• Alternatívne dizajnové línie (betónový vzhľad, tmavý drevený vzhľad, teplé prírodné odtiene)
Poznámka: Všetky ceny domov platia od vrchného okraja základovej dosky. Ukážky môžu zobrazovať voliteľné špeciálne vybavenie.
Parametre nehnuteľnosti
| Vek | Nad 50 rokov |
|---|---|
| Dispozícia | 5+1 |
| Úžitková plocha | 217 m² |
| Cena za jednotku | 2 373 € / m2 |
| Stav | Novostavba |
|---|---|
| Číslo inzerátu | 991113 |
| Plocha pozemku | 1 m² |
Čo táto nehnuteľnosť ponúka?
| MHD 0 minút pešo |
V okolí nehnuteľnosti nájdete
Stále hľadáte to pravé?
Nastavte si strážneho psa. Ponuky vybrané na mieru dostanete súhrnne 1× denne e-mailom. S Premium profilom máte po ruke rovno 5 strážcov a keď sa niečo objaví, informujú vás obratom.


















