Predaj domu 5+1 • 217 m² bez realitkyGRUNDSTÜCK FERNLICK EXKLUSIV NUR FÜR DANWOOD-HAUSBAU Lölling Graben Lölling Graben Steiermark 9335
GRUNDSTÜCK FERNLICK EXKLUSIV NUR FÜR DANWOOD-HAUSBAU Lölling Graben Lölling Graben Steiermark 9335MHD 3 minúty pešoPOINT 217 S ARCHITEKTÚRNYM STATEMENT
Ako kulisa na javisku vás tento dom privíta zdvihnutým vstupným dielom a dverami, ktoré otvárajú priestor pre očakávania. Okna v štítovej stene – zaujímavý prvok, sľub.
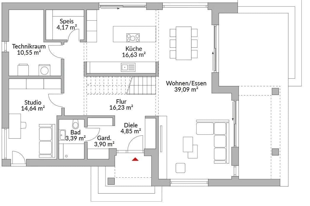
Okna, ktoré siaha až k podlahe, nechávajú prúdiť svetlo a umožňujú miestnostiam dýchať. Kuchyňa – otvorená, prívetivá – sa spája s obývacou časťou, pričom posuvné dvere otvárajú cestu na terasu.
Štúdio v prízemí – útočisko, ateliér, izba pre hostí. Miestnosti, ktoré si uľahčujú každodenný život, bez toho aby ho dominovali.
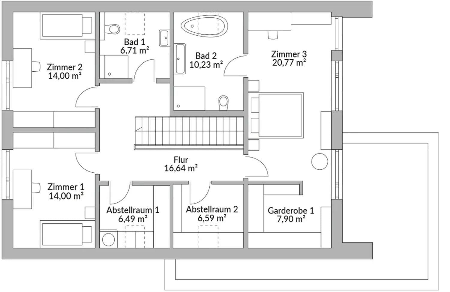
A hore? Spálňa ako útočisko. S prechádzaným šatníkom, exkluzívnou kúpeľňou, dvojitým umývadlom – a s možnosťou voľne stojacej vane. Miesto, ktoré inšpiruje.
Na vašom pozemku alebo v…
Güssing: Približne 2 600 m², terén úplne rovinatý. Veľkosti pozemkov a ich umiestnenie sú na výber – od 500 m² do 1500 m².
Tu nájdete stavebné pozemky najvyššej triedy! V najlepšej lokalite a s ohromujúcim výhľadom na nádherný hrad Güssing!
Güssing ponúka budúcnosti zabezpečený, dostupný a energeticky nezávislý život v prírode, čo robí investíciu do nehnuteľnosti tam strategickou hodnotovou investíciou.
Prečo Güssing
Energetický priekopník a udržateľnosť:
Mesto je energeticky autonómne a medzinárodne uznávané. Vysoké pokrytie (nad 85 %) regionálnym biomásovým diaľkovým kúrením vedie k stabilným a výhodným nákladom na kúrenie.
Dostupné ceny nehnuteľností:
Ceny sú ešte výrazne priaznivejšie než priemer v Rakúsku, čo umožňuje splniť si sen o vlastnom dome s priestrannými pozemkami.
Silná infraštruktúra a kvalita života:
Ako okresné predmestie zaručuje Güssing krátke vzdialenosti a najlepšie služby.
Plánované veľké investície:
Nový vzdelávací kampus a moderné lekárske centrum (od roku 2026).
Kultúrne centrum (hrad Güssing) a blízkosť kúpeľov.
Úplné otvorenie S7 prináša výrazné výhody pre Güssing a jeho obyvateľov:
• Rýchlejšie napojenie na mestské aglomerácie: Diaľnica masívne skracuje cestovný čas k diaľnici A2 Süd, čím sa výrazne znižujú doby cestovania do Grazu a Viedne.
• Odľahčenie regiónu: Presmeruje priechodnú premávku, ktorá predtým výrazne zaťažovala obce ako Fürstenfeld a Rudersdorf, na novú trasu.
• Ekonomické impulzy: Nové spojenie, či už cez prístupovú cestu pri Rudersdorf/Dobersdorf, alebo vďaka blízkosti napojenia na Königsdorf, posilňuje Güssing ako okresné predmestie a hospodárske centrum – vďaka lepšej dostupnosti a podpore nových obchodných parkov.
Hodnotová stabilita a rozvojový potenciál:
Cielené komunálne investície do infraštruktúry, oživenia centra mesta a technologického centra zaisťujú dlhodobú hodnotovú stabilitu nehnuteľností.
Stratégia obce sa zameriava na zvládnutie demografických výziev a etablovanie Güssingu ako atraktívneho miesta pre bývanie aj podnikanie.
Cieľová skupina
Rodiny, ktoré hľadajú budúcnosť, bezpečnosť a prírodu – ako aj všetci, ktorí si cenia nízke náklady na energiu a ekologicky zodpovedný život.
Ďalšie pozemky v:
Pozemok, 8323 Kohldorf: Stavebný pozemok s množstvom slnka v kopcovitom východnom Štajersku, 15 km od Grazu!
Rozloha: 758 m², kúpna cena: € 66 000, --
Pozemok, 8323 Kohldorf: Slnečný stavebný pozemok v Kohldorfe, 15 km východne od Grazu!
Rozloha: 787 m², kúpna cena: € 69 000, --
Pozemok, 8311 Markt Hartmannsdorf: Úplne pripravovaný, slnečný stavebný pozemok v Markt Hartmannsdorf
Rozloha: 920 m², kúpna cena: € 53 000, --
Pozemok, 9335 Lölling Graben: Stavebný pozemok s úchvatným diaľkovým výhľadom v malebnom korunskom horskom prostredí
Rozloha: 1001 m², kúpna cena: € 50 000, --
Pozemok, 8075 Hart pri Graze: Slnečný pozemok pred bránami Grazu
Rozloha: 1980 m², kúpna cena: € 475 000, --
Pozemok na predaj v Stainz – Slnečný pozemok na okraji Stainz
Rozloha: 825 m², kúpna cena: € 149 000, --
Medzi vlastníkom pozemku a realizátorom domu neexistuje žiadne hospodárske prepojenie.
VISION Kompletná realizácia a technický opis – Domy na základovej doske!
Rozsah služieb
VÝŠKY MIESTNOSTÍ:
Prízemie: 3,05 m
Podkrovie: 2,67 m
Technika
Technika, ktorá uľahčuje bývanie
Technický balík Today 3BL kombinuje modernú technológiu tepelných čerpadiel s veľkorysým zásobníkom teplej vody a inteligentným ventilačným systémom. Výsledok: dom, ktorý sa sám postará o príjemnú atmosféru – teplý v zime, svieži v lete, efektívny po celý rok.
Podlahové kúrenie zabezpečuje príjemné teplo v každej miestnosti, zatiaľ čo centrálna ventilácia s rekuperáciou tepla šetrí energiu a zabezpečuje neustále čerstvý vzduch.
Balík techniky, ktorý dokonale spája komfort, efektívnosť a budúcu spoľahlivosť.
Elektrické žalúzie
Žalúzie od DANWOOD sú dokonalým doplnkom k energeticky efektívnej konštrukcii DANWOOD.
Chrániť vás v lete pred horúčavou, v zime udržiavať teplo v dome a vždy zabezpečiť súkromie a bezpečnosť.
S elektrickým ovládaním alebo inteligentným riadením sa dajú ovládať pohodlne a intuitívne – komfort, ktorý pocítite každý deň.
Jednoducho povedané: pri DANWOOD sú žalúzie voliteľné, no technicky dokonale integrované – elektrické, odolné a ideálne pre modernú architektúru.
Sanitárne zariadenie:
• Sprcha – bezpečná, pohodlná a ideálna pre deti aj dospelých
• Zavesená toaleta – ľahko čistiteľná, hygienická, vhodná pre rodiny
• Umývadlko
• Kvalitné batérie – odolné, jednoduché na ovládanie, teplotne stabilné
• Voliteľne podľa modelu:
– Vaňa – perfektná pre deti, oddych alebo spoločné večerné rituály
– Dvojité umývadlo – žiadne preplnenie ráno
– Zaronené batérie – bezpečné, elegantné, ľahko čistiteľné
Všetko je navrhnuté tak, aby uľahčilo každodenný život a zároveň zostalo dlho krásne.
Maľovacie práce
Steny a stropy – pripravené na nastěhovanie.
Všetky vnútorné steny a stropy budú v štandardnej výbave odovzdané „na kľúč“. To znamená:
• Hladké, sadrované a zabrúsene povrchy
• Biela finálna úprava v kvalitnej disperznej farbe
• Čistý a jednotný vzhľad vo všetkých obytných priestoroch
DANWOOD dodáva už hotový povrch
• Žiadne viditeľné spoje či prechody vďaka priemyselnej precíznosti
Tým je dom okamžite obývateľný, bez potreby ďalších maľovacích prác.
Podlahy
Obývacie a spálne – teplé, robustné, príjemné!
Všetky obývacie a spálne budú vybavené kvalitnými, nenáročnými podlahovými krytinami, ktoré spájajú teplo, komfort a praktickosť pre každodenný život.
Štandardné prevedenie (podľa modelu):
• Kvalitná dizajnová vinylová podlaha v drevenom vzore
• Odolná, tichá, príjemná na bosé nohy
• Ideálna pre rodiny, domáce zvieratá a každodenné použitie
• Harmonické farebné variácie (svetlý dub, prírodný dub, šedý dub – podľa výberu v Design Center Pinkafeld)
Voliteľne:
• Laminát v prémiovej kvalite
• Parkety z masívneho dreva (príplatok)
• Alternatívne dizajnové línie (vzhľad betónu, tmavý drevený vzhľad, teplé prírodné tóny)
Poznámka: Všetky ceny domov sú uvedené od hornej hrany základovej dosky. Ilustračné obrázky môžu zobrazovať voliteľné špeciálne vybavenie.
Parametre nehnuteľnosti
| Vek | Nad 50 rokov |
|---|---|
| Dispozícia | 5+1 |
| Úžitková plocha | 217 m² |
| Cena za jednotku | 2 373 € / m2 |
| Stav | Novostavba |
|---|---|
| Číslo inzerátu | 991112 |
| Plocha pozemku | 1 m² |
Čo táto nehnuteľnosť ponúka?
| MHD 3 minúty pešo |
V okolí nehnuteľnosti nájdete
Stále hľadáte to pravé?
Nastavte si strážneho psa. Ponuky vybrané na mieru dostanete súhrnne 1× denne e-mailom. S Premium profilom máte po ruke rovno 5 strážcov a keď sa niečo objaví, informujú vás obratom.


















