
Prenájom bytu 4+1 • 83 m² bez realitkyDistelweg 2, , Brandenbursko
Na približne 83 m² ponúka byt svetlé priestory.
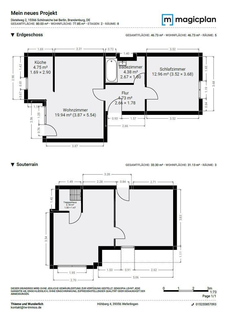
Tento viacerazový byt sa rozprestiera cez 4 pekné izby (prízemie a podzemie), kúpeľňu, samostatnú kuchyňu a halu.
WC je vybavené vaňou.
Ďalšie atrakcie
Vlastná záhrada s priamym vstupom z terasy (27,5 m²):
Súkromné útočisko v zelene pre oddychové chvíle na čerstvom vzduchu – exkluzívne, tiché a priamo pristupné z obývacej časti.
Bez mrazu a bezpečné parkovanie vďaka vlastnému garážovému staniu:
Flexibilita pre vodičov, bez stresu s hľadaním parkovacieho miesta.
Blízkosť MHD so zastávkami električiek a S-Bahn:
S-Bahn a obe električky cca 10-15 minút na bicykli. Perfektné spojenie, ktoré vás rýchlo a pohodlne dostane do mesta a ďalej.
Obchody v blízkosti:
Netto, Aldi a Edeka ako aj výber reštaurácií zaručujú krátke trasy a kulinársku rozmanitosť.
Perfektné spojenie so štátna diaľnicou A10:
Ideálne pre dochádzajúcich do práce alebo na víkendové výlety – nájazd/zjazd je len pár križovatiek ďalej (blízko, ale bez rušenia hlukom).
Energeticky efektívna budova:
Energetická trieda D+ šetrí prevádzkové náklady a chráni životné prostredie – moderné bývanie so zodpovednosťou.
Zaujali sme vás? Kontaktujte nás ešte dnes a dohodnite si prehliadku, kým tento byt opäť nezmizne z trhu!
V jednej z najrodinnsky prívetivejších obytných oblastí Schöneiche, dobre situovanej a napriek tomu pokojnej, sa nachádza tento svetlý 4-izbový byt.
Budova bola postavená v roku 1995 a disponuje výťahom, ktorý zaručuje bezbariérové a prístupné bývanie pre seniorov. Príjemná kvalita bývania je cítiť už pri vstupe do bytu.
- Výťah
- WC s vaňou
- Vyššia kvalita vinylu a laminátu
- Zabudovaná kuchyňa (EBK)
- Garážové stání
Svetlý byt:
Veľké okná zabezpečujú svetlé, príjemné priestory a vytvárajú teplú, prívetivú atmosféru, ktorá zve k oddychu.
Vyštýlizovaná laminátová podlaha (vinylová podlaha v kúpeľni a kuchyni) v dizajne dubového dreva:
Štýlová podlaha dodáva bytu moderný a útulný charakter – odolná a nenáročná na údržbu.
Novo inštalované biele dvere:
Čerstvé a moderné – malý, ale vkusný detail, ktorý dopĺňa celkový dojem.
Rôzne zásuvky v každej izbe:
Viacero zásuviek na maximum flexibility – žiadne predlžovacie káble, ideálne pre domácnosti s modernou technikou a viacerými elektronickými zariadeniami.
Novo natreté radiátory v celom byte:
Nový vzhľad a optimálne rozloženie tepla pre príjemné podnebie v každom ročnom období.
Kvalitná zabudovaná kuchyňa s varnou doskou, digestorom, chladničkou, umývačkou riadu a množstvom denného svetla:
Perfektné pre milovníkov varenia – vychutnajte si štýlové večere alebo praktické každodenné jedlá s kvalitným vybavením.
Ručné kúpelňové radiátory:
Luxusné teplo pre vaše uteráky – malý luxus, ktorý skrášľuje každé ráno.
Stmievaľné LED zrkadlo v kúpeľni:
Individuálne osvetlenie pre pohodové ranné rituály alebo útulnú večernú kúpeľňu.
Vaňa so sprchou:
Užite si relaxačné kúpele alebo komfortnú sprchu – ideálne pre každý moment.
Pripojenie pre práčku v kúpeľni:
Praktické a šetriace miesto – špinavé prádlo dajte priamo pred sprchou do prístroja.
Zavesené WC:
Moderný vzhľad v kombinácii s ľahkou údržbou – hygienické a praktické.
Parametre nehnuteľnosti
| Vek | Nad 50 rokov |
|---|---|
| Stav | Po rekonštrukcii |
| Číslo inzerátu | 990997 |
| Úžitková plocha | 83 m² |
| Dostupné od | 14. 2. 2026 |
|---|---|
| Dispozícia | 4+1 |
| PENB | D - Menej hospodárne |
| Cena za jednotku | 16 € / m2 |
Čo táto nehnuteľnosť ponúka?
| Bezbariérový prístup | |
| Výťah | |
| Terasa |
| Garáž | |
| MHD 5 minút pešo |
V okolí nehnuteľnosti nájdete
Stále hľadáte to pravé?
Nastavte si strážneho psa. Ponuky vybrané na mieru dostanete súhrnne 1× denne e-mailom. S Premium profilom máte po ruke rovno 5 strážcov a keď sa niečo objaví, informujú vás obratom.


















