Predaj bytu 3+kk • 200 m² bez realitkyPforzheim Hohenwart Baden-Württemberg 75181
Príchod. Nádych. Byť doma.
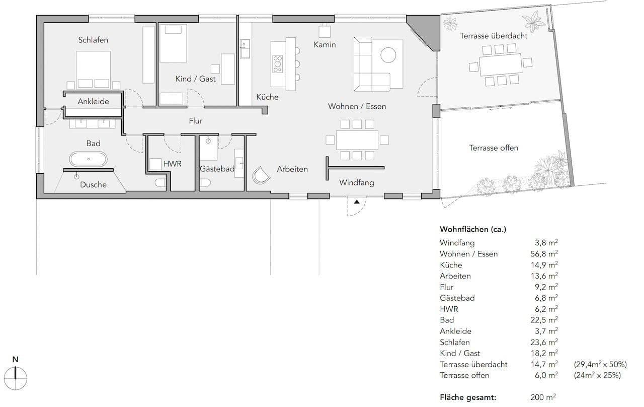
Tento výnimočný loftový byt v prízemí je stvorený pre ľudí, ktorí túžia bývať priestranne, komfortne a v súlade s prírodou – bez toho, aby vzdávali dobré spojenie s mestom a každodennou praktičnosťou.
Prístupom cez dvorovú príjazdovú cestu sa dostanete k zasadenému, pokojne umiestnenému loftu. Po vstupe vlastnými dverami domu sa na približne 200 m² obytného priestoru odhaľuje otvorený, priestranne zalievaný svetlom dizajn s 3-metrovými stropmi, veľkými sklenenými plochami a množstvom priestoru pre individuálny život. Bývanie, stolovanie, varenie aj práca tu plynule prechádzajú jedna do druhej. Krbové kúrenie vytvára príjemnú atmosféru, zatiaľ čo vysoko kvalitné vybavenie zabezpečuje výrazne príjemný pocit zo života.
Všetko na jednej úrovni: Pokojná spálňa s šatníkom a kúpeľňou typu en-suite vytvára súkromný útočiskový priestor. Ďalší priestor s vlastnou sprchou sa ideálne hodí ako izba pre hostí, mládež alebo pracovňa. Samostatná práčovňa dopĺňa premyslený koncept priestoru.
Výnimočným lákadlom je čiastočne prekrytá a chránená terasa – takmer celoročne využiteľná a predstavujúca prirodzené rozšírenie bývania v exteriéri.
Dve autá sa pohodlne zaparkujú v dvojgaráži priamo oproti vstupným dverám domu. Nabíjacia stanica (Wallbox) a fotovoltaická elektráreň podčiarkujú moderný a komfortne orientovaný prístup tohto domova.
Domov pre ľudí, ktorým je životná kvalita dôležitá a ktorí si vedome chcú vychutnávať priestor, pokoj a komfort.
Hohenwart, štvrť južnejšie od Pforzheimu, je tichá, zelená a napriek tomu dobre dostupná. Príroda, turistické a rekreačné možnosti začínajú hneď pri dverách, zatiaľ čo nákupné príležitosti, lekárska starostlivosť aj mestá Pforzheim, Karlsruhe a Stuttgart sú dobre dostupné.
Oblasť sa nachádza idylicky a rodinne priateľsky na okraji Severného Čierneho lesa. Okolie je charakteristické zelenými lúkami, lesmi a idylickými turistickými chodníkmi, ktoré pozývajú na prechádzky a outdoorové aktivity. Rezorty Bad Liebenzell, Bad Wildbad, Bad Herrenalb či Schömberg sú priamo za dverami. Výnimočnosťou, najmä pre golfových nadšencov, je golfový klub Bad Liebenzell, ktorý je autom vzdialený len 15 minút. Matieľská škola, základná škola, dedinský obchod, vidiecky hostinec a „Hohenwart-Forum“ (hotel a kongresové centrum) sa nachádzajú priamo v obci.
Liekári a všetky obchody pre každodenné potreby sa nachádzajú v susedných obciach Huchenfeld, Schellbronn alebo Neuhausen. Všetko je dostupné do približne 10 minút autom. Centrum Pforzheimu je vzdialené len krátku autobusovú či automobilovú jazdu. Ponúka množstvo nákupných príležitostí, reštaurácií, kultúrnych podujatí, športových zariadení ako aj lekárskej starostlivosti všetkých druhov. V obci sú zastúpené všetky typy škôl, vrátane vysokej školy pre podnikanie, techniku a dizajn.
- Súkromie prostredníctvom zasadenej polohy a vlastného vstupu
- Bezbariérové, otvorené a moderné bývanie
- Loftový pocit vďaka výške stropov cca 3 m
- Veľký obývací/jedálenský/kuchynský priestor s dubovým parketom
- Krbový kachlový ohrievač "Hotbox" od značky Wodtke
- Moderná vstavaná kuchyňa s vysoko kvalitnými značkovými spotrebičmi
- Dvojgaráž s Wallboxom pre elektrické auto
- Samostatná kúpeľňa pre hostí so sprchou
- Práčovňa pre práčku a sušičku
- Elektrické žalúzie
- Terasa s veľkou prekrytou a bočne chránenou časťou
- Fotovoltaická elektráreň s výkonom 8,2 kWp
- Skladová kópia o veľkosti 7 m²
Modernizácie:
2010: Základná rekonštrukcia a prestavba na loftový byt
2015: Výmena olejového centrálneho vykurovania za zemný plyn
2021: Rekonštrukcia celej príjazdovej cesty k dvoru a garáži
2021: Prepracovanie terasy (podlahové dosky, priečny steny)
2021: Nové vstupné dvere s vylepšenou tepelnou a vlamačochráňou
2021: Inštalácia Wallboxu v dvojgaráži (11 kW)
2022: Rekonštrukcia kúpeľne pre hostí
2023: Spustenie prevádzky fotovoltaickej elektrárne (8,2 kWp)
Mesačné poplatky:
Pri sume 879 eur mesačne sa môže zdajú byť poplatky na prvý pohľad mierne vysoké. Avšak vzhľadom na priestrannosť bytu predstavujú 4,39 eura/m², čo je v súlade s modernými vlastníckymi bytmi.
Parametre nehnuteľnosti
| Vek | Nad 50 rokov |
|---|---|
| Dispozícia | 3+kk |
| PENB | D - Menej hospodárne |
| Cena za jednotku | 2 925 € / m2 |
| Stav | Dobrý |
|---|---|
| Číslo inzerátu | 990725 |
| Úžitková plocha | 200 m² |
Čo táto nehnuteľnosť ponúka?
| Pivnica | |
| MHD 0 minút pešo |
| Garáž | |
| Terasa |
V okolí nehnuteľnosti nájdete
Stále hľadáte to pravé?
Nastavte si strážneho psa. Ponuky vybrané na mieru dostanete súhrnne 1× denne e-mailom. S Premium profilom máte po ruke rovno 5 strážcov a keď sa niečo objaví, informujú vás obratom.














