
Prenájom bytu 3+1 • 83 m² bez realitkyAm Brüggeberge 14, , Dolné Sasko
Am Brüggeberge 14, , Dolné SaskoMHD 5minút pešo • Výťah • ParkovanieByt 3 – priestranné bývanie pre páry, rodiny a seniorov
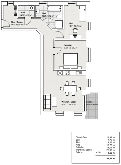
Novostavba ponúka moderný obytný priestor s vysokou kvalitou pobytu. Každý byt má otvorený obývací a jedálenský priestor so susednou kuchyňou, modernú kúpeľňu so sprchou alebo vaňou a jednu až dve prenikavo osvetlené spálne. Okrem toho máte k dispozícii aj praktickú komoru priamo v byte – skutočné plus pre každodenný život a poriadok.
Byty sa nachádzajú v 1. a 2. poschodí a majú priestranné balkóny orientované na juhozápad – ideálne na oddych v zelene. Byty v prízemí disponujú terasami, ktoré na oddych pozývajú.
Vďaka bezbariérovému prístupu, výťahu v budove a nízkym prahom sú nehnuteľnosti ideálne aj pre starších ľudí alebo osoby s obmedzenou mobilitou. Vybavenie je moderné, nenáročné na údržbu a zamerané na príjemné bývanie.
V exteriéri zabezpečujú udržiavané chodníky, prevažne kryté parkovacie miesta s pripravenou infraštruktúrou pre elektromobilitu dodatočný komfort a udržateľnosť.
Fümmelse sa nachádza len niekoľko minút jazdy od centra Wolfenbüttels a zároveň ponúka všetky výhody pokojného obytného prostredia. Okolie tvoria rodinné domy, menšie viacfamilijné objekty a priateľská susedská komunita – ideálne pre rodiny s deťmi a pre ľudí, ktorí si želajú tráviť dôchodok v príjemnej atmosfére.
Všetky dôležité zariadenia sú v bezprostrednej blízkosti:
- Základná škola je dostupná pešo len v niekoľkých minútach
- Materská škola a centrum dennej starostlivosti ASB sa nachádzajú priamo v susedstve
- Hracie ihrisko je oproti nehnuteľnosti – ideálne pre mladé rodiny
- Obchody, lekári a ďalší poskytovatelia služieb sú ľahko dostupní
- Veľmi dobré spojenie s centrom Wolfenbüttels a cestou B79
Vo Fümmelse nájdete pokojnú obytnú lokalitu so všetkými výhodami blízkosti mesta – zasadenú do zelene s vysokou kvalitou života.
Svetlé priestory s modernými dispozíciami
Bezbariérové vstupy a výťah v budove
Moderná kúpeľňa so sprchou alebo vaňou
Komora priamo v byte
Prvý prevádzkový stav, kvalitné podlahové a nástenné obklady
Podlahové kúrenie
Máte záujem? Radi vám zašleme podrobný expozičný materiál so všetkými informáciami o byte, dispozíciách a nájomných podmienkach – stačí nám jednoducho napísať krátku správu.
Parametre nehnuteľnosti
| Vek | Nad 50 rokov |
|---|---|
| Stav | Novostavba |
| Číslo inzerátu | 990433 |
| Cena za jednotku | 13 € / m2 |
| Dostupné od | 1. 4. 2026 |
|---|---|
| Dispozícia | 3+1 |
| Úžitková plocha | 83 m² |
Čo táto nehnuteľnosť ponúka?
| Balkón | |
| Parkovanie | |
| Terasa |
| Výťah | |
| MHD 5 minút pešo |
V okolí nehnuteľnosti nájdete
Stále hľadáte to pravé?
Nastavte si strážneho psa. Ponuky vybrané na mieru dostanete súhrnne 1× denne e-mailom. S Premium profilom máte po ruke rovno 5 strážcov a keď sa niečo objaví, informujú vás obratom.







