Predaj domu 7+1 • 217 m² bez realitkyOll Deep 11, , Dolné Sasko
Oll Deep 11, , Dolné SaskoMHD 1 minúta pešo • Parkovanie • GarážNur wenige Schritte od pobrežia Severného mora vás čaká tento kvalitný, prispôsobený bungalow v masívnej konštrukcii, postavený v roku 2020, v obľúbenom rekreačnom stredisku Bensersiel.
Nehnuteľnosť, ktorá harmonicky spája moderný obytný komfort, dovolenkovú atmosféru a atraktívne možnosti prenájmu.
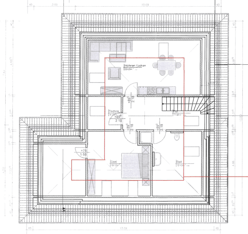
Už pri vstupe vám priestranná chodba dodáva pocit veľkorysosti, štruktúry a kvality.
Premyslený pôdorys ponúka tri komfortné spálne, samostatnú pracovňu aj malú herňu – ideálne pre rodiny aj bývanie viacerých generácií. V prízemí sa nachádza priestranná obývačka, ktorá svojou otvorenosťou a jasom zaujme na prvý pohľad.
Odtiaľ máte priamy prístup k exkluzívnej zimnej záhrade, ktorá osobitým spôsobom rozširuje obytný priestor. Aj z kuchyne je zimná záhrada pohodlne prístupná, čo zabezpečuje krátke vzdialenosti a príjemný pocit z bývania – ideálne pre každodenný život aj návštevy hostí. Výnimočným prvkom vybavenia sú dve kvalitné vstavané kuchyne. Toto riešenie umožňuje jasné oddelenie medzi súkromným obytným priestorom a rekreačným prenájmom. Kúpeľňa v prízemí je vybavená veľkým, bezprahovým sprchovacím kútom, zatiaľ čo hosťovské WC má taktiež sprchu.
Bungalow postavený s ohľadom na potreby starších osôb zaručuje komfortné, bezbariérové bývanie – dnes aj v budúcnosti. Veľká technická miestnosť s kvalitnými vstavanými skriňami poskytuje mimoriadne veľké úložné priestory – poriadok je tu samozrejmosťou. Mimoriadne praktický je aj priamy vstup z garáže do domu. Exkluzívna zimná záhrada sa dá využívať otvorená alebo úplne zatvorená. Ďalším lákadlom je veľká terasa so zábrežnou stenou, ktorá zaručuje súkromie a pohodové chvíle na čerstvom vzduchu.
Dom je vybavený energeticky úsporným plynovým kondenzáciovým kúrením značky Junkers so solárnou podporou (solárny ohrev vody, strešná solárna inštalácia s tromi plochými kolektormi, regulácia podľa počasia). Tým dom spĺňa vysoké nároky na efektívnosť a budúcnosť.
Bensersiel je idylická pobrežná dedinka na severomorskom pobreží východného Frízska a patrí k mestu Esens v okrese Wittmund.
Bensersiel sa vyznačuje veľmi dobrou infraštruktúrou.
Na mieste nájdete obchody pre bežné potreby, pekáreň, reštaurácie, kaviarne, lekárov aj lekáreň.
Rodiny profitujú z predškolských a školských zariadení v blízkosti Esensu. Okrem toho zabezpečujú rekreačné ponuky, ako sú termálne kúpaliská Nordseethermen, ihriská, podujatia a pláže, vysokú atraktivitu pre mladých aj starších.
Dobre situovaná poloha umožňuje výborné spojenie s okolím a susednými mestami.
Kombinácia bývania v blízkosti prírody, turistickej atraktivity a solídnej infraštruktúry ponúka Bensersielu ideálne predpoklady pre súkromných užívateľov aj pre investorov.
- Plynový kondenzáciový ohrievač značky Junkers so solárnou podporou
- Systém na výmenu vzduchu
- Klimatizácia
- Vstavané kuchyne (2x)
- Kvalitné vstavané skrine v technickej miestnosti
Prevzatie dohodou.
Parametre nehnuteľnosti
| Vek | Nad 50 rokov |
|---|---|
| Dispozícia | 7+1 |
| Úžitková plocha | 217 m² |
| Celkové poschodia | 1 |
| Stav | Veľmi dobrý |
|---|---|
| Číslo inzerátu | 990349 |
| Plocha pozemku | 669 m² |
| Cena za jednotku | 3 387 € / m2 |
Čo táto nehnuteľnosť ponúka?
| Bezbariérový prístup | |
| Parkovanie | |
| Terasa |
| Garáž | |
| MHD 1 minúta pešo |
V okolí nehnuteľnosti nájdete
Stále hľadáte to pravé?
Nastavte si strážneho psa. Ponuky vybrané na mieru dostanete súhrnne 1× denne e-mailom. S Premium profilom máte po ruke rovno 5 strážcov a keď sa niečo objaví, informujú vás obratom.



























