Prenájom bytu 3+1 • 95 m² bez realitkyPetersstrasse 23, , Sasko
Petersstrasse 23, , SaskoMHD 3 minúty pešo • VýťahBývajte tam, kde sa píše história! Táto impozantná obytná a obchodná budova z roku 1640 je skutočným freibergským originálom. Historická památka bola v roku 1997 komplexne a s láskou zrekonštruovaná do najzákladnejšej podoby, aby sa historický charakter skombinoval s moderným obytným štandardom.
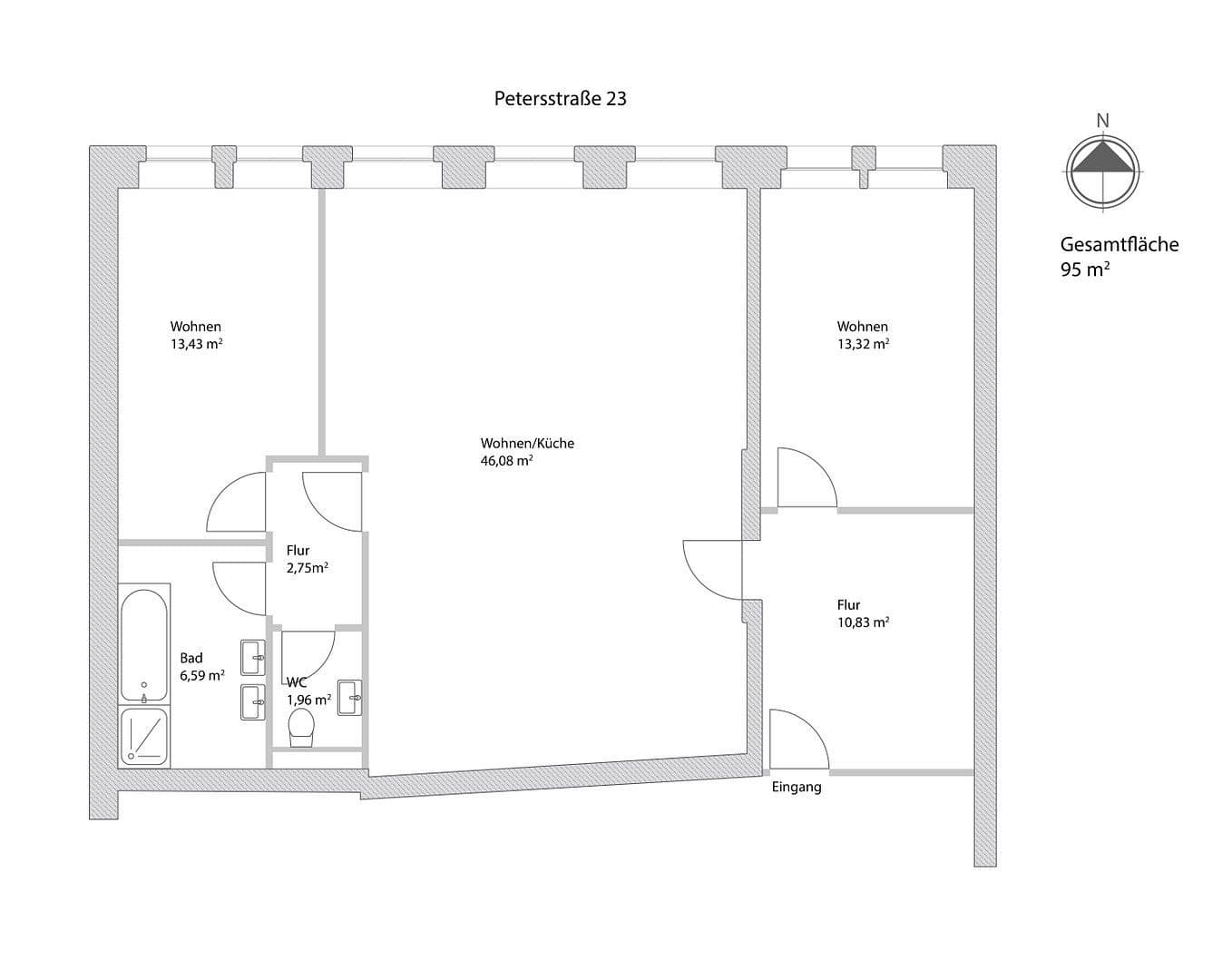
Tento svetlý 3-izbový byt na druhom poschodí prednej časti budovy bol nedávno čerstvo zrekonštruovaný a je ihneď k dispozícii. Budova ponúka 14 obytných jednotiek a na prízemí sa nachádzajú dve pokojné obchodné jednotky.
Na približne 95 m² ponúka byt jedinečný pocit bývania vďaka kombinácii historickej podstaty a priestranného dispozície:
- Svetlé centrum: Rozľahlá, otvorená obytná a kuchynská časť je srdcom bytu. Vďaka množstvu veľkých okien je priestor pre historickú budovu mimoriadne svetlý a ponúka veľa miesta pre individuálne usporiadanie kuchyne.
- Miesta na oddych: Malý prechodový priestor múdro oddeľuje živú obývaciu časť od spálne a kúpeľňových priestorov. Ďalšia izba (detská alebo pracovňa) je priamo prístupná z hlavného chodby.
- Komfortná kúpeľňa: Kúpeľňa je vybavená vaňou a sprchou. Samostatná návštevná toaleta s umývadlom poskytuje dodatočné pohodlie v každodennom živote.
- Výbava: Obytné priestory majú udržiavanú laminátovú podlahu. Vlastná komora na poschodí ponúka praktické úložné miesto priamo pred dverami bytu.
Byt zaujme svojou skvelou polohou v centre Freibergu. Horný trh, univerzita ako aj množstvo kaviarní, reštaurácií a obchodov sú iba pár krokov vzdialené. Napriek centrálnej polohe poskytuje mohutné múrové prevedenie památky príjemný pokoj a jedinečnú atmosféru. Bývate tam, kde je Freiberg najkrajší.
- Obytná plocha: cca 96 m²
- Izby: 3
- Poschodie: 2. poschodie (predná časť budovy)
- Stav: Čerstvo zrekonštruovaný
- Dostupnosť: Ihneď k dispozícii
Parametre nehnuteľnosti
| Vek | Nad 50 rokov |
|---|---|
| Stav | Po rekonštrukcii |
| Poschodie | 2. poschodie z 4 |
| Úžitková plocha | 95 m² |
| Dostupné od | 14. 2. 2026 |
|---|---|
| Dispozícia | 3+1 |
| Číslo inzerátu | 990261 |
| Cena za jednotku | 7 € / m2 |
Čo táto nehnuteľnosť ponúka?
| Výťah |
| MHD 3 minúty pešo |
V okolí nehnuteľnosti nájdete
Stále hľadáte to pravé?
Nastavte si strážneho psa. Ponuky vybrané na mieru dostanete súhrnne 1× denne e-mailom. S Premium profilom máte po ruke rovno 5 strážcov a keď sa niečo objaví, informujú vás obratom.












