Predaj domu 6+1 • 200 m² bez realitkyNiederwihl 95, , Bádensko-Wurttembersko
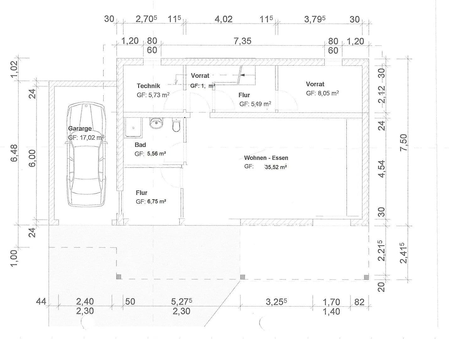
Niederwihl 95, , Bádensko-WurttemberskoMHD 3 minúty pešo • Parkovanie • GarážTento príjemný rodinný dom ponúka s približne 200 m² obytného priestoru a veľkorysým pozemkom o rozlohe 713 m² ideálne predpoklady pre pohodlné bývanie. Nehnuteľnosť sa nachádza v pokojnej lokalite Görwihl-Niederwihl a zaujme premysleným rozložením miestností a rôznymi možnosťami využitia – ideálna pre rodiny, viacgeneračné bývanie alebo ako pohodová letná rezidencia.
Výnimočným lákadlom je samostatne prístupný byt, ktorý sa výborne hodí ako rekreačný byt, hostinský priestor alebo na dlhodobý prenájom. Tým získate dodatočnú flexibilitu a atraktívne možnosti využitia.
Pozemok sa nachádza v atraktívnej svahovej polohe a rozprestiera sa na dvoch úrovniach, čo dáva vonkajšej ploche zvláštnu štruktúru a priestrannosť. Horná úroveň je ideálna pre terasu, záhradu alebo útulné oddychové zóny, zatiaľ čo dolná úroveň poskytuje ďalší priestor pre voľnočasové aktivity, hru alebo individuálne nápady na úpravu. Tým vzniká pestrá vonkajšia plocha s veľkým potenciálom.
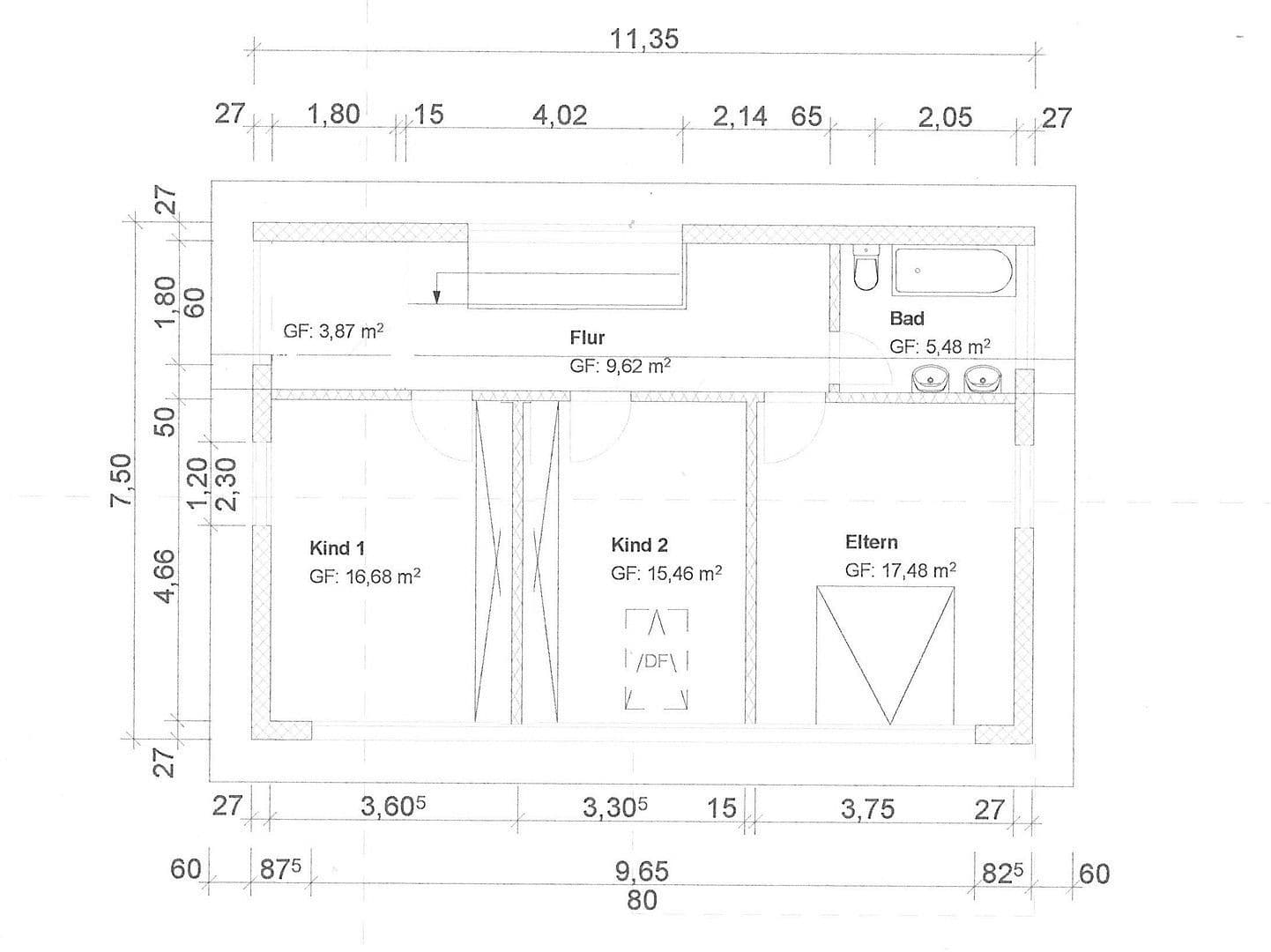
Na celkovo troch poschodiach vás čaká 6 dobre usporiadaných izieb a 3 kúpeľne, ktoré ponúkajú vysoký komfort bývania. Návštevnícke WC rozširuje priestorové možnosti, pričom podkrovie poskytuje ďalší úložný priestor a prakticky rozširuje využiteľnú plochu.
Interiérové vybavenie je udržiavané a ponúka solídnu základňu pre realizáciu vlastných predstáv a želaní na modernizáciu. Veľké okná zabezpečujú svetlé a priateľské priestory a vytvárajú príjemnú atmosféru.
Odovzdanie je možné okamžite.
Dom s veľkým šarmom, priestorom a potenciálom – ideálny pre všetkých, ktorí hľadajú všestranný domov s možnosťou dodatočného prenájmu.
Görwihl je vidieckou obcou v okrese Waldshut a ponúka pokojné bývanie v prírode s vysokou hodnotou pre oddych. Okolitá krajina láka na rozmanité voľnočasové aktivity ako turistika, cyklistika a dlhé prechádzky.
Zabezpečenie základných potrieb je zaručené vďaka obchodom každodennej potreby v blízkom okolí. Okrem toho existuje aj dobré napojenie na verejnú dopravu: miestne autobusové linky spoľahlivo spájajú Görwihl s okolnými obcami a regiónnymi centrami.
Výhodou je aj blízkosť k švajčiarskej hranici, ktorá sa nachádza len približne 8 km od nehnuteľnosti. Tým získate krátke cesty do Švajčiarska – ideálne pre dochádzanie do práce alebo voľnočasové aktivity v susednej krajine.
Ako v hlavnej obytná časti, tak aj v samostatnom byte, je k dispozícii moderná zabudovaná kuchyňa.
Pre útulnú atmosféru v oboch jednotkách zabezpečujú vysoko kvalitné drevené krbové kamíny, ktoré v chladných dňoch poskytujú príjemné teplo a dodávajú obytným priestorom príjemný charakter.
Ďalším plusom je existujúce optické pripojenie, ktoré zabezpečuje rýchle a stabilné internetové pripojenie – ideálne pre prácu z domu, streaming alebo digitálny prenájom samostatného bytu.
Parametre nehnuteľnosti
| Vek | Nad 50 rokov |
|---|---|
| Dispozícia | 6+1 |
| PENB | D - Menej hospodárne |
| Plocha pozemku | 713 m² |
| Cena za jednotku | 2 850 € / m2 |
| Stav | Dobrý |
|---|---|
| Číslo inzerátu | 990005 |
| Úžitková plocha | 200 m² |
| Celkové poschodia | 3 |
Čo táto nehnuteľnosť ponúka?
| Balkón | |
| Garáž | |
| MHD 3 minúty pešo |
| Pivnica | |
| Parkovanie | |
| Terasa |
V okolí nehnuteľnosti nájdete
Stále hľadáte to pravé?
Nastavte si strážneho psa. Ponuky vybrané na mieru dostanete súhrnne 1× denne e-mailom. S Premium profilom máte po ruke rovno 5 strážcov a keď sa niečo objaví, informujú vás obratom.

















