Prenájom kancelárie • 215 m² bez realitky, Bavorsko
, BavorskoMHD 1 minúta pešo • ParkovanieV našej udržiavanej obchodnej budove v 97249 Eisingen prenajímame od 01.06.26 svetlý, klimatizovaný obchodný priestor v prízemí s celkovou plochou 215,87 m². Priestor je prenajímaný nanehusto, bez vybavenia.
Dôrazne sa uprednostňuje dlhodobý prenájom.
Budovu využíva stredne veľká, rodinne riadená elektrofirma, čo zabezpečuje pokojné a profesionálne prostredie pre podnikateľov.
Obchodný priestor je výborný pre kancelárske, advokátske, lekárske, poradenské alebo IT využitie, ako aj pre podobné služby orientované koncepty.
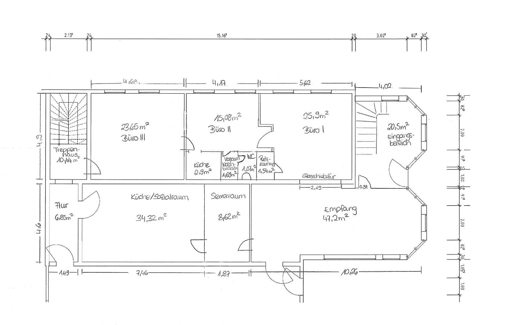
Priestor sa rozdeľuje nasledovne:
• Kancelária I: 25,90 m²
• Kancelária II: 15,08 m² (s integrovanou kuchynkou)
• Kancelária III: 23,65 m²
• Recepcia: 47,20 m²
• Oddychová/a využívaná miestnosť alebo ďalší kancelársky priestor: 34,32 m²
• Serverovňa: 8,62 m²
• WC s umývadlom a samostatný čistiaci/skladový priestor pri Kancelárii I/Kancelárii II
• Ďalšie WC v suteréne – veľké: 6,09 m²
• Archív v suteréne: 25,41 m²
• Spoločné priestory (chodba, schodisko, vstup): 29,60 m²
Miestnosti sú vo veľmi udržiavanom stave, priesvitné a klimatizované. K inzerátu je priložený aj pôdorys, podľa ktorého je rozloženie miestností dobre čitateľné.
Nájomné podmienky:
• Čistý nájom: 9,80 € / m²
• Poplatky: 3,00 € / m² (vrátane vykurovania, plus elektrina)
Parkovacie možnosti:
• Až 5 parkovacích miest na areáli firmy (plus 30 € za parkovacie miesto)
• Voliteľne s nabíjacou stanicou pre elektromobily (plus 35 € za parkovacie miesto)
Priestor je ideálny pre kancelárske, lekárske alebo služby orientované využitie.
Parametre nehnuteľnosti
| Dostupné od | 1. 6. 2026 |
|---|---|
| Číslo inzerátu | 989604 |
| Cena za jednotku | 10 € / m2 |
| Stav | Dobrý |
|---|---|
| Plocha kancelárie | 215 m² |
Čo táto nehnuteľnosť ponúka?
| Pivnica | |
| MHD 1 minúta pešo |
| Parkovanie |
V okolí nehnuteľnosti nájdete
Stále hľadáte to pravé?
Nastavte si strážneho psa. Ponuky vybrané na mieru dostanete súhrnne 1× denne e-mailom. S Premium profilom máte po ruke rovno 5 strážcov a keď sa niečo objaví, informujú vás obratom.


















