
Predaj bytu 4+1 • 107 m² bez realitkyBorkumerstr.1 Wiesbaden Wiesbaden Hessen 65199
Borkumerstr.1 Wiesbaden Wiesbaden Hessen 65199MHD 3 minúty pešo • GarážExkluzívny, veľmi svetlý, 4-izbový mezoneta byt v pokojnej a rodinne prívetivej lokalite vo Wiesbadene.
Štýlový byt so svojou premyslenou dispozíciou sa prezentuje vo vynikajúcom stave.
V treťom poschodí veľmi upravovanej obytného komplexu z roku 1994 sa nachádza tento klenot.
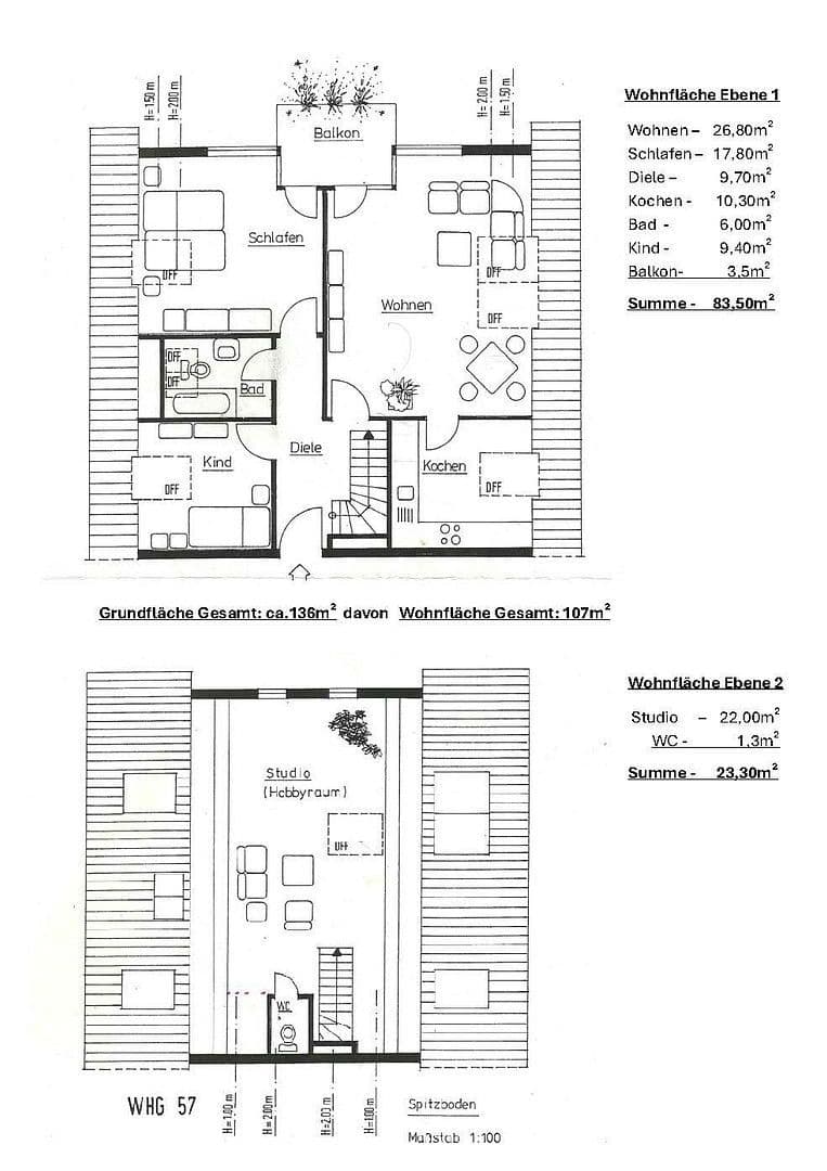
Byt má základnú plochu cca 136 m² s obytnou plochou cca 107 m², ktorá je rozdelená na dve úrovne.
V dolnej časti sa nachádza cca 45 m² veľká obývacia a jedálenská miestnosť s otvorenou kuchyňou a prístupom na balkón, dve spálne – z toho jedna taktiež s prístupom na balkón – a úžasná kúpeľňa s denným svetlom, pričom v hornej časti je navyše úžasné štúdio s oddeleným WC.
Byt je veľmi svetlý a ponúka nádherný výhľad do všetkých strán.
Podlahové krytiny v obytných priestoroch sú vyrobené z robustných a kvalitných materiálov, zatiaľ čo vstupná hala, kúpeľňa s denným svetlom so sanitárnymi zariadeniami od Villeroy & Boch a WC na hornom podlaží sú obložené dlažbou.
V roku 2023 boli inštalované prémiové klimatizačné zariadenia, takže počas letných mesiacov panuje príjemné bývanie, pričom zariadenie tiež zabezpečuje vykurovanie počas zimných mesiacov.
V tomto súvislosti bol aj balkón vylepšený – boli nainštalované nové podlahové krytiny a kvalitná značka krytia.
Kvalitná vstavaná kuchyňa so modernými Siemens spotrebičmi nie je zahrnutá v kúpnej cene.
Byt je vykurovaný diaľkovým teplom.
Okrem neho patrí aj pivnica s cca 12 m² a možnosť spoločného využívania miestnosti na bicykle a práčovňu.
Mesačný poplatok za domové služby je 427 €.
Bytové spoločenstvo je veľmi udržiavané, bez akéhokoľvek meškania v údržbe, pričom rezervy sú nadpriemerne naplnené, takže je nehnuteľnosť vynikajúco pripravená na budúce modernizačné opatrenia.
Podzemné parkovacie miesto s elektrickým pripojením (napr. na nabíjanie elektromobilov) dopĺňa túto nehnuteľnosť – kúpna cena 20 000 €.
Základné údaje na prvý pohľad:
• Obytná plocha: cca 107 m² /+ využiteľná plocha: cca 29 m²
• Dispozícia: 4 izby, kuchyňa, kúpeľňa, balkón
• Poschodie: 3. poschodie
• Rok výstavby: 1994
• Dátum nasťahovania: podľa dohody
Extra / Špecifiká:
• Kvalitná vstavaná kuchyňa (Siemens spotrebiče)
• Moderné a vysoko kvalitné vybavenie
• Prístup na balkón z dvoch izieb
• Kompletná klimatizácia (chladenie/ vykurovanie)
• Krytý balkón s novou podlahou
• Veľká pivnica
• Podzemné parkovacie miesto vrátane elektrického pripojenia
• Príjemné a priateľské susedstvo
• Výborná lokalita
• Byt s nízkou energetickou náročnosťou (pozri energetický preukaz)
• Bez provízie pre kupujúceho
Parametre nehnuteľnosti
| Vek | Nad 50 rokov |
|---|---|
| Dispozícia | 4+1 |
| Číslo inzerátu | 989593 |
| Cena za jednotku | 4 196 € / m2 |
| Stav | Dobrý |
|---|---|
| Poschodie | 3. poschodie z 3 |
| Úžitková plocha | 107 m² |
Čo táto nehnuteľnosť ponúka?
| Balkón | |
| Garáž |
| Pivnica | |
| MHD 3 minúty pešo |
V okolí nehnuteľnosti nájdete
Stále hľadáte to pravé?
Nastavte si strážneho psa. Ponuky vybrané na mieru dostanete súhrnne 1× denne e-mailom. S Premium profilom máte po ruke rovno 5 strážcov a keď sa niečo objaví, informujú vás obratom.











