Prenájom bytu 5+1 • 114 m² bez realitkyAm Buchenbaum 21 Duisburg Dellviertel Nordrhein-Westfalen 47051
Am Buchenbaum 21 Duisburg Dellviertel Nordrhein-Westfalen 47051MHD 2 minúty pešo • VýťahSlnnečný byt v spoločnej domácnosti (WG) v absolútne centrálnej, ale zároveň veľmi tichej lokalite s neprekážaným výhľadom. Rozsiahla rekonštrukcia v roku 2023. Vhodný pre až 4 osoby. Bytový aj obchodný dom, niekoľko spoločných bytov v budove, príjemní nájomníci. Dobrá dostupnosť verejnej dopravy. Parkovacie miesto pred domom je možné prenajať na mesačnej báze (prostredníctvom externého poskytovateľa).
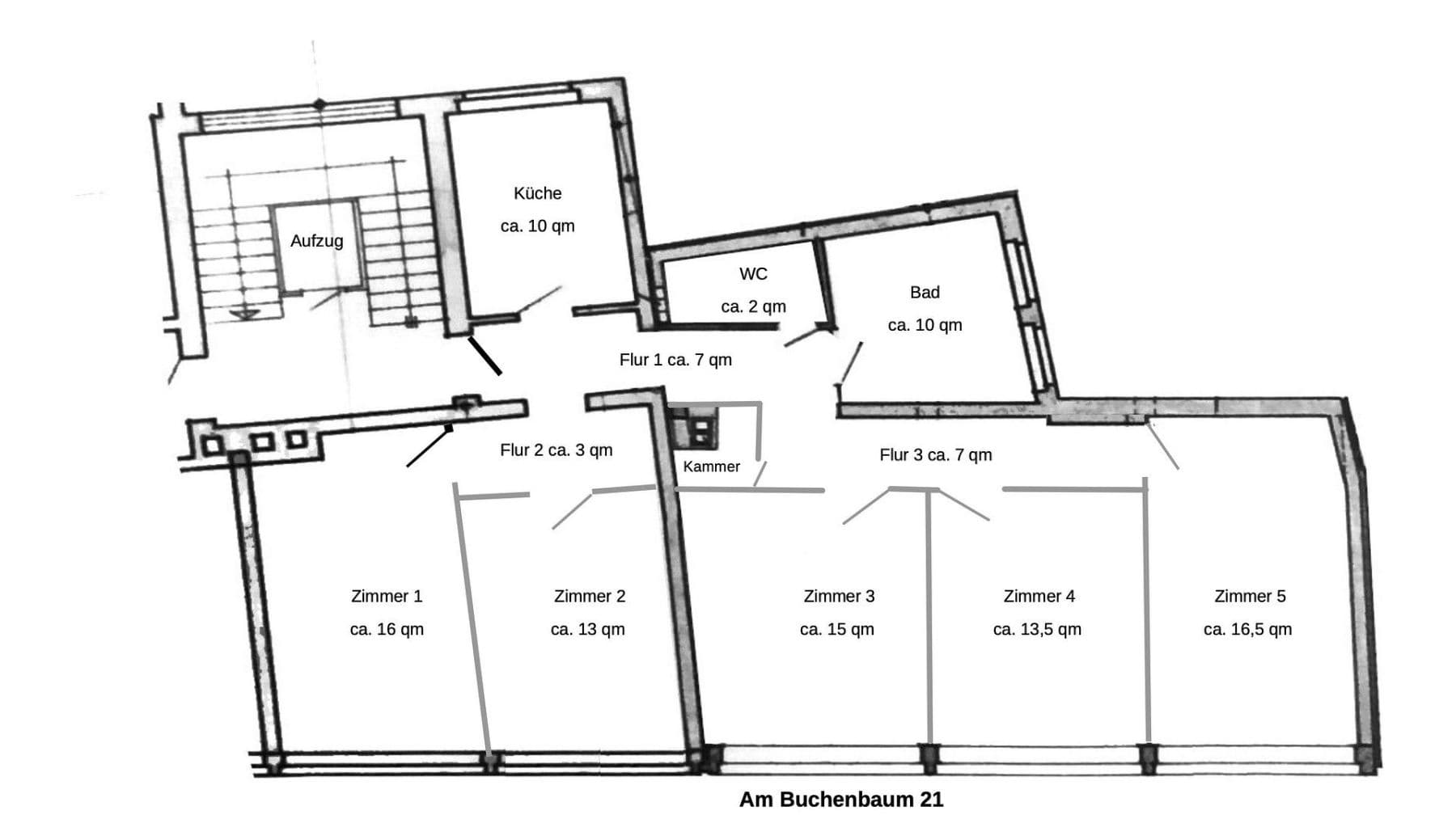
4 spálne
1 spoločenská miestnosť
Kuchyňa
Kúpeľňa so sprchou
Samostatná toaleta
Úložná izba
Pivnica
Úložisko bicyklov na dvore
Centrálne umiestnený na zadnej strane peších zón Königstraße.
5 minút do hlavnej stanice s prístupom k DB, k regionálnym expresným a regionálnym vlakovým linkám (cestovná doba napríklad do Düsseldorfu: 17 min.), ako aj k S-Bahn Rhein-Ruhr a MHD Duisburg.
Vjazd na diaľnicu priamo pred hlavným nádražím. Voľná plocha s parkovacími možnosťami (prenájom na mesačnej alebo ročnej báze) priamo pred budovou alebo možnosť využitia podzemnej garáže na Königstraße.
Parkety
Dlažba
Kúpeľňu s oknom
Veľká sprchovňa
Samostatná toaleta
Úložná izba
Pivnica
Výtah
Úložisko bicyklov na dvore
Ústredné kúrenie
Diaľkové teplo
Univerzity/Vysoké školy:
Duisburg – lokalita Folkwang Universität der Künste, Universität Duisburg-Essen, Hochschule für Polizei und öffentliche Verwaltung Nordrhein-Westfalen (HSPV.NRW), Internationale Hochschule (IU) / študijné centrum Duisburg, FOM Hochschule / študijné centrum Duisburg
Kultúra/voľný čas:
Múzeum Lehmbruck a Immanuel-Kant park so sochárskou záhradou, cubus kunsthalle, múzeum DKM, múzeum Küppersmühle pre moderné umenie, „Deutsche Oper am Rhein“ v mestskom divadle, Philharmonie Mercatorhalle, filmforum, UCI, The Game Box
Nákupy:
Farmársky trh 3× týždenne v pešej zóne, rôzne maloobchodné obchody, Forum Duisburg
Parametre nehnuteľnosti
| Vek | Nad 50 rokov |
|---|---|
| Stav | Po rekonštrukcii |
| Poschodie | 3. poschodie z 4 |
| PENB | D - Menej hospodárne |
| Cena za jednotku | 8 € / m2 |
| Dostupné od | 1. 5. 2026 |
|---|---|
| Dispozícia | 5+1 |
| Číslo inzerátu | 989206 |
| Úžitková plocha | 114 m² |
Čo táto nehnuteľnosť ponúka?
| Pivnica | |
| MHD 2 minúty pešo |
| Výťah |
V okolí nehnuteľnosti nájdete
Stále hľadáte to pravé?
Nastavte si strážneho psa. Ponuky vybrané na mieru dostanete súhrnne 1× denne e-mailom. S Premium profilom máte po ruke rovno 5 strážcov a keď sa niečo objaví, informujú vás obratom.













