
Prenájom bytu 2+1 • 52 m² bez realitkyGeorg-Wilhelmstr. 218 Hamburg Wilhelmsburg Hamburg 21107
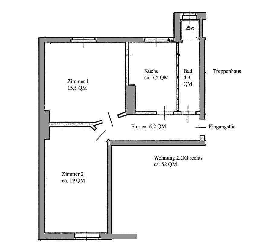
Georg-Wilhelmstr. 218 Hamburg Wilhelmsburg Hamburg 21107MHD 1 minúta pešoSvetlý 2-izbový byt v 2. poschodí je kompaktný a dobre rozdelený. Podlahová krytina izieb tvorí dobre zachovalé dosky z masívneho dreva. Časť kúpeľne so sprchou bola zrekonštruovaná.
Tento objekt predstavuje dobre udržiavaný viacrodinný dom s komunitnou záhradou orientovanou na východ.
Inselpark, ktorý sa nachádza v bezprostrednej blízkosti, je blízkym rekreačným územím. (2 jazerá, športové možnosti a veľa prírody.)
V súčasnosti sa pred domom vytvárajú nové cyklotrasy. Práce budú pravdepodobne dokončené v marci 2026.
- Autobusové zastávky 200 m od bytu
- Pošta a kiosok za roh
- Inselpark za roh (2 jazerá v blízkosti)
- Športovacie možnosti, viz vyššie, pešo
- Dobrodružné ihrisko za roh
- Materské školy, školy a dobré nákupné možnosti v blízkom okolí
- So S-Bahn 10 minút na hlavnom nádraží
- Veľa kultúrnych ponúk a scénických gastronomických podnikov, napr. v Reiherstiegsviertel
- Nádherné cyklotrasy a vodné cesty
Wilhelmsburg - bývanie na zelenej Labej ostrove!
Od Medzinárodnej výstavby a záhradnej výstavy v roku 2013 Wilhelmsburg neustále rastie a je veľmi atraktívny pre bývanie aj prácu. Mnoho mladých rodín a študentov tu nachádza možnosť rozvoja s množstvom priestoru a prírody. Priamo pri S-Bahn sa nachádzajú najmodernejšie budovy a športoviská (plavecká hala, skatepark, lezecká hala, lezecký park a oveľa viac).
!!! NÁJOMNÁ SPRÁVA JE NEVYHNUTNÁ.
Dokument: Mieterauskunft.pdf, prosím, odošlite na e-mail vermietung@s8iv.de. Kontaktujeme vás. Ďakujeme!
Parametre nehnuteľnosti
| Vek | Nad 50 rokov |
|---|---|
| Stav | Po rekonštrukcii |
| Poschodie | 3. poschodie z 1 |
| PENB | E - Nehospodárne |
| Cena za jednotku | 16 € / m2 |
| Dostupné od | 12. 2. 2026 |
|---|---|
| Dispozícia | 2+1 |
| Číslo inzerátu | 989014 |
| Úžitková plocha | 52 m² |
Čo táto nehnuteľnosť ponúka?
| MHD 1 minúta pešo |
V okolí nehnuteľnosti nájdete
Stále hľadáte to pravé?
Nastavte si strážneho psa. Ponuky vybrané na mieru dostanete súhrnne 1× denne e-mailom. S Premium profilom máte po ruke rovno 5 strážcov a keď sa niečo objaví, informujú vás obratom.













