
Prenájom bytu 2+1 • 80 m² bez realitky, Dolné Sasko
Dom bol zateplený v roku 2008 podľa požiadaviek KfW a proKlima a je pripojený na diaľkové kúrenie.
Dopravne pokojná lokalita v blízkosti mestského lesa Eilenriede so širokou ponukou nákupných možností a reštaurácií. Zastávka električky je dostupná do 5 minút. Centrum (železničná stanica) je dostupné na bicykli približne do 15 minút.
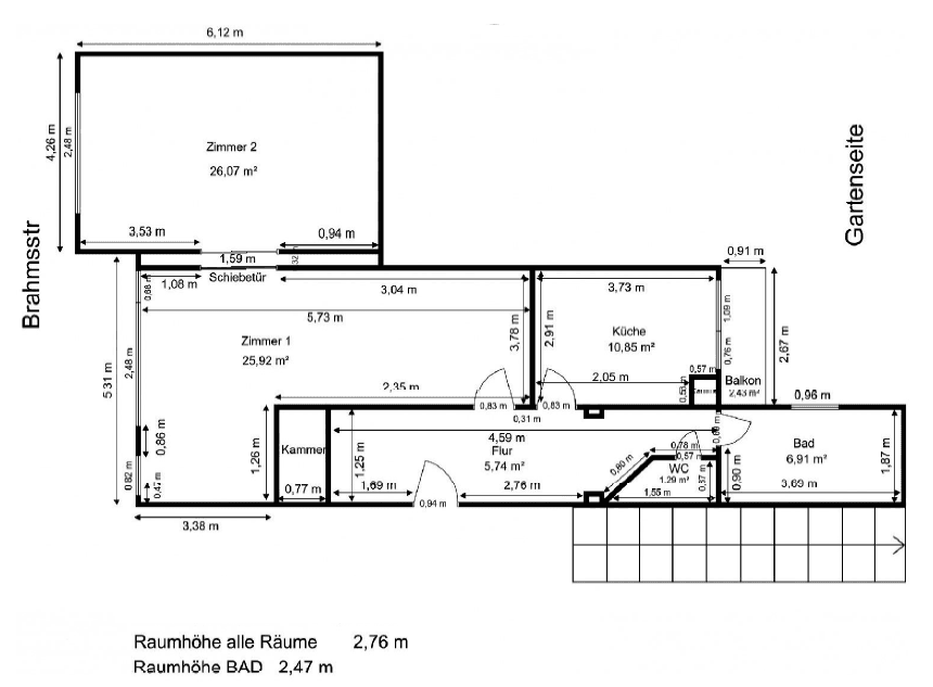
Kúpeľňa so sprchou, samostatné WC pre hostí, kuchyňa s juhozápadne orientovaným balkónom.
Uvedené ceny prenájmu sú uvedené pre 1 osobu; za každú ďalšiu osobu sa k nájomnému (vrátane teplej vody a odvozu odpadu) momentálne pripisuje 25,00 €, pričom do nájomného je zahrnutá aj údržba schodiska, ale káblová televízia nie.
Energetické náklady (iba za elektrinu) a náklady na kúrenie (ako odhad kúrenia voči Mestským podnikom Hannover) hradí nájomca sám.
V nájomnej zmluve sa dohodne minimálna doba prenájmu 2 roky.
Parametre nehnuteľnosti
| Vek | Nad 50 rokov |
|---|---|
| Stav | Po rekonštrukcii |
| Číslo inzerátu | 988731 |
| Úžitková plocha | 80 m² |
| Dostupné od | 7. 2. 2026 |
|---|---|
| Dispozícia | 2+1 |
| PENB | C - Hospodárne |
| Cena za jednotku | 14 € / m2 |
Čo táto nehnuteľnosť ponúka?
| Balkón | |
| MHD 7 minút pešo |
| Pivnica |
V okolí nehnuteľnosti nájdete
Stále hľadáte to pravé?
Nastavte si strážneho psa. Ponuky vybrané na mieru dostanete súhrnne 1× denne e-mailom. S Premium profilom máte po ruke rovno 5 strážcov a keď sa niečo objaví, informujú vás obratom.










