Predaj domu • 267 m² bez realitky, Bádensko-Wurttembersko
, Bádensko-WurttemberskoMHD 1 minúta pešo • Parkovanie • GarážTento exkluzívny rodinný dom s obytnou plochou cca 267 m² na veľkorysom pozemku s rozlohou približne 790 m² bol postavený v roku 1979 a v roku 1996 rozšírený o zimnú záhradu. Vrátane pivnice a hospodárskych priestorov dosahuje dom využiteľnú plochu 405 m². V roku 2014 prebehla inštalácia modernej tepelnej pumpy a rekonštrukcia balkónov. Nachádza sa vo veľmi udržiavanom stave.
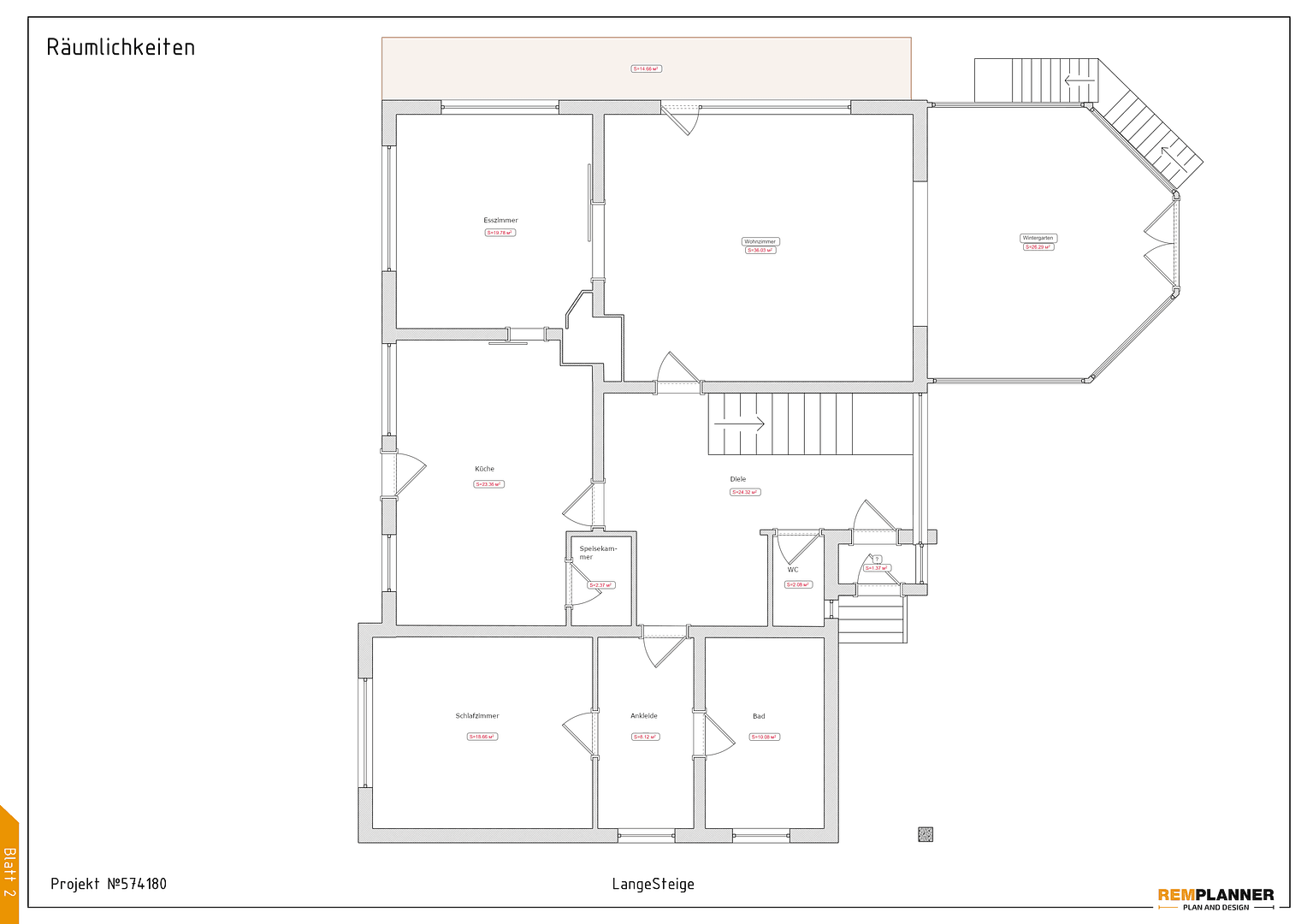
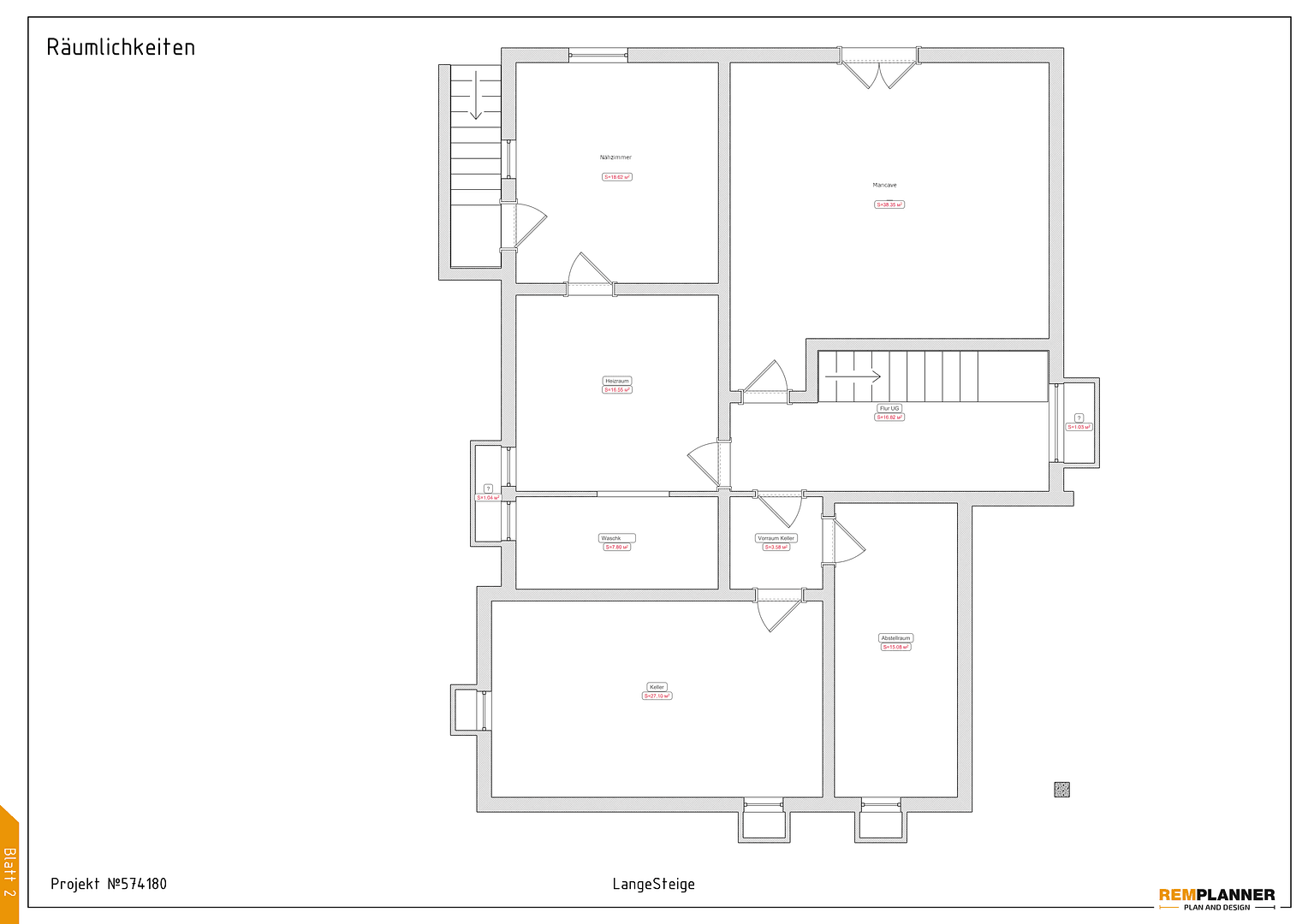
Dom sa rozprestiera cez tri poschodia a ponúka celkovo 13 izieb, dve kúpeľne a dodatočné hosťovské WC. Obývacia časť je vybavená elegantnými mramorovými podlahami a dom je úplne s pivnicou.
Pre vozidlá je k dispozícii dvojgaráž, prístrešok (carport) s ďalšími dvoma krytými parkovacími miestami a jeden dodatočný vonkajší parkovací priestor.
Kúrenie sa zabezpečuje prostredníctvom tepelnej pumpy v kombinácii s podlahovým kúrením; doplnkovo zabezpečujú dva kachlové pece príjemné teplo.
Energetický preukaz (spotrebný preukaz) z 14.06.2025 vykazuje konečnú energetickú spotrebu 148,05 kWh/(m²*a) a energetickú triedu E.
Objekt je k dispozícii ihneď.
Rodinný dom sa nachádza v Calw, očarujúcom mestečku v severnom Čiernom lese. Poloha v Calw ponúka vynikajúcu infraštruktúru – v blízkosti sa nachádzajú obchody, lekári a školy. Okolie láka na rekreačné aktivity v prírode, ako sú turistika alebo cyklotúry v Čiernom lese. Dobrá dostupnosť verejnou dopravou zabezpečuje ľahký prístup.
Dom samotný sa nachádza na polovičnej nadmorskej výške priamo v Calw a pekne leží pri malom potoku.
Infraštruktúra (v okruhu 5 km):
– Lekáreň, potravinový diskont, praktický lekár, materská škola, základná škola, Hauptschule, gymnázium, nemocnica, stanica
2 balkóny, terasa, záhrada, vaňa, sprchová kúpeľňa, vstavaná kuchyňa, hosťovské WC, 2 kachlové pece, mramor, parkety, dlaždice.
Poznámky:
• Rok výstavby 1979, zimná záhrada – prístavba 1997
• Posledná rekonštrukcia 2014 (tepelná pumpa, rekonštrukcia balkónov)
• 267 m² obytná plocha, 405 m² využiteľná plocha na 3 poschodiach
• Vnútorné dvere: dubové masívne a extra široké v prízemí
• Podlahové kúrenie v celom dome
• Podlahové krytiny: mramor, parkety
• Mnoho stolárskych prác
• 2 kachlové pece – jedna v obývacej časti, druhá v suteréne (obe vykurovacie vložky je potrebné vymeniť, ak sa budú využívať, pretože nie sú v súlade s normou BImSchV stupeň 2)
• Elektrické rolety
• Záhrada: niekoľko ovocných stromov pod domom, za ním zeleninová záhrada
• Parkovanie: dvojgaráž, 2 parkovacie miesta pod prístreškom (carport), 1 ďalšie parkovacie miesto
Parametre nehnuteľnosti
| Vek | Nad 50 rokov |
|---|---|
| Stav | Dobrý |
| PENB | E - Nehospodárne |
| Plocha pozemku | 790 m² |
| Cena za jednotku | 3 670 € / m2 |
| Dostupné od | 23. 2. 2026 |
|---|---|
| Číslo inzerátu | 988711 |
| Úžitková plocha | 267 m² |
| Celkové poschodia | 3 |
Čo táto nehnuteľnosť ponúka?
| Balkón | |
| Garáž | |
| MHD 1 minúta pešo |
| Pivnica | |
| Parkovanie | |
| Terasa |
V okolí nehnuteľnosti nájdete
Stále hľadáte to pravé?
Nastavte si strážneho psa. Ponuky vybrané na mieru dostanete súhrnne 1× denne e-mailom. S Premium profilom máte po ruke rovno 5 strážcov a keď sa niečo objaví, informujú vás obratom.























