Predaj domu 7+1 • 153 m² bez realitky, Severné Porýnie - Westfálsko
, Severné Porýnie - WestfálskoMHD 1 minúta pešo • ParkovanieCharmantný obytný ansámbl s investičným potenciálom: Veľkorysá dvojdomov s prístavbou bytu
Táto výnimočná nehnuteľnosť v Geldern-Vernum spája historický šarm budovy z prelomu storočí s modernou funkčnosťou a rozmanitými možnosťami využitia. Na rozľahlej parcele s rozlohou cca 1 055 m² ponúka tento udržiavaný objekt atraktívny domov a zároveň vynikajúcu investičnú príležitosť.
Architektúra & rekonštrukcia
Pôvodne postavená okolo roku 1900, budova bola počas rokov dôkladne a s láskou udržiavaná. Najvýznamnejšie je spomenúť celkovú rekonštrukciu v roku 2002, renováciu v roku 2015 a najnovšie úpravné práce v roku 2023. Masívna konštrukcia so vzduchom cirkulujúcim za obkladovým murovaním a modernou tepelnou izoláciou zabezpečuje príjemné bývanie a aktuálne energetické štandardy (energetická trieda D).
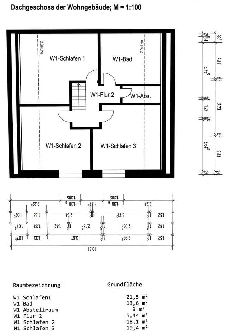
Premyslené rozdelenie priestoru na dve obytné jednotky
Nehnuteľnosť má celkovú obytnú plochu cca 153 m² a približne 167,6 m² využiteľnej plochy, rozdelenú do dvoch samostatných jednotiek:
• Hlavný byt (W1): So 5 izbami na cca 104 m² ponúka táto jednotka veľkorysý priestor pre rodinu. V prízemí sa nachádza útulný obývací a jedálenský priestor, toaletka pre hostí a kuchyňa. Nadstavba obsahuje tri spálne, kúpeľňu a praktickú práčovňu. Dodatočne vysúvateľné schody na pôdorys umožňujú prístup k ďalším úložným priestorom.
• Prístavbový byt (W2): Tento moderný 2-izbový byt s rozlohou cca 43 m² bol prerobený v roku 2023 a je plne zariadený. Disponuje kombinovaným obývaco-jedálenským a kuchynským priestorom, samostatnou spálňou a novou kúpeľňou.
Vybavenie & vonkajšie priestory
Objekt zaujme vďaka udržiavanému základnému vybaveniu.
• Pohodová atmosféra: V roku 2024 novo inštalovaný krb zabezpečuje útulné chvíle a spĺňa najmodernejšie environmentálne požiadavky.
• Vonkajší priestor: Nehnuteľnosť s množstvom ovocných stromov je rajom pre milovníkov pobytu vonku. Celkovo štyri terasy (z toho tri kryté) ponúkajú v každej dennej dobe ideálny priestor na čerstvom vzduchu. Bývalá dielňa dnes slúži ako prerobený vonkajší priestor a poskytuje dodatočnú využiteľnú plochu.
• Parkovacie miesta: Pri dome sú k dispozícii tri parkovacie miesta pre vozidlá.
Ekonomika & využitie
Objekt je odovzdávaný v udržiavanom, prenajatom stave (od roku 2023 prenajatý). S ročnými nájmami vo výške 15 600 € (bez príplatkov) ponúka nehnuteľnosť solídnu návratnosť od prvého dňa.
Domáca technika: Súkromné maloodpadové zariadenie
Odpadové vody z objektu sú odvádzané autonómne prostredníctvom vlastného maloodpadového zariadenia. Ide o kvalitný systém od výrobcu Uponor (model 3K Plus), ktorý bol odborným spôsobom inštalovaný v októbri 2003.
Profesionálna údržba: Toto zariadenie je pravidelne udržiavané dvakrát ročne odbornou firmou, aby bol zabezpečený jeho bezchybný chod.
Toto technické riešenie vám zaručuje nezávislosť a bezpečnosť pri spracovaní odpadových vôd priamo na vlastnej parcele.
Pokojné bývanie v zelenej srdci Geldern-Vernum
Nehnuteľnosť sa nachádza v atraktívnej obytné oblasti Geldern, v idylickej časti Vernum. Tu sa spája bývanie v prírode so vynikajúcim spojením na mestský život.
Exkluzivita a súkromie
Objekt leží na okraji vybudovanej a veľmi udržiavanej obytné zóny. Uvoľnené spriamenie osídlenia zaručuje vysokú mieru súkromia a pokoja, takže si môžete v kľude vychutnávať výhľad do zelene.
Infraštruktúra & každodenný život
Napriek pokojnej lokalite je blízkosť služieb výborná:
• Nákupy: Rušné centrum Geldern s butikmi a týždennými trhmi je vzdialené len 6 minút autom alebo 12 minút na bicykli. Supermarket pre bežné potreby sa nachádza len 4 minúty autom.
• Vzdelávanie & zdravotníctvo: Rodiny profitujú z prítomnosti materských škôl a stredných škôl v bezprostrednej blízkosti. Zdravotnú starostlivosť zabezpečuje miestna nemocnica a niekoľko odborných lekárov v okolí.
Voľný čas & príroda
Milovníci prírody si tu prídu na svoje. Poloha láka na dlhé prechádzky a cyklotúry pozdĺž rieky Niers alebo cez typickú nederrhénsku krajinu. Okrem toho sú v dosahu aj četné športové kluby a rekreačné zariadenia.
Prvotriedna mobilita
Dopravné spojenie je ideálne pre dojížďajúcich aj cestovateľov:
• Obecná doprava: Železničná stanica Geldern ponúka s vlakom „Niers-Express“ (RE 10) pravidelné a priame spojenia smerom na Düsseldorf, Krefeld a Kleve.
• Diaľnice: Cez štátne cesty B9 a B58 je možné rýchlo sa dostať na diaľnice A40 a A57, čím sú optimálne dostupné ako oblasť Ruhr, tak aj blízke Holandsko.
Exkluzívny balík vybavenia: Hneď pripravený bez dodatočných nárokov!
Jedinečným prvkom tejto ponuky je úplné prebratie udržiavaného inventára. Keďže zariadenie je neoddeliteľnou súčasťou existujúcich nájomných zmlúv, nehnuteľnosť sa predáva vrátane celého interiéru.
Tým získavate ako kupujúci neoceniteľnú výhodu – možnosť pokračovať v prenájme bez oneskorenia či potreby dodatočných investícií do vybavenia.
Detaily balíka inventára
Za atraktívnu paušálnu cenu 10 000 € – ktorá sa platí nad rámec kúpnej ceny nehnuteľnosti – získate rozsiahly balík vybavenia:
• Moderné vstavané kuchyne: Obe obytné jednotky sú vybavené udržiavanými kuchyňami včítane elektrospotrebičov (hlavný byt zo 2016, prístavbový byt zo 2023).
• Kompletný zariadený prístavbový byt: Od útulnej pohovky cez na mieru vyrobené vstavané skrine až po úplný kúpeľňový inventár a práčku – všetko je k dispozícii.
• Mierkové úpravy v hlavnom byte: Využite výhodu presne prispôsobených vstavaných skríň v spálni, kúpeľni a hostinskej toalete.
• Vonkajšie priestory: Všetky konštrukcie v rozsiahlej vonkajšej časti sú tiež zahrnuté v cene.
Obe obytné jednotky majú oddelené merače pre elektrinu, plyn a vodu.
Váš daňový benefit
Kúpna cena inventára je v kúpnej zmluve uvedená samostatne. To je pre vás ekonomicky mimoriadne atraktívne, pretože táto suma znižuje základ dane pre daň z prevodu nehnuteľnosti. Investujete tak priamo do hmotných hodnôt a zároveň šetríte na nákladoch spojených s kúpou.
Parametre nehnuteľnosti
| Vek | Nad 50 rokov |
|---|---|
| Dispozícia | 7+1 |
| PENB | D - Menej hospodárne |
| Plocha pozemku | 1 055 m² |
| Cena za jednotku | 2 150 € / m2 |
| Stav | Dobrý |
|---|---|
| Číslo inzerátu | 988703 |
| Úžitková plocha | 153 m² |
| Celkové poschodia | 2 |
Čo táto nehnuteľnosť ponúka?
| Parkovanie | |
| Terasa |
| MHD 1 minúta pešo |
V okolí nehnuteľnosti nájdete
Stále hľadáte to pravé?
Nastavte si strážneho psa. Ponuky vybrané na mieru dostanete súhrnne 1× denne e-mailom. S Premium profilom máte po ruke rovno 5 strážcov a keď sa niečo objaví, informujú vás obratom.


























