Predaj domu 4+1 • 128 m² bez realitky, Meklenbursko-Predpomoransko
, Meklenbursko-PredpomoranskoMHD 1 minúta pešo • ParkovanieVitajte vo vašom novom domove vo Wismare – tu vás čaká moderný dvojdom s premyslenou dispozíciou, kvalitným vybavením a priestranným priestorom.
Dom bol kompletne zrekonštruovaný a prezentuje sa vo vynikajúcom stave. Steny, podlahy, kúpeľne, schodisko a vonkajšie priestory boli kompletne obnovené – môžete sa okamžite nasťahovať a cítiť sa ako doma.
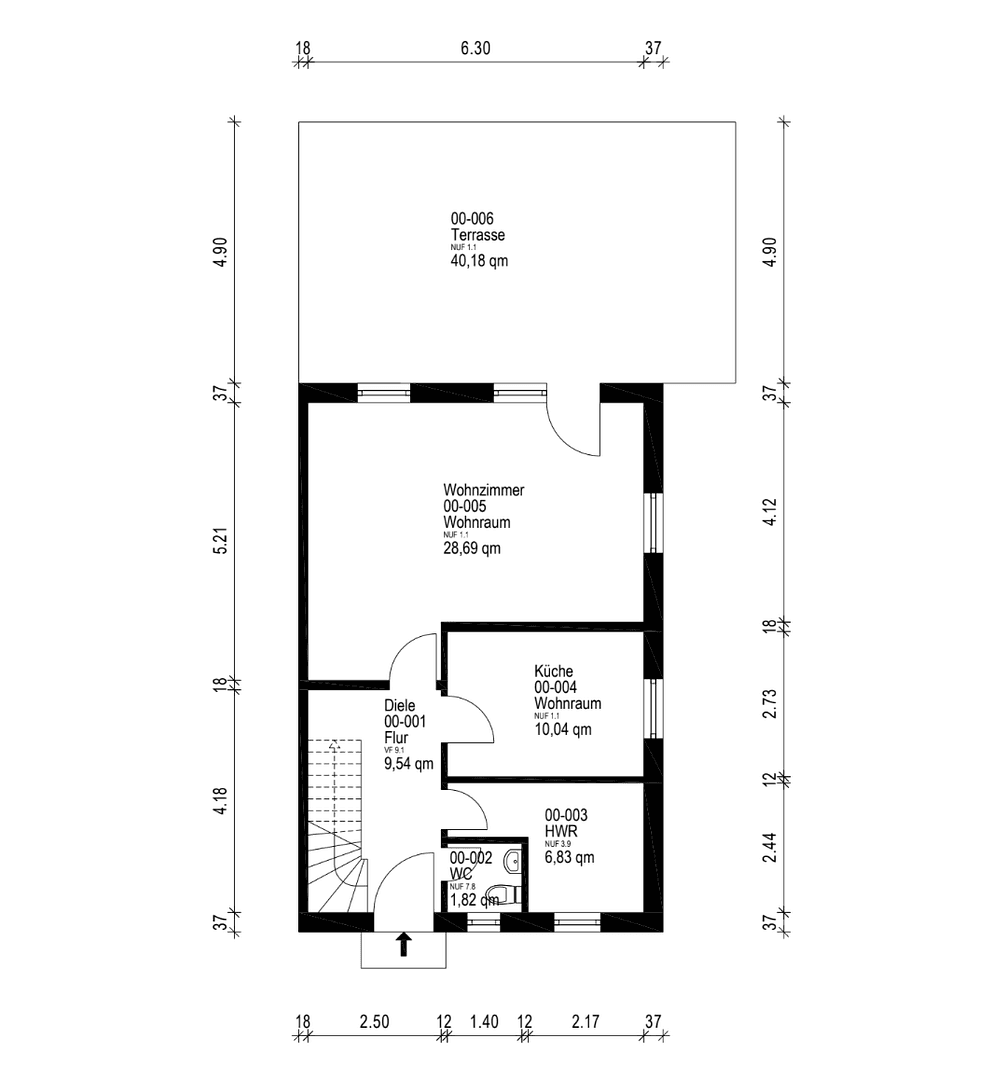
V prízemí zaujme otvorený obývací a jedálenský priestor s priamym prístupom na novo upravenú terasu o rozlohe približne 40 m². Tu si vychutnáte slnečné hodiny s krásnym výhľadom na zeleň – ideálne pre relaxačné chvíle vonku.
Samostatná kuchyňa ponúka dostatok miesta pre spoločné varenie. Poschodie je doplnené o hosťovskú toaletu, práčovňu a technickú miestnosť s moderným plynovým kúrením.
Na poschodí sa nachádza spálňa a ďalšie dve izby, ktoré možno flexibilne využiť ako detskú, pracovňu alebo hosťovskú izbu. Priestranná kúpeľňa s vaňou a sprchou uzatvára ponuku priestorov. Ďalej máte k dispozícii podkrovie ako praktický úložný priestor.
Kontaktujte nás a dohodnite si prehliadku.
Gartenstadt vo Wismare patrí medzi najžiadanejšie obytné lokality hanzařského mesta. Tu profitujete z pokojného, zeleného prostredia a zároveň z blízkosti centra. Obchodné príležitosti, školy, materské školy a lekári sú ľahko dostupní – rovnako ako pôvabná historická časť mesta a prístav vo Wismare.
Doprava verejnou dopravou, ako aj prístup k cestám B105 a A20 je vynikajúci, takže sa aj mimo regiónu rýchlo dostanete. Kombinácia blízkosti mesta, prírody a vysokej kvality života robí túto lokalitu mimoriadne atraktívnou – najmä pre rodiny a pendlerov.
- Okamžite voľný na nastahovanie – všetko čerstvo zrekonštruované
- Priestranný obývací/jedálenský priestor s prístupom na terasu
- Približne 40 m² vyvýšená terasa s výhľadom na zeleň
- Nová kúpeľňa so sprchou a vaňou
- Hosťovská toaleta v prízemí
- Práčovňa a technická miestnosť s moderným plynovým kúrením
- Tri spálne na poschodí
- Podkrovie ako dodatočný úložný priestor
- Udržiavaný pozemok s plochou približne 439 m²
- Pokojná, rodinne prívetivá lokalita vo Wismare
Parametre nehnuteľnosti
| Vek | Nad 50 rokov |
|---|---|
| Stav | Po rekonštrukcii |
| Číslo inzerátu | 988650 |
| Úžitková plocha | 128 m² |
| Celkové poschodia | 2 |
| Dostupné od | 15. 2. 2026 |
|---|---|
| Dispozícia | 4+1 |
| PENB | D - Menej hospodárne |
| Plocha pozemku | 439 m² |
| Cena za jednotku | 2 890 € / m2 |
Čo táto nehnuteľnosť ponúka?
| Parkovanie | |
| Terasa |
| MHD 1 minúta pešo |
V okolí nehnuteľnosti nájdete
Stále hľadáte to pravé?
Nastavte si strážneho psa. Ponuky vybrané na mieru dostanete súhrnne 1× denne e-mailom. S Premium profilom máte po ruke rovno 5 strážcov a keď sa niečo objaví, informujú vás obratom.


























